Connect

Find us on...

Dashboard

Login using...

Shawn Bengtson

Office Broker - DRE 01236964

  • Office 760-805-7199
Questions?

15 Holcomb, Walnut Creek – $1,999,000

  • $2M Price
  • .52 Acres
  • 21 DOM
  • $2M Price
  • .52 Acres
  • 21 DOM

15 Holcomb

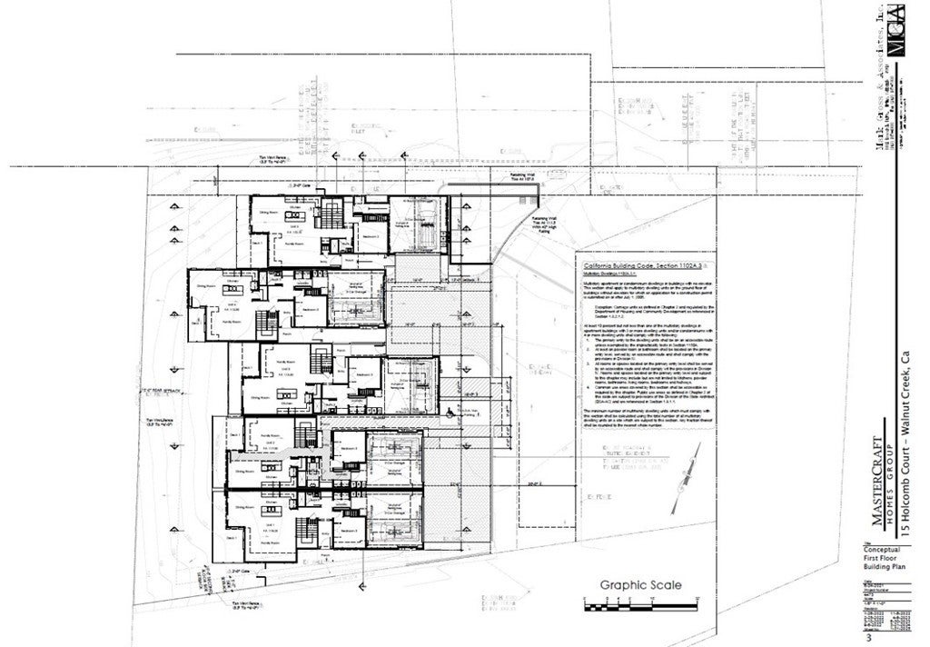
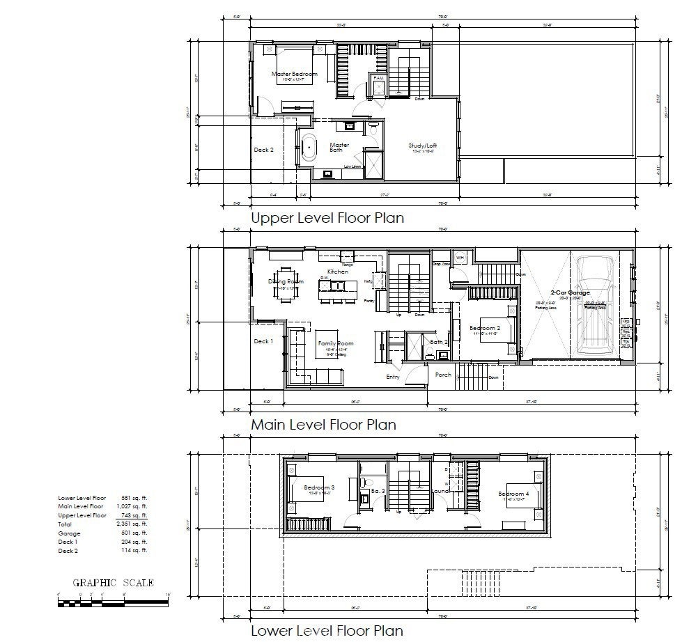
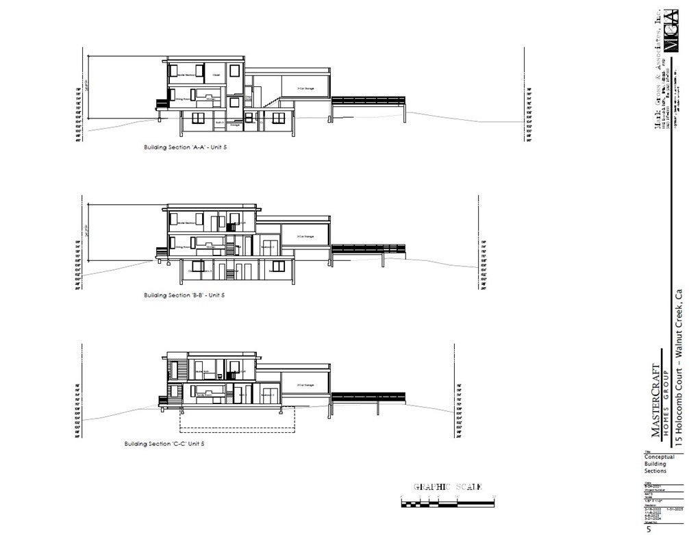
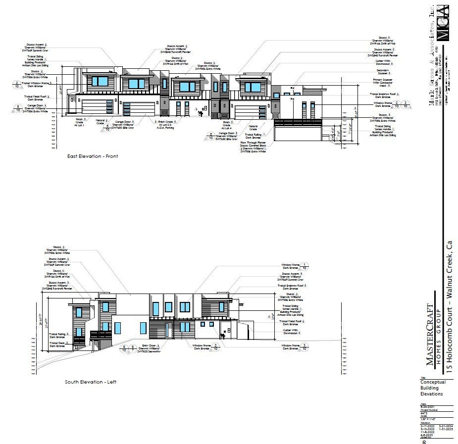
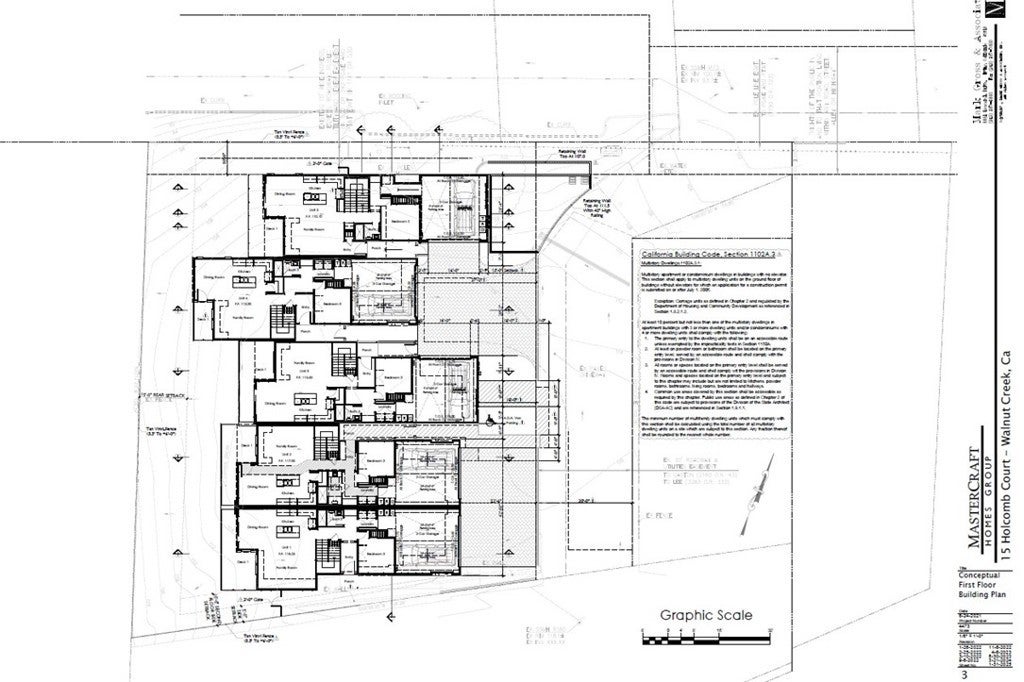
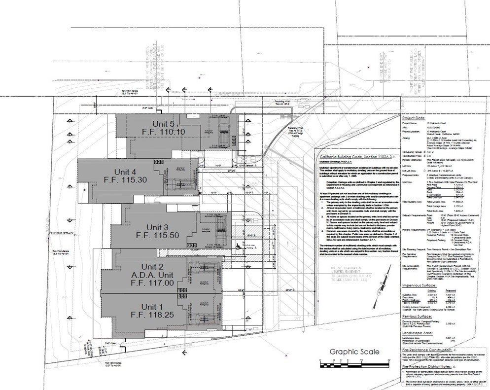
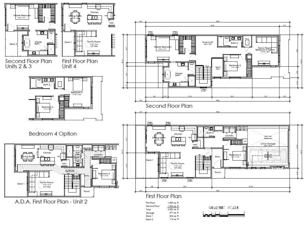
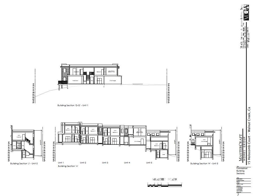
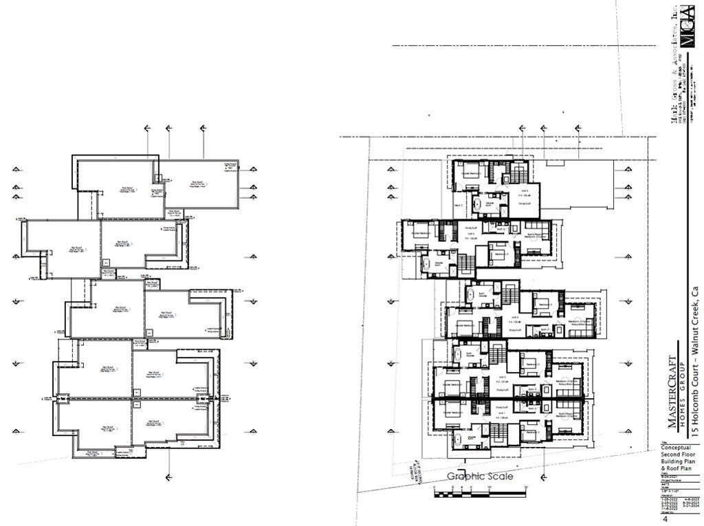
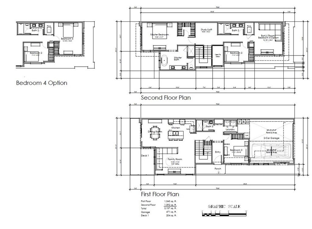
This residential lot has preliminary approved for 5 unit luxury townhomes with the city of Walnut Creek. The included pictures is a rendering of the project and a sample of the preliminary approved plans The project has excellent views to the north from all units.

Essential Information

  • MLS® #OC25257014
  • Price$1,999,000
  • Bathrooms0.00
  • Acres0.52
  • TypeLand
  • StatusActive

Community Information

  • Address15 Holcomb
  • Area699 - Not Defined
  • CityWalnut Creek
  • CountyContra Costa
  • Zip Code94596

Amenities

  • ViewCity Lights, Panoramic, Valley

Utilities

Cable Available, Electricity Available, Natural Gas Available, Phone Available, Sewer Available, Water Available

Exterior

  • Lot DescriptionSixToTenUnitsAcre, Bluff

Additional Information

  • Date ListedNovember 8th, 2025
  • Days on Market21
  • Zoningunits

Listing Details

  • AgentGary Reed
  • OfficeBlackStar Realty
Please provide a valid email address.

Gary Reed, BlackStar Realty.

Based on information from California Regional Multiple Listing Service, Inc. as of December 1st, 2025 at 6:11pm PST. This information is for your personal, non-commercial use and may not be used for any purpose other than to identify prospective properties you may be interested in purchasing. Display of MLS data is usually deemed reliable but is NOT guaranteed accurate by the MLS. Buyers are responsible for verifying the accuracy of all information and should investigate the data themselves or retain appropriate professionals. Information from sources other than the Listing Agent may have been included in the MLS data. Unless otherwise specified in writing, Broker/Agent has not and will not verify any information obtained from other sources. The Broker/Agent providing the information contained herein may or may not have been the Listing and/or Selling Agent.