Connect

Find us on...

Dashboard

Login using...

Shawn Bengtson

Office Broker - DRE 01236964

  • Office 760-805-7199
Questions?

1800 Gramercy # 33, Anaheim – $695,000

  • 4 Beds
  • 3 Baths
  • 1,340 Sqft
  • 2 DOM
  • 4 Beds
  • 3 Baths
  • 1,340 Sqft
  • 2 DOM

1800 Gramercy # 33

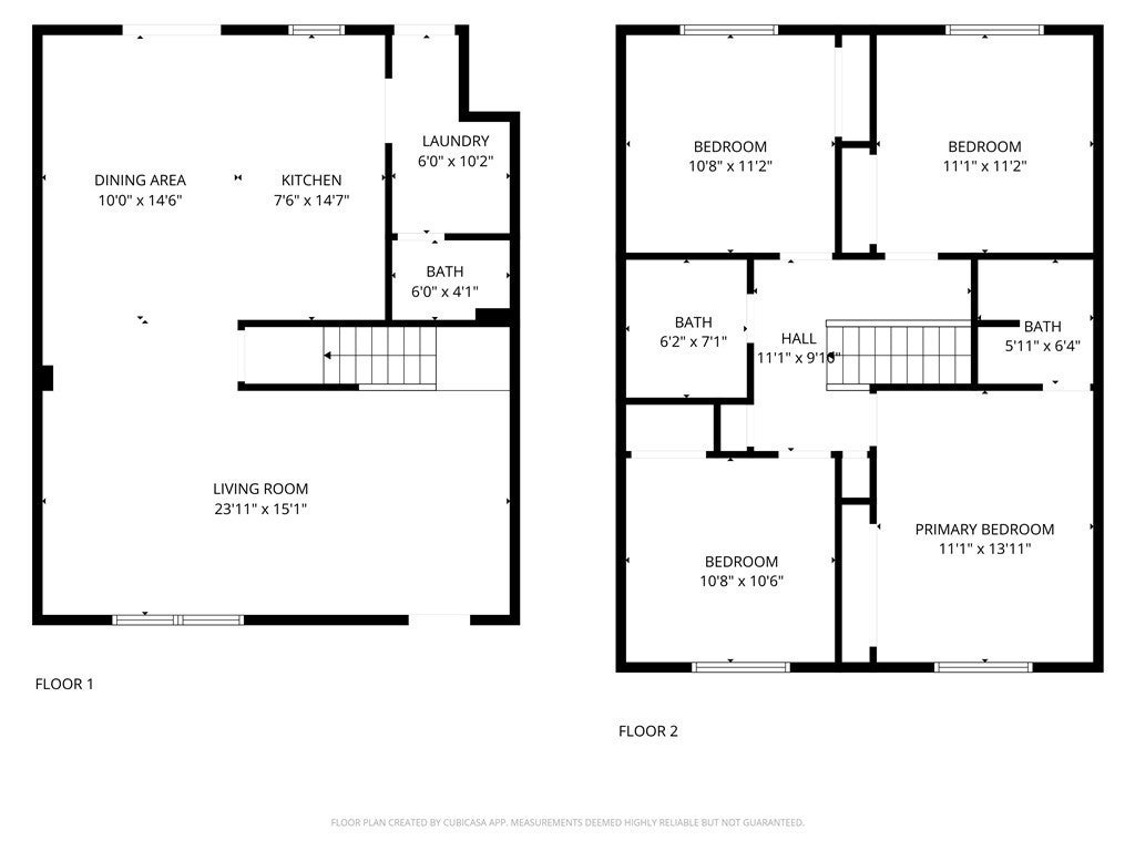
Spacious 4-bedroom, 2.5-bath end-unit condominium in the heart of Anaheim. All bedrooms are located upstairs with two full bathrooms, while the main level features a large living room with tile flooring, a kitchen with maple cabinets and granite countertops, an inside laundry room, a convenient half bath and a patio for you and your guests. Central air conditioning and a detached two-car garage provide comfort and convenience, plus an additional parking space is available. Located across from Anaheim Plaza and just minutes from Disneyland, shopping, dining, and entertainment, with easy access to the 5 and 91 freeways.

Essential Information

  • MLS® #RS25243947
  • Price$695,000
  • Bedrooms4
  • Bathrooms3.00
  • Full Baths2
  • Half Baths1
  • Square Footage1,340
  • Acres0.00
  • Year Built1964
  • TypeResidential
  • Sub-TypeCondominium
  • StatusActive

Community Information

  • Address1800 Gramercy # 33
  • Area78 - Anaheim East of Harbor
  • CityAnaheim
  • CountyOrange
  • Zip Code92801

Amenities

  • AmenitiesPool
  • Parking Spaces3
  • ParkingGarage, One Space
  • # of Garages2
  • GaragesGarage, One Space
  • ViewNone
  • Has PoolYes
  • PoolAssociation

Interior

  • InteriorTile
  • Interior FeaturesAll Bedrooms Up
  • HeatingCentral
  • CoolingCentral Air
  • FireplacesNone
  • # of Stories2
  • StoriesTwo

Appliances

Dishwasher, Disposal, Gas Range, Microwave

School Information

  • DistrictAnaheim Union High
  • ElementaryWestmont
  • MiddleBrookhurst

Additional Information

  • Date ListedOctober 7th, 2025
  • Days on Market2
  • HOA Fees387
  • HOA Fees Freq.Monthly

Listing Details

  • AgentArchangel Manansala
  • OfficeAmberwood Real Estate
Please provide a valid email address.

Archangel Manansala, Amberwood Real Estate.

Based on information from California Regional Multiple Listing Service, Inc. as of November 1st, 2025 at 7:55pm PDT. This information is for your personal, non-commercial use and may not be used for any purpose other than to identify prospective properties you may be interested in purchasing. Display of MLS data is usually deemed reliable but is NOT guaranteed accurate by the MLS. Buyers are responsible for verifying the accuracy of all information and should investigate the data themselves or retain appropriate professionals. Information from sources other than the Listing Agent may have been included in the MLS data. Unless otherwise specified in writing, Broker/Agent has not and will not verify any information obtained from other sources. The Broker/Agent providing the information contained herein may or may not have been the Listing and/or Selling Agent.