Connect

Find us on...

Dashboard

Login using...

Shawn Bengtson

Office Broker - DRE 01236964

  • Office 760-805-7199
Questions?

226 Lei Drive, Palm Springs – $179,000

  • 2 Beds
  • 2 Baths
  • 800 Sqft
  • 2573 DOM
  • 2 Beds
  • 2 Baths
  • 800 Sqft
  • 2573 DOM

226 Lei Drive

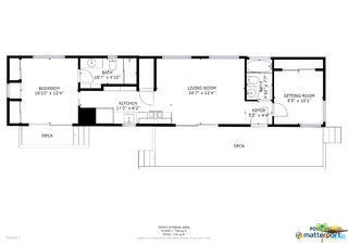
The "Not-so-tiny-home." One of our most popular floor plans, featuring great separation of bedrooms on each side of the house. Flooded with light from numerous windows throughout, plus 9' ceilings. The open floor plan features sliding doors out to your outdoor deck. Spacious outdoor area, will include deck, perimeter fencing, and carport. The Palm Canyon Mobile Club is Palm Springs' latest urban renewal project. The new owners will enjoy the remodeled club house, pool, gym, hot tub, bbq areas, dance hall, plus two dog parks, one of the most unique communities in Palm Springs. Pictures of model home for this unit, not the actual home. Actual home currently under construction. Buyer to verify square footage.

Essential Information

  • MLS® #19429714PS
  • Price$179,000
  • Bedrooms2
  • Bathrooms2.00
  • Full Baths2
  • Square Footage800
  • Acres0.00
  • Year Built2018
  • TypeManufactured In Park
  • StatusActive Under Contract

Community Information

  • Address226 Lei Drive
  • Area334 - South End Palm Springs
  • SubdivisionPalm Canyon Mobile C (6600)
  • CityPalm Springs
  • CountyRiverside
  • Zip Code92264

Amenities

  • Parking Spaces1
  • ParkingAttached Carport
  • GaragesAttached Carport
  • ViewMountain(s)
  • Has PoolYes
  • PoolAssociation

Amenities

Clubhouse, Fitness Center, Lake or Pond, Barbecue, Pool, Pet Restrictions, Recreation Room, RV Parking, Spa/Hot Tub

Interior

  • InteriorTile

Interior Features

Living Room Deck Attached, Open Floorplan, Bedroom on Main Level

Appliances

Dishwasher, Disposal, Ice Maker, Microwave, Refrigerator

Exterior

  • ExteriorDrywall
  • ConstructionDrywall
  • FoundationPier Jacks

Additional Information

  • Date ListedJanuary 31st, 2019
  • Days on Market2573

Listing Details

  • AgentPaul Kaplan
  • OfficeBennion Deville Homes
Please provide a valid email address.

Paul Kaplan, Bennion Deville Homes.

Based on information from California Regional Multiple Listing Service, Inc. as of February 26th, 2026 at 8:26pm PST. This information is for your personal, non-commercial use and may not be used for any purpose other than to identify prospective properties you may be interested in purchasing. Display of MLS data is usually deemed reliable but is NOT guaranteed accurate by the MLS. Buyers are responsible for verifying the accuracy of all information and should investigate the data themselves or retain appropriate professionals. Information from sources other than the Listing Agent may have been included in the MLS data. Unless otherwise specified in writing, Broker/Agent has not and will not verify any information obtained from other sources. The Broker/Agent providing the information contained herein may or may not have been the Listing and/or Selling Agent.