Connect

Find us on...

Dashboard

Login using...

Shawn Bengtson

Office Broker - DRE 01236964

  • Office 760-805-7199
Questions?

74090 El Paseo, Palm Desert – $4,153,000

  • $4.2M Price
  • .87 Acres
  • 1115 DOM
  • $4.2M Price
  • .87 Acres
  • 1115 DOM

74090 El Paseo

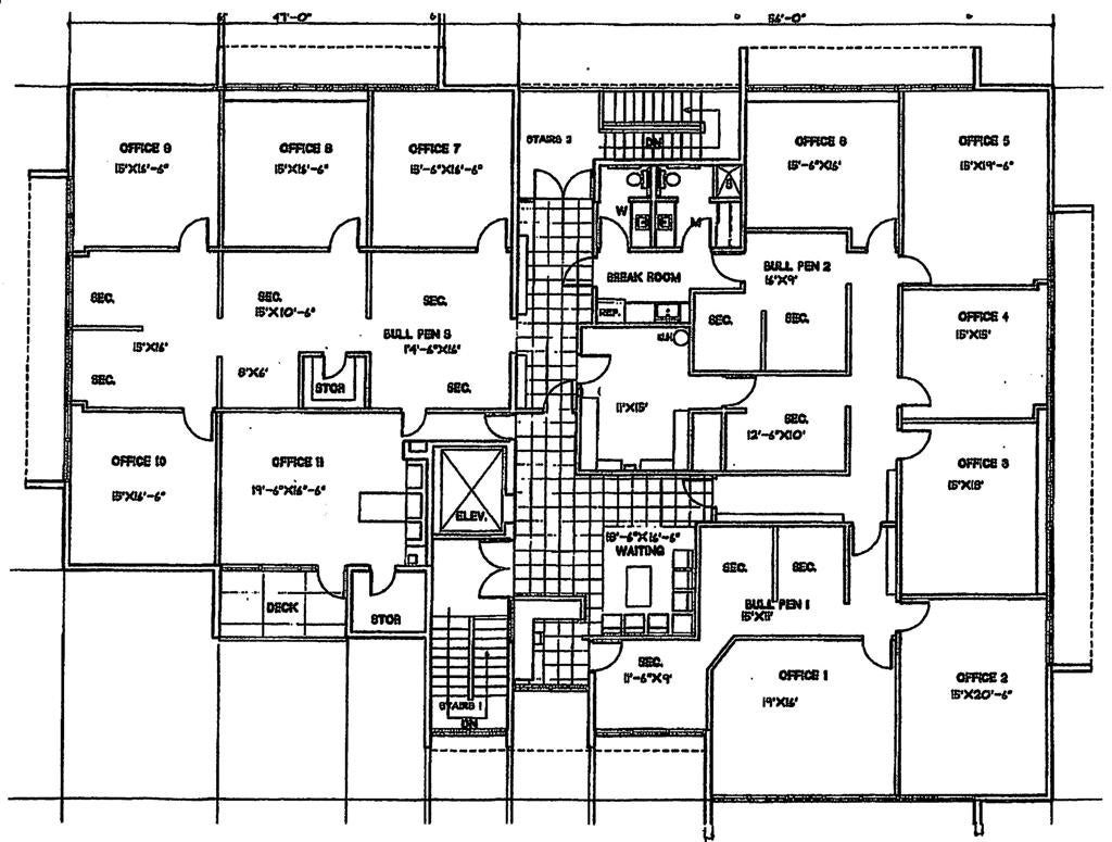
Well located two-story professional building on nearly an acre. Elevator served. This is an exceptional opportunity, ideal for law firm, medical, professional, or mixed-use uses within an ideal urban environment. Nearby many prominent shopping, dining, and entertainment district (Saks, Mastro's, Apple, Gucci, and many more). High traffic volumes of approx. 30,000 cars per day. Abundant free customer parking. Frontage access on both Highway 111 and El Paseo. In Downtown District allowing mixed-use and multi-story projects.

Essential Information

  • MLS® #219086349DA
  • Price$4,153,000
  • Bathrooms0.00
  • Acres0.87
  • Year Built1978
  • TypeCommercial Sale
  • StatusActive

Community Information

  • Address74090 El Paseo
  • Area323 - South Palm Desert
  • CityPalm Desert
  • CountyRiverside
  • Zip Code92260

Interior

  • HeatingCentral
  • # of Stories2

Exterior

  • Lot DescriptionLandscaped, Sprinkler System

Additional Information

  • Days on Market1115

Listing Details

  • AgentSusan Harvey
  • OfficeDesert Pacific Properties
Please provide a valid email address.

Susan Harvey, Desert Pacific Properties.

Based on information from California Regional Multiple Listing Service, Inc. as of November 20th, 2025 at 12:46am PST. This information is for your personal, non-commercial use and may not be used for any purpose other than to identify prospective properties you may be interested in purchasing. Display of MLS data is usually deemed reliable but is NOT guaranteed accurate by the MLS. Buyers are responsible for verifying the accuracy of all information and should investigate the data themselves or retain appropriate professionals. Information from sources other than the Listing Agent may have been included in the MLS data. Unless otherwise specified in writing, Broker/Agent has not and will not verify any information obtained from other sources. The Broker/Agent providing the information contained herein may or may not have been the Listing and/or Selling Agent.