Connect

Find us on...

Dashboard

Login using...

Shawn Bengtson

Office Broker - DRE 01236964

  • Office 760-805-7199
Questions?

211 N Sunrise Way, Palm Springs – $3,200,000

  • 5 Beds
  • 6 Baths
  • 5,879 Sqft
  • .47 Acres
  • 5 Beds
  • 6 Baths
  • 5,879 Sqft
  • .47 Acres

211 N Sunrise Way

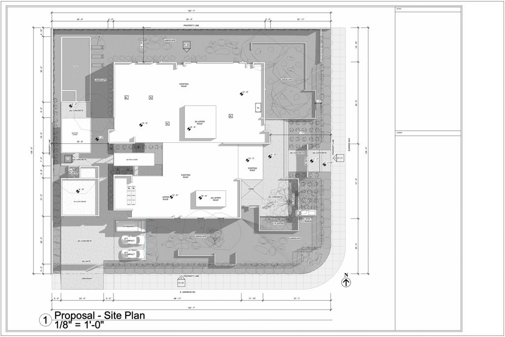
Own a Piece of Palm Springs History and Create Your Dream Estate! Located at 211 N Sunrise Way, this historic property--formerly the Gas Company Building--is a Class 1 Historical Site, showcasing stunning Brutalist Modern architecture. Designed by renowned architect Robert Ricciardi, the structure's bold, raw concrete and geometric forms offer a rare opportunity to preserve a piece of architectural history while transforming it into a bespoke single-family home. Approved for residential conversion, this property is ideal for those with a vision to blend Palm Springs' storied past with modern luxury. The Brutalist style is celebrated for its unpretentious materials and dramatic aesthetics, providing a unique canvas for a contemporary, sophisticated living space. With its open layout and striking visual appeal, this property presents endless possibilities for creative design and personalization. Whether you're interested in embarking on this exciting project independently or exploring a joint venture, the potential for this one-of-a-kind estate is truly limitless. Adjacent lot entitled for 15 apartments/condos also available separately! Don't miss this exclusive opportunity! Serious buyers only. For more information or to schedule a private tour, call 760-333-6980. Please note: The APN will be updated due to a recent lot split that separates the existing building from the vacant land. The new APN is currently being issued, and the updated lot size is 20,379 square feet (0.47 Acres).

Essential Information

  • MLS® #219127278DA
  • Price$3,200,000
  • Bedrooms5
  • Bathrooms6.00
  • Full Baths5
  • Half Baths1
  • Square Footage5,879
  • Acres0.47
  • Year Built1970
  • TypeResidential
  • Sub-TypeSingle Family Residence
  • StatusActive

Community Information

  • Address211 N Sunrise Way
  • Area332 - Central Palm Springs
  • SubdivisionCentral Palm Springs
  • CityPalm Springs
  • CountyRiverside
  • Zip Code92262

Amenities

  • Parking Spaces5
  • ParkingDriveway, On Street
  • GaragesDriveway, On Street
  • ViewMountain(s)

Interior

  • InteriorConcrete
  • HeatingNone
  • CoolingNone
  • # of Stories1
  • StoriesOne

Additional Information

  • Date ListedMarch 14th, 2025
  • Days on Market241

Listing Details

  • AgentEthan Mezrahi
  • OfficeReal Brokerage Technologies
Please provide a valid email address.

Ethan Mezrahi, Real Brokerage Technologies.

Based on information from California Regional Multiple Listing Service, Inc. as of November 22nd, 2025 at 8:35am PST. This information is for your personal, non-commercial use and may not be used for any purpose other than to identify prospective properties you may be interested in purchasing. Display of MLS data is usually deemed reliable but is NOT guaranteed accurate by the MLS. Buyers are responsible for verifying the accuracy of all information and should investigate the data themselves or retain appropriate professionals. Information from sources other than the Listing Agent may have been included in the MLS data. Unless otherwise specified in writing, Broker/Agent has not and will not verify any information obtained from other sources. The Broker/Agent providing the information contained herein may or may not have been the Listing and/or Selling Agent.