Connect

Find us on...

Dashboard

Login using...

Shawn Bengtson

Office Broker - DRE 01236964

  • Office 760-805-7199
Questions?

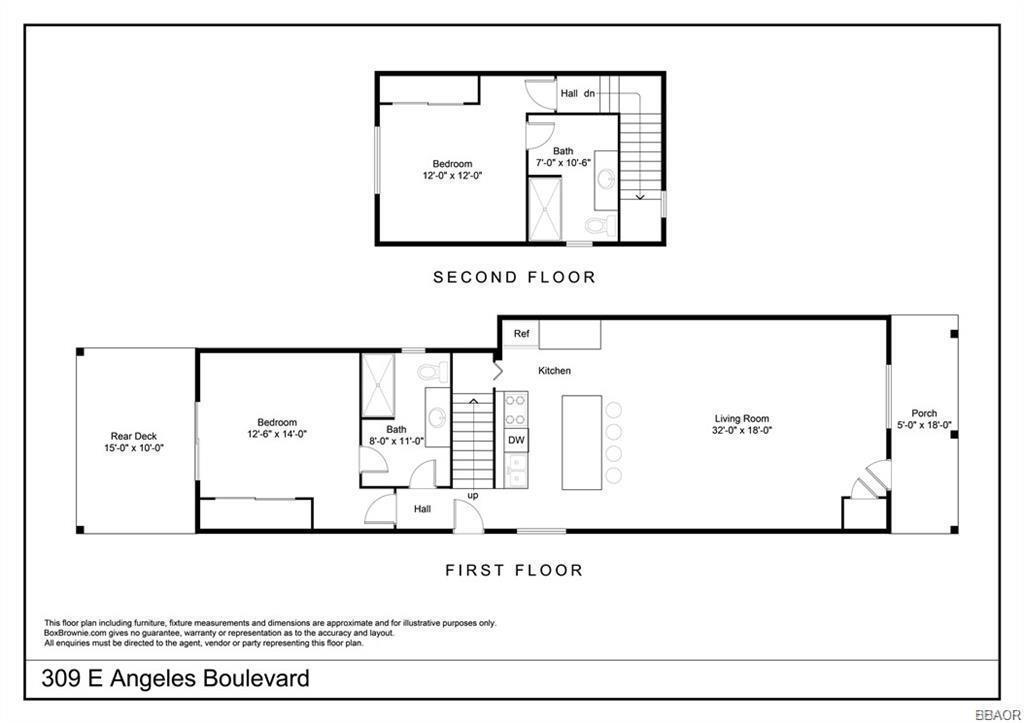
309 Angeles Boulevard, Big Bear – $399,900

  • 2 Beds
  • 2 Baths
  • 1,292 Sqft
  • .06 Acres
  • 2 Beds
  • 2 Baths
  • 1,292 Sqft
  • .06 Acres

309 Angeles Boulevard

This home has been completely remodeled and finished in May 2025 - Like New Construction. This fully reimagined home is sure to impress. Renovated from the ground up, its effective year is now 2025, offering the quality and feel of new construction. Every detail has been thoughtfully reconstructed, including new framing, insulation, raised perimeter foundation, exterior siding, roof, interior walls, electrical, and plumbing--everything is brand new. Inside, the 1,244 sq ft layout showcases a stylish open-concept living and dining area, accented by luxury vinyl plank flooring, quartz countertops, and stainless steel appliances. The home features two spacious bedroom suites, each designed for comfort and privacy. The main-level suite includes dual access to the primary bathroom from both the hallway and the bedroom, along with a walk-in shower. The second suite, located on the upper level, offers a private retreat. Enjoy outdoor living year-round with a south-facing covered front deck, great for morning coffee, and a rear deck accessible from the lower suite's sliding glass door, offering breathtaking views of Gold Mountain.

Essential Information

  • MLS® #219132651DA
  • Price$399,900
  • Bedrooms2
  • Bathrooms2.00
  • Full Baths2
  • Square Footage1,292
  • Acres0.06
  • Year Built2025
  • TypeResidential
  • Sub-TypeSingle Family Residence
  • StatusActive

Community Information

  • Address309 Angeles Boulevard
  • AreaBBC - Big Bear City
  • SubdivisionNot Applicable-1
  • CityBig Bear
  • CountySan Bernardino
  • Zip Code92314

Amenities

  • ParkingDriveway
  • GaragesDriveway
  • ViewMountain(s)

Interior

  • InteriorCarpet, Vinyl
  • HeatingForced Air
  • # of Stories2
  • StoriesTwo

Exterior

  • Lot DescriptionLevel
  • FoundationRaised

Additional Information

  • Date ListedJuly 11th, 2025
  • Days on Market115

Listing Details

  • AgentBob Angilella
  • OfficeRE/MAX Big Bear
Please provide a valid email address.

Price Change History for 309 Angeles Boulevard, Big Bear, (MLS® #219132651DA)

Date Details Change
Price Reduced from $439,900 to $399,900 $40,000 (9.09%)
Price Reduced from $449,900 to $439,900 $10,000 (2.22%)

Bob Angilella, RE/MAX Big Bear.

Based on information from California Regional Multiple Listing Service, Inc. as of November 4th, 2025 at 8:30pm PST. This information is for your personal, non-commercial use and may not be used for any purpose other than to identify prospective properties you may be interested in purchasing. Display of MLS data is usually deemed reliable but is NOT guaranteed accurate by the MLS. Buyers are responsible for verifying the accuracy of all information and should investigate the data themselves or retain appropriate professionals. Information from sources other than the Listing Agent may have been included in the MLS data. Unless otherwise specified in writing, Broker/Agent has not and will not verify any information obtained from other sources. The Broker/Agent providing the information contained herein may or may not have been the Listing and/or Selling Agent.