Connect

Find us on...

Dashboard

Login using...

Shawn Bengtson

Office Broker - DRE 01236964

  • Office 760-805-7199
Questions?

13283 Chaparral Road, Whitewater – $200,000

  • $200k Price
  • .17 Acres
  • 78 DOM
  • $200k Price
  • .17 Acres
  • 78 DOM

13283 Chaparral Road

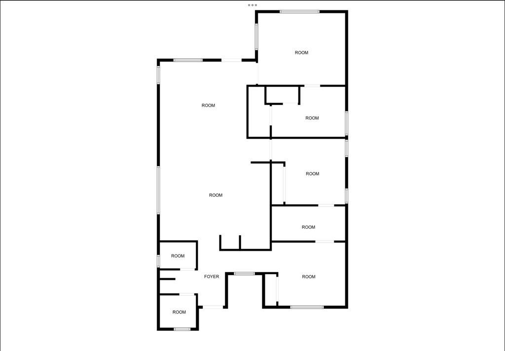
Take advantage of a rare opportunity to complete a partially built 1,590 sq. ft. home in the unincorporated community of Whitewater, just minutes from Downtown Palm Springs and the Cabazon Outlets. This planned 3-bedroom, 2.5-bath residence features an open-concept layout connecting the kitchen, dining, and living areas -- ideal for both comfort and entertaining. The primary suite is privately located at the rear of the home with its own full bath, while two additional bedrooms share a centrally located bathroom. A separate half bath and laundry room are conveniently located near the entry.APPROVED PLANS AND PERMITS are in place, with plan check completed and passed. Several key inspections have also been approved, including ground plumbing, slab grade, setbacks/footings & forms, braced walls & shear walls, and roof deck. This progress provides buyers or builders with a strong foundation to move the project forward. Property sold AS-IS.Ideal for a builder, investor, or buyer ready to finish the project. No HOA. Easy access to I-10, shopping, and dining -- all in a peaceful desert setting. Buyer to independently verify all information, permits, inspections, and future development with the County of Riverside. Seller and broker make no warranties. All information deemed reliable but not guaranteed.

Essential Information

  • MLS® #219133255DA
  • Price$200,000
  • Bathrooms0.00
  • Acres0.17
  • TypeLand
  • StatusActive

Community Information

  • Address13283 Chaparral Road
  • SubdivisionOther
  • CityWhitewater
  • CountyRiverside
  • Zip Code92282

Amenities

View

Desert, Hills, Mountain(s), Panoramic, Peek-A-Boo, Valley

Exterior

  • Lot DescriptionBack Yard, Corners Marked

Additional Information

  • Date ListedJuly 27th, 2025
  • Days on Market78
  • ZoningR-R

Listing Details

  • AgentDaniel Ordaz
  • OfficeHomeSmart
Please provide a valid email address.

Daniel Ordaz, HomeSmart.

Based on information from California Regional Multiple Listing Service, Inc. as of October 13th, 2025 at 12:56am PDT. This information is for your personal, non-commercial use and may not be used for any purpose other than to identify prospective properties you may be interested in purchasing. Display of MLS data is usually deemed reliable but is NOT guaranteed accurate by the MLS. Buyers are responsible for verifying the accuracy of all information and should investigate the data themselves or retain appropriate professionals. Information from sources other than the Listing Agent may have been included in the MLS data. Unless otherwise specified in writing, Broker/Agent has not and will not verify any information obtained from other sources. The Broker/Agent providing the information contained herein may or may not have been the Listing and/or Selling Agent.