Connect

Find us on...

Dashboard

Login using...

Shawn Bengtson

Office Broker - DRE 01236964

  • Office 760-805-7199
Questions?

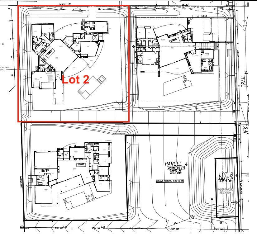
49269 Jfk Trail, Palm Desert – $4,450,000

  • 4 Beds
  • 5 Baths
  • 4,247 Sqft
  • .51 Acres
  • 4 Beds
  • 5 Baths
  • 4,247 Sqft
  • .51 Acres

49269 Jfk Trail

Rare opportunity to build a brand-new custom home in prestigious Ironwood Country Club, on one of the community's last original parcels and once owned by Bing Crosby. This elevated approx. 1/2 acre. homesite is mostly approved with not much left to go vertical, with panoramic mountain views as the backdrop. The 4,247 sq. ft. Desert Modern design by Bob Tyler of RTF Design features 4 bedrooms, 5 baths, open-concept living, and seamless indoor-outdoor spaces including pool and entertainment areas. Two experienced luxury builders are available to complete the project, giving the buyer flexibility and confidence in quality. Located minutes from El Paseo, this boutique development offers exclusivity, history, and the rare chance to personalize a new high-end home in South Palm Desert.

Essential Information

  • MLS® #219135442DA
  • Price$4,450,000
  • Bedrooms4
  • Bathrooms5.00
  • Full Baths4
  • Half Baths1
  • Square Footage4,247
  • Acres0.51
  • Year Built2026
  • TypeResidential
  • Sub-TypeSingle Family Residence
  • StatusActive

Community Information

  • Address49269 Jfk Trail
  • Area323 - South Palm Desert
  • SubdivisionIronwood Country Club
  • CityPalm Desert
  • CountyRiverside
  • Zip Code92260

Amenities

  • Parking Spaces12
  • ParkingDirect Access, Garage
  • # of Garages3
  • GaragesDirect Access, Garage
  • ViewMountain(s), Panoramic
  • Has PoolYes
  • PoolIn Ground

Amenities

Clubhouse, Golf Course, Meeting/Banquet/Party Room

Interior

  • HeatingCentral
  • CoolingCentral Air
  • FireplaceYes
  • FireplacesGas, Great Room
  • # of Stories1
  • StoriesOne

Exterior

  • Lot DescriptionSprinkler System

Additional Information

  • Date ListedSeptember 16th, 2025
  • Days on Market64
  • HOA Fees266
  • HOA Fees Freq.Monthly

Listing Details

  • AgentTroy Kudlac
  • OfficeKUD Properties, Inc.
Please provide a valid email address.

Troy Kudlac, KUD Properties, Inc..

Based on information from California Regional Multiple Listing Service, Inc. as of November 19th, 2025 at 6:35am PST. This information is for your personal, non-commercial use and may not be used for any purpose other than to identify prospective properties you may be interested in purchasing. Display of MLS data is usually deemed reliable but is NOT guaranteed accurate by the MLS. Buyers are responsible for verifying the accuracy of all information and should investigate the data themselves or retain appropriate professionals. Information from sources other than the Listing Agent may have been included in the MLS data. Unless otherwise specified in writing, Broker/Agent has not and will not verify any information obtained from other sources. The Broker/Agent providing the information contained herein may or may not have been the Listing and/or Selling Agent.