Connect

Find us on...

Dashboard

Login using...

Shawn Bengtson

Office Broker - DRE 01236964

  • Office 760-805-7199
Questions?

49425 Jfk Trail Trail, Palm Desert – $3,195,000

  • $3.2M Price
  • .98 Acres
  • 67 DOM
  • $3.2M Price
  • .98 Acres
  • 67 DOM

49425 Jfk Trail Trail

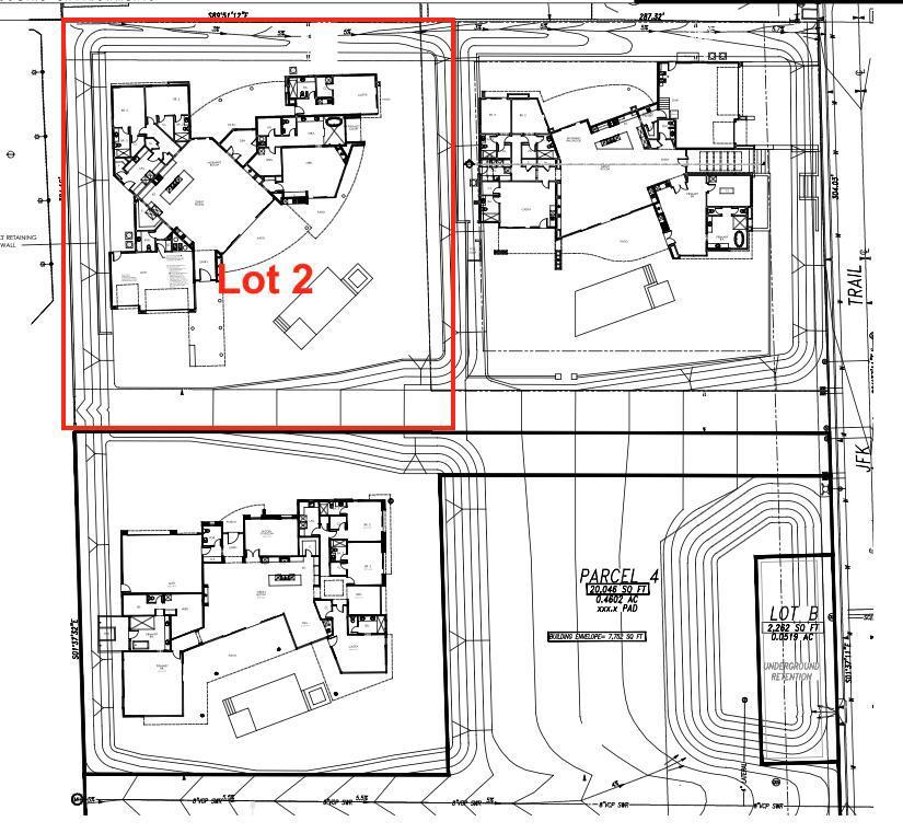
Rare chance for a developer to create three, possibly four, new custom homes on an original 2.2-acre parcel inside the gates of prestigious Ironwood Country Club, once owned by Bing Crosby. Elevated site with panoramic mountain views and mostly approved custom home plans in place.Currently subdivided into 3 lots, with potential for a 4th pending minor conditions. Lots 1 and 2 (approx. 0.5 acres each) are nearly permit-ready with City and HOA-approved plans. Lot 3 (1 acre) has City-approved plans and is awaiting HOA approval to split into two parcels.Each home is designed at 4,000+ sq. ft. with garages, pools, and landscaped grounds. A boutique, high-end project in sought-after South Palm Desert--minutes from El Paseo. Seller is highly motivated and open to deal terms.

Essential Information

  • MLS® #219135444DA
  • Price$3,195,000
  • Bathrooms0.00
  • Acres0.98
  • TypeLand
  • StatusActive

Community Information

  • Address49425 Jfk Trail Trail
  • Area323 - South Palm Desert
  • SubdivisionIronwood Country Clu
  • CityPalm Desert
  • CountyRiverside
  • Zip Code92260

Amenities

  • ViewMountain(s), Panoramic

Additional Information

  • Date ListedSeptember 16th, 2025
  • Days on Market67
  • HOA Fees266

Listing Details

  • AgentTroy Kudlac
  • OfficeKUD Properties, Inc.
Please provide a valid email address.

Troy Kudlac, KUD Properties, Inc..

Based on information from California Regional Multiple Listing Service, Inc. as of November 22nd, 2025 at 8:56am PST. This information is for your personal, non-commercial use and may not be used for any purpose other than to identify prospective properties you may be interested in purchasing. Display of MLS data is usually deemed reliable but is NOT guaranteed accurate by the MLS. Buyers are responsible for verifying the accuracy of all information and should investigate the data themselves or retain appropriate professionals. Information from sources other than the Listing Agent may have been included in the MLS data. Unless otherwise specified in writing, Broker/Agent has not and will not verify any information obtained from other sources. The Broker/Agent providing the information contained herein may or may not have been the Listing and/or Selling Agent.