Connect

Find us on...

Dashboard

Login using...

Shawn Bengtson

Office Broker - DRE 01236964

  • Office 760-805-7199
Questions?

3795 El Dorado Boulevard, Palm Springs – $149,900

  • $150k Price
  • .21 Acres
  • 175 DOM
  • $150k Price
  • .21 Acres
  • 175 DOM

3795 El Dorado Boulevard

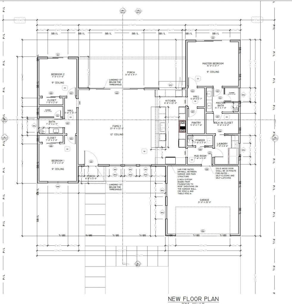
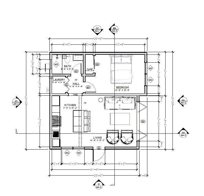
Why settle when you can design your dream home from the ground up? Purchasing a vacant lot gives you the freedom to create a custom living space tailored to your unique vision and lifestyle. Imagine designing every detail--your perfect floor plan, outdoor space, and even those stunning mountain views! This lot offers no HOA fees, and you own the land. With close proximity to the freeway, Palm Springs International Airport, and Downtown Palm Springs, the location is ideal for convenience and access. Take control of your budget, materials, and timing, and build something truly special you'll love. Don't wait--start turning your dream into reality today! NOTE:The lot is located a few streets down from where Miralon is being built. Owner has plans to build a 1,800 sqft. home with 3 bedrooms, 2 baths and a ADU with a living room, 1 bedroom and 1 bath. (They will convey with the purchase.) Approved by the city. Stamped 03-31-2023. Buyer to conduct all their due diligence in this matter with the city. Side block walls and chain link fence installed in 2023.

Essential Information

  • MLS® #219136768DA
  • Price$149,900
  • Bathrooms0.00
  • Acres0.21
  • TypeLand
  • StatusActive

Community Information

  • Address3795 El Dorado Boulevard
  • Area331 - North End Palm Springs
  • SubdivisionDesert Highland Gateway
  • CityPalm Springs
  • CountyRiverside
  • Zip Code92262

Amenities

  • ViewMountain(s)

Additional Information

  • Date ListedOctober 10th, 2025
  • Days on Market175

Listing Details

  • AgentVeronica Mendoza
  • OfficeDesert Sands Realty
Please provide a valid email address.

Veronica Mendoza, Desert Sands Realty.

Based on information from California Regional Multiple Listing Service, Inc. as of April 4th, 2026 at 1:55pm PDT. This information is for your personal, non-commercial use and may not be used for any purpose other than to identify prospective properties you may be interested in purchasing. Display of MLS data is usually deemed reliable but is NOT guaranteed accurate by the MLS. Buyers are responsible for verifying the accuracy of all information and should investigate the data themselves or retain appropriate professionals. Information from sources other than the Listing Agent may have been included in the MLS data. Unless otherwise specified in writing, Broker/Agent has not and will not verify any information obtained from other sources. The Broker/Agent providing the information contained herein may or may not have been the Listing and/or Selling Agent.