Connect

Find us on...

Dashboard

Login using...

Shawn Bengtson

Office Broker - DRE 01236964

  • Office 760-805-7199
Questions?

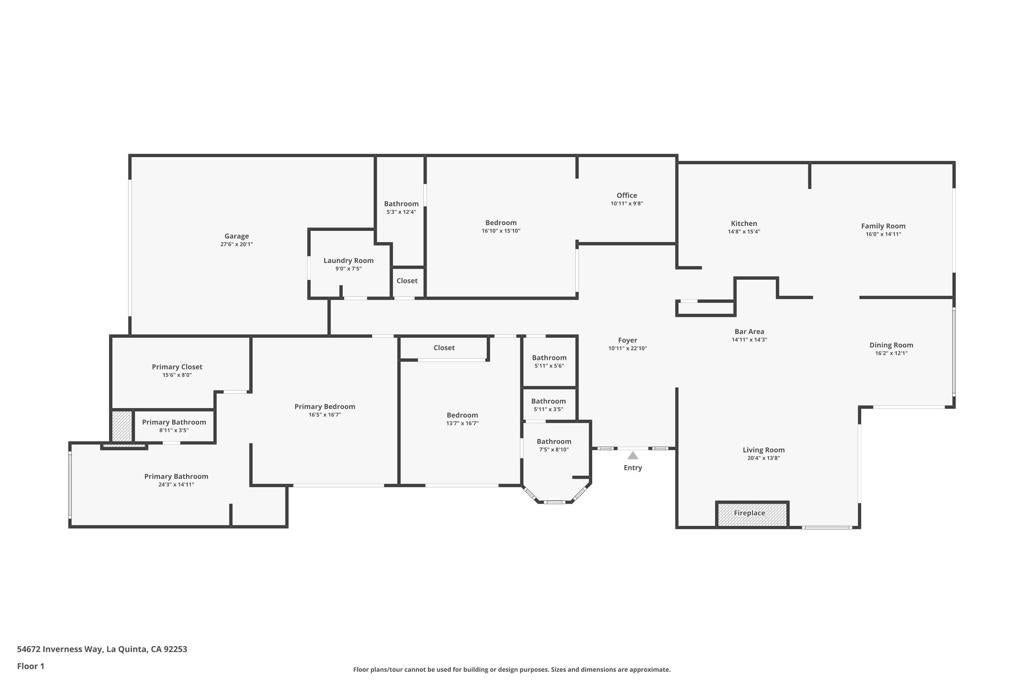
54672 Inverness Way, La Quinta – $1,399,000

  • 2 Beds
  • 4 Baths
  • 3,031 Sqft
  • 40 DOM
  • 2 Beds
  • 4 Baths
  • 3,031 Sqft
  • 40 DOM

54672 Inverness Way

Welcome to your desert dream home on the 5th hole of the world famous Pete Dye Stadium Course at PGA West, where the American Express Tournament is played each year. This beautifully renovated Legend 40 floor plan offers one of the most breathtaking south facing views in the entire community, showcasing panoramic mountains, shimmering lake, and stunning golf course scenery from every vantage point. From the moment you arrive, the lushly landscaped courtyard with turf and colorful desert plantings provides a warm and inviting entrance that sets the tone for the quality and style that continue throughout the home. Inside, soaring ceilings and walls of glass fill the great room with natural light, highlighting the dramatic floor to ceiling tiled fireplace that serves as a striking focal point. The open layout flows easily to the dining area and kitchen, perfect for both entertaining and everyday living. The former atrium has been thoughtfully converted into a private office or flex space with skylights, ideal for working from home or relaxing with a book. While the home is listed as a two bedroom, there is an additional room often used as a third bedroom in this floor plan, although it does not have a window to the exterior. Throughout the home, motorized window coverings provide comfort and privacy, while automated awnings extend the living space outdoors creating a seamless connection between indoor and outdoor living. Step outside to an entertainer's paradise where the built-in barbecue and generous patio invite gatherings with friends and family while enjoying the stunning views of the lake and the Santa Rosa Mountains. The property includes a two car garage with epoxy flooring and an electric car charging station, along with a separate golf cart garage. Major improvements include a new HVAC system, ducting, and water heaters installed in 2018, and all windows and sliders replaced in 2020 for improved energy efficiency and peace of mind. Offered fully furnished with high end designer pieces, this home is truly turnkey and ready for immediate enjoyment. Rental income from February 1, 2026, through May 1, 2026, with a gross rent of $28,500 can be transferred to the new owner. With its exceptional location, thoughtful upgrades, and breathtaking views, this residence captures the essence of desert luxury living at PGA West, whether as a full time residence, seasonal escape, or investment opportunity in one of the most desirable golf communities in La Quinta

Essential Information

  • MLS® #219138411DA
  • Price$1,399,000
  • Bedrooms2
  • Bathrooms4.00
  • Full Baths3
  • Half Baths1
  • Square Footage3,031
  • Acres0.00
  • Year Built1989
  • TypeResidential
  • Sub-TypeCondominium
  • StatusActive

Community Information

  • Address54672 Inverness Way
  • SubdivisionPGA Stadium
  • CityLa Quinta
  • CountyRiverside
  • Zip Code92253

Area

313 - La Quinta South of HWY 111

Amenities

  • UtilitiesCable Available
  • Parking Spaces3
  • # of Garages3
  • ViewMountain(s), Panoramic, Water
  • Is WaterfrontYes
  • WaterfrontWaterfront
  • Has PoolYes
  • PoolCommunity, In Ground

Amenities

Controlled Access, Insurance, Security, Cable TV

Parking

Direct Access, Garage, Garage Door Opener, Golf Cart Garage

Garages

Direct Access, Garage, Garage Door Opener, Golf Cart Garage

Interior

  • InteriorTile
  • HeatingForced Air
  • FireplaceYes
  • FireplacesGas, Living Room, See Remarks
  • # of Stories1
  • StoriesOne

Interior Features

High Ceilings, Walk-In Closet(s)

Appliances

Dishwasher, Gas Water Heater, Refrigerator

Exterior

  • RoofTile

Lot Description

Drip Irrigation/Bubblers, On Golf Course, Planned Unit Development, Waterfront

Additional Information

  • Date ListedNovember 7th, 2025
  • Days on Market40
  • HOA Fees972
  • HOA Fees Freq.Monthly

Listing Details

  • AgentJon Caruana
  • OfficeCompass
Please provide a valid email address.

Jon Caruana, Compass.

Based on information from California Regional Multiple Listing Service, Inc. as of December 17th, 2025 at 9:50am PST. This information is for your personal, non-commercial use and may not be used for any purpose other than to identify prospective properties you may be interested in purchasing. Display of MLS data is usually deemed reliable but is NOT guaranteed accurate by the MLS. Buyers are responsible for verifying the accuracy of all information and should investigate the data themselves or retain appropriate professionals. Information from sources other than the Listing Agent may have been included in the MLS data. Unless otherwise specified in writing, Broker/Agent has not and will not verify any information obtained from other sources. The Broker/Agent providing the information contained herein may or may not have been the Listing and/or Selling Agent.