Connect

Find us on...

Dashboard

Login using...

Shawn Bengtson

Office Broker - DRE 01236964

  • Office 760-805-7199
Questions?

214 Settles, Cathedral City – $139,000

  • 2 Beds
  • 2 Baths
  • 1,152 Sqft
  • 30 DOM
  • 2 Beds
  • 2 Baths
  • 1,152 Sqft
  • 30 DOM

214 Settles

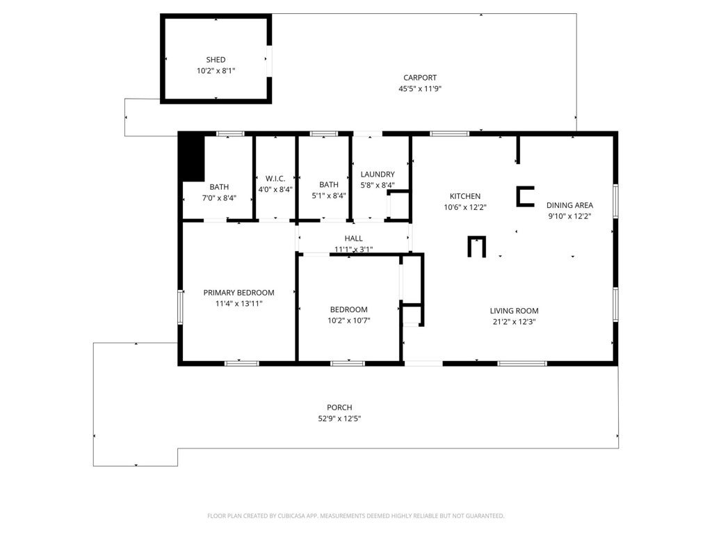
Perfect 55+ desert retreat at The Canyon! This 2BR home features an open floor plan with tall ceilings, laminate flooring, and a fully equipped kitchen with granite counters and a granite bar. Major upgrades include: new HVAC, new dishwasher, refrigerator, microwave, and hot water heater; new LVP flooring; complete re-leveling of the home with added earthquake clips; additional jacks supporting a 4 ft overhang along the home's length; and a remodeled primary bath shower. The primary suite also offers a walk-in closet, and both bathrooms include granite vanities and tile surrounds. Enjoy indoor laundry, outdoor patios, a storage shed, a long carport, and and a partially furnished interior for added convenience.*Living in The Canyon means access to fantastic amenities: tennis and pickleball courts, two pools, a spa, gym, indoor shuffleboard, billiards room, library, game room, and a beautiful dining hall where the community gathers for meals and events. The neighbors here are active, friendly, and always welcoming. Residency Requirements: Must be 55+, have a 750+ FICO score, and show proof of income that's 3x the rent (six months of bank statements required). Pets are welcome! Want to take a look? Call/text Jacqueline Clemons, at (725) 777-8197 to schedule a private showing.

Essential Information

  • MLS® #219139274DA
  • Price$139,000
  • Bedrooms2
  • Bathrooms2.00
  • Full Baths1
  • Square Footage1,152
  • Acres0.00
  • Year Built1984
  • TypeManufactured In Park
  • StatusActive

Community Information

  • Address214 Settles
  • Area336 - Cathedral City South
  • SubdivisionThe Canyon
  • CityCathedral City
  • CountyRiverside
  • Zip Code92234

Amenities

  • ParkingAttached Carport, Covered
  • GaragesAttached Carport, Covered
  • ViewMountain(s)
  • Has PoolYes
  • PoolCommunity, In Ground

Interior

  • InteriorVinyl
  • HeatingCentral
  • # of Stories1
  • StoriesOne

Appliances

Dishwasher, Gas Cooktop, Gas Oven, Refrigerator

Additional Information

  • Date ListedNovember 26th, 2025
  • Days on Market30

Listing Details

  • AgentJacqueline Clemons
  • OfficeHomeSmart
Please provide a valid email address.

Jacqueline Clemons, HomeSmart.

Based on information from California Regional Multiple Listing Service, Inc. as of December 25th, 2025 at 10:45am PST. This information is for your personal, non-commercial use and may not be used for any purpose other than to identify prospective properties you may be interested in purchasing. Display of MLS data is usually deemed reliable but is NOT guaranteed accurate by the MLS. Buyers are responsible for verifying the accuracy of all information and should investigate the data themselves or retain appropriate professionals. Information from sources other than the Listing Agent may have been included in the MLS data. Unless otherwise specified in writing, Broker/Agent has not and will not verify any information obtained from other sources. The Broker/Agent providing the information contained herein may or may not have been the Listing and/or Selling Agent.