Connect

Find us on...

Dashboard

Login using...

Shawn Bengtson

Office Broker - DRE 01236964

  • Office 760-805-7199
Questions?

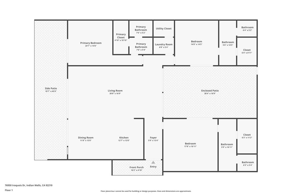
76950 Iroquois Drive, Indian Wells – $829,900

  • 3 Beds
  • 3 Baths
  • 2,280 Sqft
  • .07 Acres
  • 3 Beds
  • 3 Baths
  • 2,280 Sqft
  • .07 Acres

76950 Iroquois Drive

A rare opportunity to own a classic mid-century residence in the highly sought-after Sandpiper at Indian Wells Country Club--a community celebrated for its low density, resort-style ambiance and architectural significance. Designed in 1968 by renowned mid-century modern architect William Krisel, this condominium embodies timeless design paired with thoughtful modern updates.Offering 2,280 square feet of living space on a 3,168 square foot lot, this home features an amazing open floor plan ideal for relaxed desert living and effortless entertaining. The residence includes three king-sized en-suite bedrooms and three baths, providing exceptional comfort and privacy for owners and guests alike.Walls of glass connect the interior to both front and rear outdoor spaces, creating seamless indoor-outdoor flow and capturing serene pool views. A covered atrium brings natural light into the heart of the home, enhancing the airy, architectural feel. The gorgeous kitchen is well-appointed for modern living, complemented by updated baths, a dedicated laundry room, and an attached two-car garage.Ideally located close to the clubhouse, this home also offers access to exceptional lifestyle benefits. Owners qualify for the Indian Wells Resident Benefit Card, providing discounts at the Indian Wells Golf Resort, the BNP Paribas Open, all four Indian Wells luxury resorts, and exclusive resident events. Additionally, optional membership in Indian Wells Country Club unlocks two championship golf courses, fitness and social amenities, a full clubhouse, a steakhouse, and more.This is desert living at its finest--architecturally significant, beautifully updated, and perfectly positioned to enjoy the best of Indian Wells.

Essential Information

  • MLS® #219140712DA
  • Price$829,900
  • Bedrooms3
  • Bathrooms3.00
  • Full Baths1
  • Square Footage2,280
  • Acres0.07
  • Year Built1968
  • TypeResidential
  • Sub-TypeCondominium
  • StatusActive

Community Information

  • Address76950 Iroquois Drive
  • Area325 - Indian Wells
  • SubdivisionIndian Wells C.C.
  • CityIndian Wells
  • CountyRiverside
  • Zip Code92210

Amenities

  • UtilitiesCable Available
  • Parking Spaces2
  • # of Garages2
  • ViewMountain(s), Pool
  • Has PoolYes

Amenities

Controlled Access, Maintenance Grounds, Insurance, Barbecue, Pet Restrictions, Security

Parking

Garage, Garage Door Opener, Side By Side

Garages

Garage, Garage Door Opener, Side By Side

Pool

In Ground, Community, Electric Heat, Gunite

Interior

  • InteriorCarpet, Tile
  • CoolingCentral Air, Electric
  • # of Stories1
  • StoriesOne

Interior Features

Separate/Formal Dining Room, Walk-In Closet(s), Breakfast Bar, Multiple Primary Suites, Open Floorplan

Appliances

Dishwasher, Disposal, Gas Water Heater, Microwave, Refrigerator, Range Hood, Gas Range

Heating

Central, Forced Air, Natural Gas

Exterior

  • ExteriorStucco
  • WindowsBlinds
  • RoofCommon Roof, Elastomeric
  • ConstructionStucco
  • FoundationSlab

Lot Description

Close to Clubhouse, Planned Unit Development

Additional Information

  • Date ListedJanuary 4th, 2026
  • Days on Market91
  • HOA Fees635
  • HOA Fees Freq.Monthly

Listing Details

  • AgentGeoff Mcintosh
  • OfficeColdwell Banker Realty
Please provide a valid email address.

Geoff Mcintosh, Coldwell Banker Realty.

Based on information from California Regional Multiple Listing Service, Inc. as of April 5th, 2026 at 8:15pm PDT. This information is for your personal, non-commercial use and may not be used for any purpose other than to identify prospective properties you may be interested in purchasing. Display of MLS data is usually deemed reliable but is NOT guaranteed accurate by the MLS. Buyers are responsible for verifying the accuracy of all information and should investigate the data themselves or retain appropriate professionals. Information from sources other than the Listing Agent may have been included in the MLS data. Unless otherwise specified in writing, Broker/Agent has not and will not verify any information obtained from other sources. The Broker/Agent providing the information contained herein may or may not have been the Listing and/or Selling Agent.