Connect

Find us on...

Dashboard

Login using...

Shawn Bengtson

Office Broker - DRE 01236964

  • Office 760-805-7199
Questions?

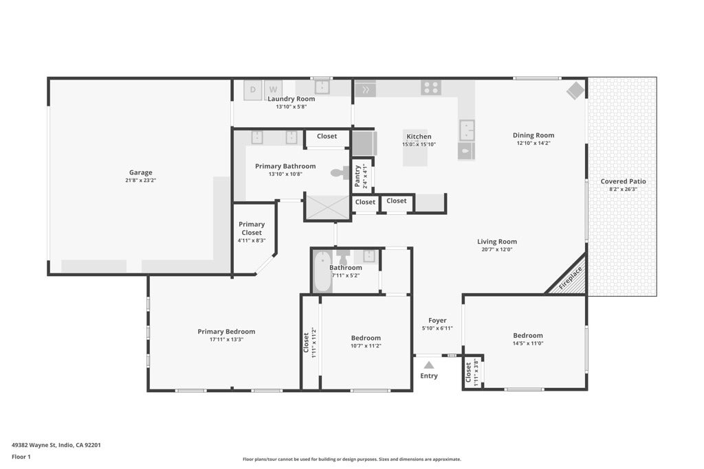
49382 Wayne Street, Indio – $499,000

  • 3 Beds
  • 2 Baths
  • 1,750 Sqft
  • .15 Acres
  • 3 Beds
  • 2 Baths
  • 1,750 Sqft
  • .15 Acres

49382 Wayne Street

Surrounded by mature, hard-to-find shade trees and lush landscaping that creates a private, park-like setting, this golf course home inside the gated Indian Palms Country Club truly stands out. The established greenery provides natural beauty, added privacy, and welcome shade, while still offering open golf course views from the back patio, a rare combination in the community. Offered furnished, mostly turnkey, this single-story home features approximately 1,750 sq ft with 3 bedrooms and 2 full baths, designed for relaxed desert living. The open floor plan is ideal for entertaining and everyday comfort. The kitchen includes granite slab countertops, a center island with vegetable sink, pantry, breakfast bar, and stainless steel appliances, flowing seamlessly into the dining area and family room with gas fireplace, ceiling fans, &Smart TVs. The primary suite offers a walk-in closet and dual sinks, while two additional bedrooms provide flexible space for guests, hobbies, or a home office. Outdoor living shines with a private front courtyard and a covered back patio overlooking the golf course, perfect for morning coffee in the shade or evening dining with sunset views. Residents enjoy access to multiple community pools, and this home includes the deeded Lifestyle Center with fitness center, pickleball, bocce ball, tennis courts, clubhouse, and on-site restaurant, all with close proximity to Empire Polo Grounds, Indian Wells Tennis Garden, shopping, dining, and freeway access. Owner is related to the listing agent.

Essential Information

  • MLS® #219141160DA
  • Price$499,000
  • Bedrooms3
  • Bathrooms2.00
  • Full Baths2
  • Square Footage1,750
  • Acres0.15
  • Year Built2003
  • TypeResidential
  • Sub-TypeSingle Family Residence
  • StyleRanch
  • StatusActive

Community Information

  • Address49382 Wayne Street
  • SubdivisionIndian Palms (31432)
  • CityIndio
  • CountyRiverside
  • Zip Code92201

Area

314 - Indio South of East Valley

Amenities

  • UtilitiesCable Available
  • Parking Spaces6
  • # of Garages2
  • ViewGolf Course, Mountain(s)
  • Has PoolYes

Amenities

Bocce Court, Controlled Access, Fitness Center, Maintenance Grounds, Management, Meeting Room, Pet Restrictions, Recreation Room, Security, Sport Court, Tennis Court(s)

Parking

Driveway, Direct Access, Garage, Garage Door Opener

Garages

Driveway, Direct Access, Garage, Garage Door Opener

Pool

In Ground, Community, Electric Heat, Lap, Salt Water

Interior

  • InteriorCarpet, Tile
  • CoolingCentral Air, Electric
  • FireplaceYes
  • # of Stories1
  • StoriesOne

Interior Features

All Bedrooms Down, Bedroom on Main Level, Breakfast Bar, Main Level Primary, Open Floorplan, Separate/Formal Dining Room, Utility Room

Appliances

Dishwasher, Microwave, Refrigerator, Disposal, Gas Cooktop, Gas Oven, Gas Water Heater, Ice Maker, Water To Refrigerator

Heating

Central, Forced Air, Natural Gas

Fireplaces

Living Room, Gas, Masonry, Raised Hearth

Exterior

  • ExteriorStucco
  • WindowsBlinds
  • RoofTile
  • ConstructionStucco

Lot Description

Back Yard, Drip Irrigation/Bubblers, Front Yard, Landscaped, Lawn, Level, On Golf Course, Planned Unit Development, Sprinklers Timer, Sprinkler System

Additional Information

  • Date ListedJanuary 8th, 2026
  • Days on Market93
  • HOA Fees171.21
  • HOA Fees Freq.Monthly

Listing Details

  • AgentLisa Angell
  • OfficeLPT Realty
Please provide a valid email address.

Price Change History for 49382 Wayne Street, Indio, (MLS® #219141160DA)

Date Details Change
Price Reduced from $524,000 to $499,000 $25,000 (4.77%)
Price Reduced from $549,000 to $524,000 $25,000 (4.55%)

Lisa Angell, LPT Realty.

Based on information from California Regional Multiple Listing Service, Inc. as of April 18th, 2026 at 5:40am PDT. This information is for your personal, non-commercial use and may not be used for any purpose other than to identify prospective properties you may be interested in purchasing. Display of MLS data is usually deemed reliable but is NOT guaranteed accurate by the MLS. Buyers are responsible for verifying the accuracy of all information and should investigate the data themselves or retain appropriate professionals. Information from sources other than the Listing Agent may have been included in the MLS data. Unless otherwise specified in writing, Broker/Agent has not and will not verify any information obtained from other sources. The Broker/Agent providing the information contained herein may or may not have been the Listing and/or Selling Agent.