Connect

Find us on...

Dashboard

Login using...

Shawn Bengtson

Office Broker - DRE 01236964

  • Office 760-805-7199
Questions?

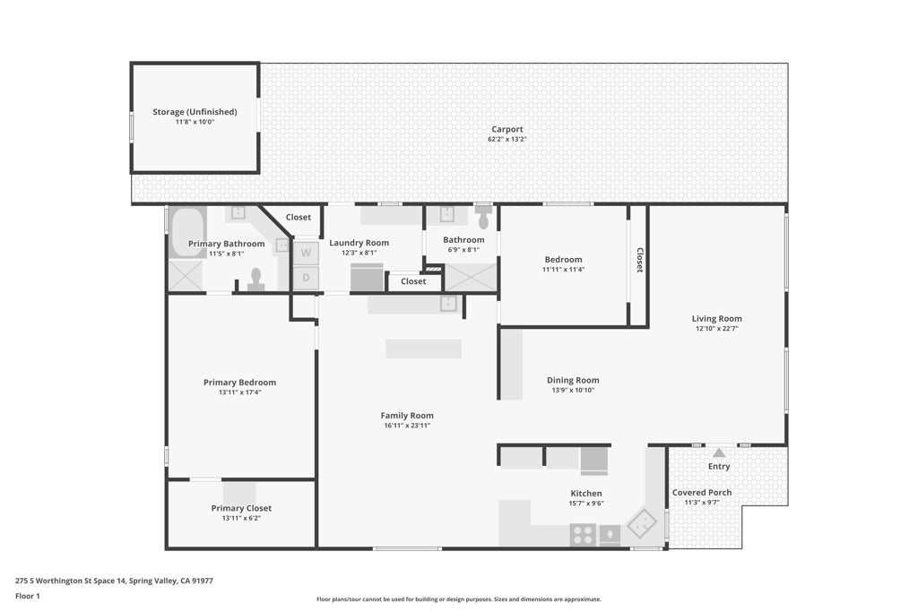
275 S Worthington Street # 14, Spring Valley – $206,000

  • 2 Beds
  • 2 Baths
  • 1,920 Sqft
  • 43 DOM
  • 2 Beds
  • 2 Baths
  • 1,920 Sqft
  • 43 DOM

275 S Worthington Street # 14

Beautifully maintained 2 bed, 2 bath Triple-Wide in the highly desirable 55+ Bonita Hills Estates, a clean and well-kept Senior Community with wide paved streets and attractive homes. Inside, you'll love the vaulted ceilings with gorgeous exposed wood beams, giving the home a bright and open feel. The updated kitchen, remodeled just a few years ago, pairs perfectly with the home's vintage charm--highlighted by a unique antique bar area, ideal for entertaining. Practical upgrades include dual-pane windows, plus washer & dryer and two refrigerators that convey with the home.Step outside to the oversized east-facing front viewing deck, where you can enjoy morning sunrises and beautiful lake views, plus a small fenced backyard area perfect for pets. The community offers a Clubhouse, Pool, and Recreational Amenities for an active lifestyle. The community is celebrated for its elevated location with breathtaking surroundings and its exceptionally well-maintained environment.

Essential Information

  • MLS® #219142485DA
  • Price$206,000
  • Bedrooms2
  • Bathrooms2.00
  • Full Baths2
  • Square Footage1,920
  • Acres0.00
  • Year Built1985
  • TypeManufactured In Park
  • StatusActive

Community Information

  • Address275 S Worthington Street # 14
  • Area91977 - Spring Valley
  • SubdivisionNot Applicable-1
  • CitySpring Valley
  • CountySan Diego
  • Zip Code91977

Amenities

  • ParkingAttached Carport
  • GaragesAttached Carport
  • ViewMountain(s), Peek-A-Boo
  • Has PoolYes
  • PoolCommunity, In Ground

Interior

  • InteriorCarpet, Laminate, Vinyl
  • Interior FeaturesBeamed Ceilings, High Ceilings
  • HeatingCentral, Forced Air
  • CoolingCentral Air, Electric
  • # of Stories1
  • StoriesOne

Appliances

Dishwasher, Electric Oven, Disposal, Gas Range, Refrigerator

Additional Information

  • Date ListedJanuary 13th, 2026
  • Days on Market43

Listing Details

  • AgentRachael Kobler
  • OfficeBennion Deville Homes
Please provide a valid email address.

Price Change History for 275 S Worthington Street # 14, Spring Valley, (MLS® #219142485DA)

Date Details Change
Price Reduced from $216,000 to $206,000 $10,000 (4.63%)

Rachael Kobler, Bennion Deville Homes.

Based on information from California Regional Multiple Listing Service, Inc. as of March 16th, 2026 at 7:35pm PDT. This information is for your personal, non-commercial use and may not be used for any purpose other than to identify prospective properties you may be interested in purchasing. Display of MLS data is usually deemed reliable but is NOT guaranteed accurate by the MLS. Buyers are responsible for verifying the accuracy of all information and should investigate the data themselves or retain appropriate professionals. Information from sources other than the Listing Agent may have been included in the MLS data. Unless otherwise specified in writing, Broker/Agent has not and will not verify any information obtained from other sources. The Broker/Agent providing the information contained herein may or may not have been the Listing and/or Selling Agent.