Connect

Find us on...

Dashboard

Login using...

Shawn Bengtson

Office Broker - DRE 01236964

  • Office 760-805-7199
Questions?

12364 Palmer Drive, Moorpark – $2,039,000

  • 5 Beds
  • 6 Baths
  • 4,764 Sqft
  • .51 Acres
  • 5 Beds
  • 6 Baths
  • 4,764 Sqft
  • .51 Acres

12364 Palmer Drive

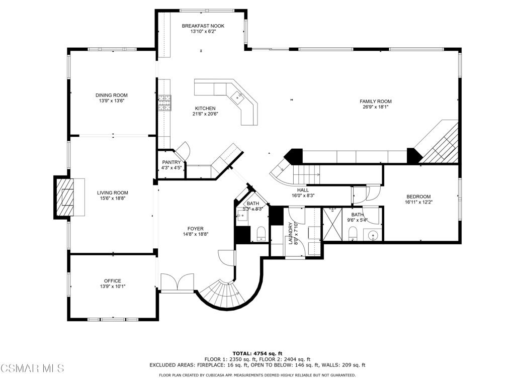
Welcome to 12364 Palmer Drive, a stunning luxury estate located in the prestigious gated community of Country Club Estates in Moorpark. This two-story masterpiece offers 4,764 square feet of thoughtfully designed living space with 5 bedrooms and 6 bathrooms, all set on a half-acre lot with breathtaking mountain views and close proximity to the Moorpark Country Club and its scenic 27-hole golf course.As you step through the grand two-story foyer, you're greeted by soaring ceilings, a sweeping curved staircase, and an open, elegant layout. The first floor boasts a gourmet kitchen featuring stainless steel appliances, double ovens, a six-burner stove, granite counters, a center island, and a breakfast nook that flows seamlessly into the spacious family room with built-in cabinetry and a media niche. Formal living and dining rooms provide a perfect setting for hosting gatherings, while a private study/library adds sophistication and functionality. A first-floor guest suite with a private bath offers ideal accommodations for extended family or visitors. Upstairs, the primary suite is a private sanctuary complete with a sitting area, dual walk-in closets, a spa-like bathroom with a jetted soaking tub, dual vanities, and a walk-in shower. The suite also includes a balcony with stunning sunset views. Three additional bedrooms each feature their own private ensuite bathrooms, along with a flexible activity room perfect for a gym, office, or playroom. The backyard is an entertainer's dream, featuring a resort-style pool and spa, an outdoor pavilion with a grand fireplace, a built-in BBQ with bar seating, and multiple lounge areas surrounded by lush landscaping. Whether hosting a summer party or enjoying a quiet evening under the stars, this backyard offers year-round enjoyment. Additional highlights include a four car garage, individual laundry room, central dual zone HVAC, and community amenities such as tennis courts, pickleball, playgrounds, and walking paths. This is more than a home, it's a lifestyle of elegance, comfort, and California luxury. Some images are virtually staged.

Essential Information

  • MLS® #225004583
  • Price$2,039,000
  • Bedrooms5
  • Bathrooms6.00
  • Full Baths5
  • Half Baths1
  • Square Footage4,764
  • Acres0.51
  • Year Built2005
  • TypeResidential
  • Sub-TypeSingle Family Residence
  • StatusActive

Community Information

  • Address12364 Palmer Drive
  • AreaNMP - North Moorpark
  • CityMoorpark
  • CountyVentura
  • Zip Code93021

Amenities

  • AmenitiesTennis Court(s)
  • Parking Spaces4
  • # of Garages4
  • ViewMountain(s), Hills, Pool
  • Has PoolYes
  • PoolGunite, In Ground, Private

Interior

  • InteriorCarpet, Wood, Stone
  • HeatingNatural Gas
  • CoolingCentral Air
  • FireplaceYes
  • # of Stories2
  • StoriesTwo

Interior Features

Pantry, Bedroom on Main Level, Balcony, Cathedral Ceiling(s)

Appliances

Convection Oven, Dishwasher, Disposal, Refrigerator, Gas Cooking, Vented Exhaust Fan

Fireplaces

Family Room, Gas, Living Room, Raised Hearth

Exterior

  • ExteriorStucco
  • Exterior FeaturesRain Gutters
  • ConstructionStucco
  • FoundationSlab

Lot Description

Back Yard, Sprinklers In Rear, Sprinklers In Front, Paved, Close to Clubhouse, Landscaped, Lawn, Near Park, Sprinkler System, Walkstreet

School Information

  • DistrictMoorpark Unified

Additional Information

  • Date ListedSeptember 8th, 2025
  • Days on Market109
  • ZoningR-L
  • HOA Fees300
  • HOA Fees Freq.Monthly

Listing Details

  • AgentDutch Markgraf

Office

Pinnacle Estate Properties, Inc.

Please provide a valid email address.

Price Change History for 12364 Palmer Drive, Moorpark, (MLS® #225004583)

Date Details Change
Price Reduced from $2,099,000 to $2,039,000 $60,000 (2.86%)

Dutch Markgraf, Pinnacle Estate Properties, Inc..

Based on information from California Regional Multiple Listing Service, Inc. as of January 5th, 2026 at 4:30am PST. This information is for your personal, non-commercial use and may not be used for any purpose other than to identify prospective properties you may be interested in purchasing. Display of MLS data is usually deemed reliable but is NOT guaranteed accurate by the MLS. Buyers are responsible for verifying the accuracy of all information and should investigate the data themselves or retain appropriate professionals. Information from sources other than the Listing Agent may have been included in the MLS data. Unless otherwise specified in writing, Broker/Agent has not and will not verify any information obtained from other sources. The Broker/Agent providing the information contained herein may or may not have been the Listing and/or Selling Agent.