Connect

Find us on...

Dashboard

Login using...

Shawn Bengtson

Office Broker - DRE 01236964

  • Office 760-805-7199
Questions?

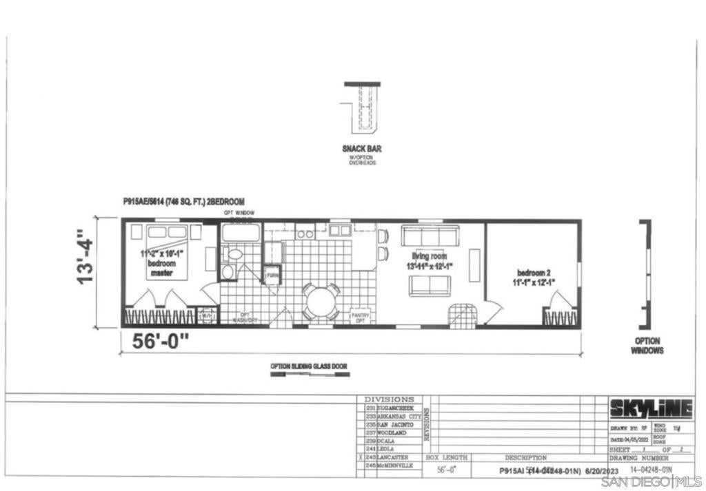
725 Thornton Avenue # 79, Hemet – $64,900

  • 2 Beds
  • 1 Bath
  • 784 Sqft
  • 430 DOM
  • 2 Beds
  • 1 Bath
  • 784 Sqft
  • 430 DOM

725 Thornton Avenue # 79

This lovely two-bedroom, one-bath home offers a bright and inviting interior with ample storage space. The charming porch adds a touch of character to the front, making it the perfect spot to relax and enjoy the outdoors. Inside, the kitchen is equipped with brand-new appliances, creating a modern and efficient cooking space. Located in the sought-after +55 senior community of London Spires, this home combines comfort and functionality for a relaxed lifestyle. Please note, this is a leased park home, with a space rent of $730 per month.

Essential Information

  • MLS® #250016997SD
  • Price$64,900
  • Bedrooms2
  • Bathrooms1.00
  • Full Baths1
  • Square Footage784
  • Acres0.00
  • Year Built2018
  • TypeManufactured In Park
  • Sub-TypeManufactured On Land
  • StatusActive

Community Information

  • Address725 Thornton Avenue # 79
  • CityHemet
  • CountyRiverside
  • Zip Code92543

Area

SRCAR - Southwest Riverside County

Amenities

  • UtilitiesWater Available
  • Parking Spaces2
  • ParkingCarport, Other
  • GaragesCarport, Other
  • Has PoolYes
  • PoolCommunity

Interior

  • Interior FeaturesBedroom on Main Level
  • AppliancesGas Cooktop, Gas Oven
  • HeatingForced Air, Natural Gas
  • CoolingCentral Air
  • # of Stories1
  • StoriesOne

Exterior

  • ExteriorCement Siding
  • RoofComposition
  • ConstructionCement Siding

Additional Information

  • Date ListedJanuary 22nd, 2025
  • Days on Market430

Listing Details

  • AgentCyd Panaccione
  • OfficeBrush Realty
Please provide a valid email address.

Price Change History for 725 Thornton Avenue # 79, Hemet, (MLS® #250016997SD)

Date Details Change
Price Reduced from $74,900 to $64,900 $10,000 (13.35%)
Price Reduced from $79,900 to $74,900 $5,000 (6.26%)

Cyd Panaccione, Brush Realty.

Based on information from California Regional Multiple Listing Service, Inc. as of April 11th, 2026 at 9:30pm PDT. This information is for your personal, non-commercial use and may not be used for any purpose other than to identify prospective properties you may be interested in purchasing. Display of MLS data is usually deemed reliable but is NOT guaranteed accurate by the MLS. Buyers are responsible for verifying the accuracy of all information and should investigate the data themselves or retain appropriate professionals. Information from sources other than the Listing Agent may have been included in the MLS data. Unless otherwise specified in writing, Broker/Agent has not and will not verify any information obtained from other sources. The Broker/Agent providing the information contained herein may or may not have been the Listing and/or Selling Agent.