Connect

Find us on...

Dashboard

Login using...

Shawn Bengtson

Office Broker - DRE 01236964

  • Office 760-805-7199
Questions?

9240 Harness St, Spring Valley – $1,800,000

  • $1.8M Price
  • 151 DOM
  • $1.8M Price
  • 151 DOM

9240 Harness St

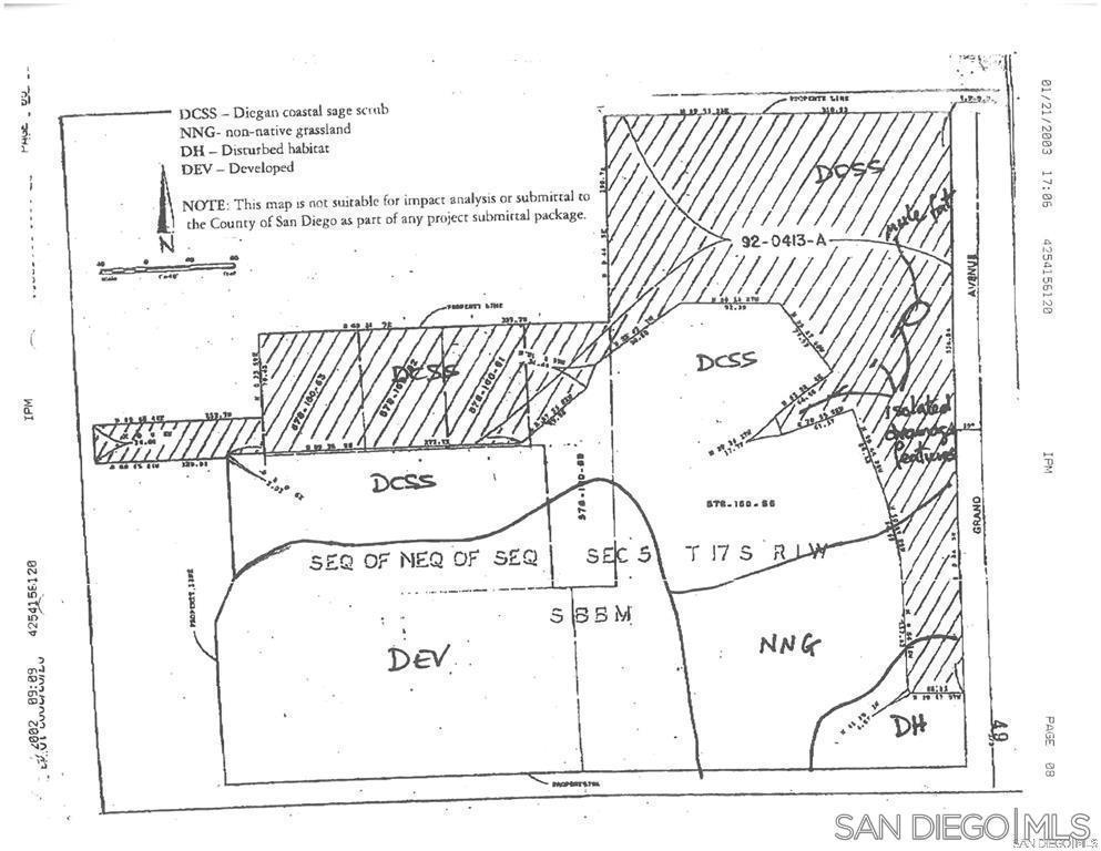
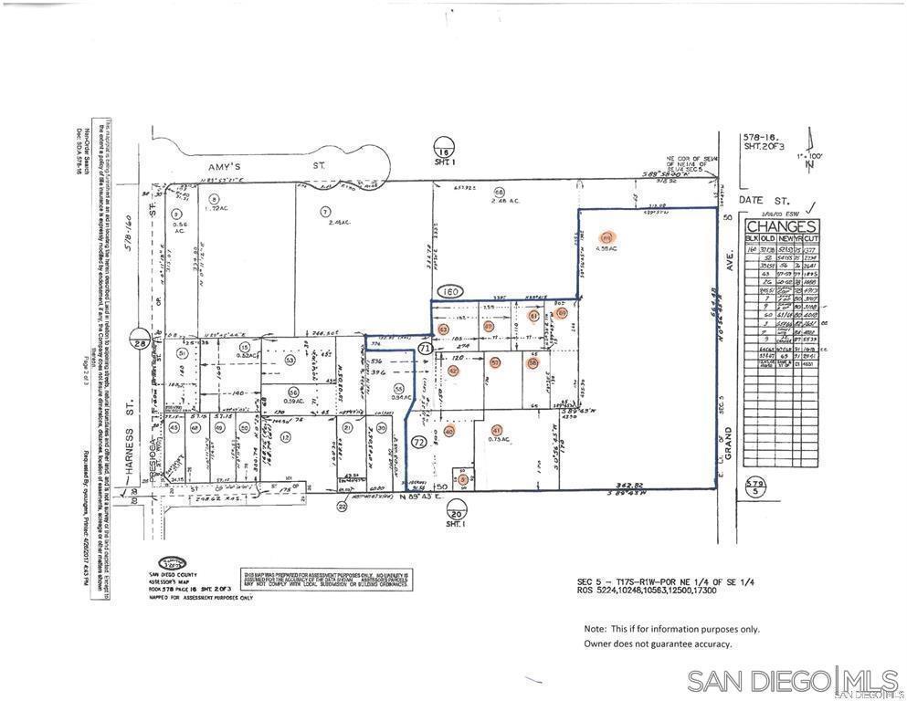
Unique development opportunity: 13 parcels totaling 8 acres in San Diego County. Includes 3 tenant-occupied homes in poor, likely uninhabitable condition—not up to code. Sold as vacant land; no warranties made. Part of the land is undevelopable due to open space easement and topography. Preliminary talks with San Diego County suggest potential for up to 26 lots (6,000 SF each) could be approved. Buyer to verify all info; seller and broker make no guarantees on approvals or development. Buyers & buyers agent to verify all herein prior to submitting an offer! APN #1- 578-160-05-00 APN #2 - 578-160-40-00 APN #3- 578-160-41-00 APN #4- 578-160-42-00 APN #5- 578-160-57-00 APN #6- 578-160-58-00 APN #7- 578-160-61-00 APN #8- 578-160-62-00 APN #9- 578-160-63-00 APN #10- 578-160-66-00 APN #11- 578-160-69-00 APN #12- 578-160-71-00 APN #13 -578-160-72-00

Essential Information

  • MLS® #250036643SD
  • Price$1,800,000
  • Bathrooms0.00
  • Acres0.00
  • TypeCommercial Sale
  • StatusActive

Community Information

  • Address9240 Harness St
  • Area91977 - Spring Valley
  • CitySpring Valley
  • CountySan Diego
  • Zip Code91977

Additional Information

  • Date ListedAugust 18th, 2025
  • Days on Market151

Listing Details

  • AgentDavid Jefferson
  • OfficeWeichert SoCal
Please provide a valid email address.

Price Change History for 9240 Harness St, Spring Valley, (MLS® #250036643SD)

Date Details Change
Price Reduced from $2,400,000 to $1,800,000 $600,000 (25.00%)

David Jefferson, Weichert SoCal.

Based on information from California Regional Multiple Listing Service, Inc. as of January 17th, 2026 at 2:35pm PST. This information is for your personal, non-commercial use and may not be used for any purpose other than to identify prospective properties you may be interested in purchasing. Display of MLS data is usually deemed reliable but is NOT guaranteed accurate by the MLS. Buyers are responsible for verifying the accuracy of all information and should investigate the data themselves or retain appropriate professionals. Information from sources other than the Listing Agent may have been included in the MLS data. Unless otherwise specified in writing, Broker/Agent has not and will not verify any information obtained from other sources. The Broker/Agent providing the information contained herein may or may not have been the Listing and/or Selling Agent.