Connect

Find us on...

Dashboard

Login using...

Shawn Bengtson

Office Broker - DRE 01236964

  • Office 760-805-7199
Questions?

1502 Christine Place, Encinitas – $949,999

  • $950k Price
  • 1.23 Acres
  • 149 DOM
  • $950k Price
  • 1.23 Acres
  • 149 DOM

1502 Christine Place

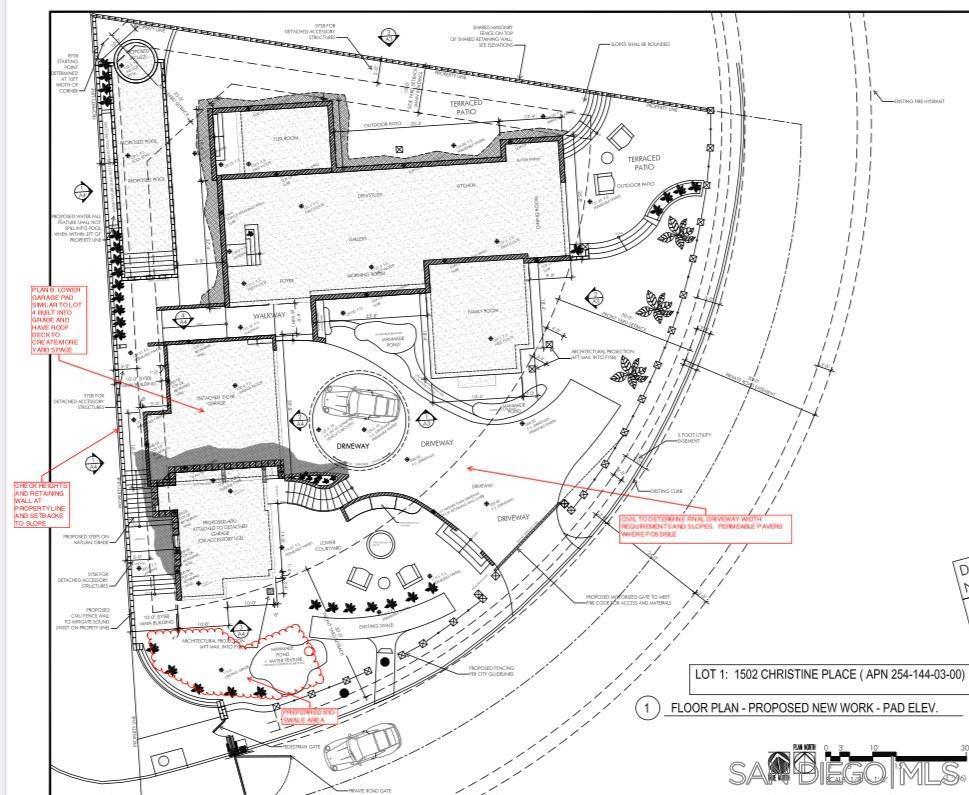
Modern Rendering with intentional flow and flexibility, offering approximately 5,974 sq.ft. of total living space (excluding the garage and roof deck). The main residence spans 2,483 sq.ft. and features a seamless connection to outdoor areas, including a terraced patio and optional roof deck. The detached 833 sq.ft. garage is complemented by a 1,067 sq.ft. rooftop deck. A two-level ADU adjacent to the garage provides 992 sq.ft., including one bedroom and a small office space—ideal for guests, work-from-home, or rental potential. A lower-level 456 sq.ft. basement offers bonus flex space and integrates with a plunge pool set into grade without stacked retaining walls. The first floor includes an optional bedroom and bathroom, while the second floor is designed for three bedrooms and three bathrooms across 2,043 sq.ft. The design incorporates permeable pavers, strategic slope grading, and a proposed bioswale for optimal drainage and environmental sensitivity. This home blends function, privacy, and high-end design in one of Encinitas’ most sought-after coastal neighborhoods. A quick jot down to world famous south Ponto beach, grand view surf, Leucadia beach and Encinitas county park. If you like to golf Omni Resort or Encinitas Ranch Golf! Walking distance to Olympus park for family fun a zipline for the kids, slides, skate ramp and a dog park.

Essential Information

  • MLS® #250037838SD
  • Price$949,999
  • Bathrooms0.00
  • Acres1.23
  • TypeLand
  • StatusActive

Community Information

  • Address1502 Christine Place
  • Area92024 - Encinitas
  • SubdivisionEncinitas
  • CityEncinitas
  • CountySan Diego
  • Zip Code92024

Amenities

  • ViewBay, Ocean

Additional Information

  • Date ListedSeptember 2nd, 2025
  • Days on Market149
  • ZoningR1

Listing Details

  • AgentJonelle Bechard
  • OfficeCompass
Please provide a valid email address.

Jonelle Bechard, Compass.

Based on information from California Regional Multiple Listing Service, Inc. as of January 29th, 2026 at 8:30pm PST. This information is for your personal, non-commercial use and may not be used for any purpose other than to identify prospective properties you may be interested in purchasing. Display of MLS data is usually deemed reliable but is NOT guaranteed accurate by the MLS. Buyers are responsible for verifying the accuracy of all information and should investigate the data themselves or retain appropriate professionals. Information from sources other than the Listing Agent may have been included in the MLS data. Unless otherwise specified in writing, Broker/Agent has not and will not verify any information obtained from other sources. The Broker/Agent providing the information contained herein may or may not have been the Listing and/or Selling Agent.