Connect

Find us on...

Dashboard

Login using...

Shawn Bengtson

Office Broker - DRE 01236964

  • Office 760-805-7199
Questions?

Calle Rancho Vista, Encinitas – $1,599,000

  • $1.6M Price
  • .87 Acres
  • 67 DOM
  • $1.6M Price
  • .87 Acres
  • 67 DOM

Calle Rancho Vista

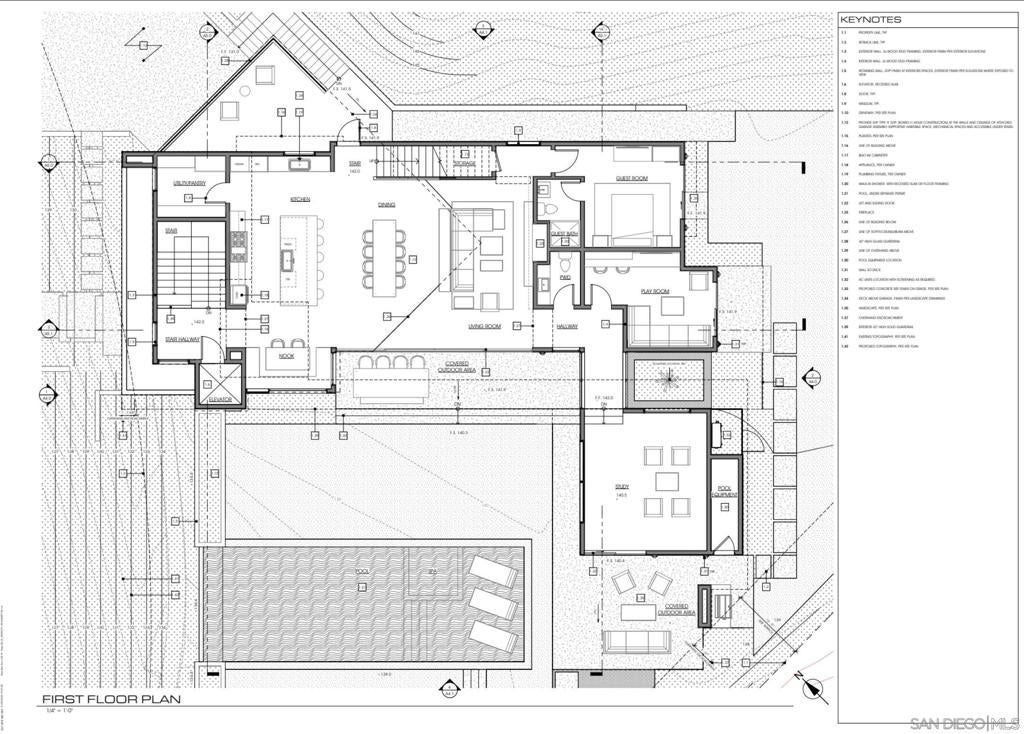
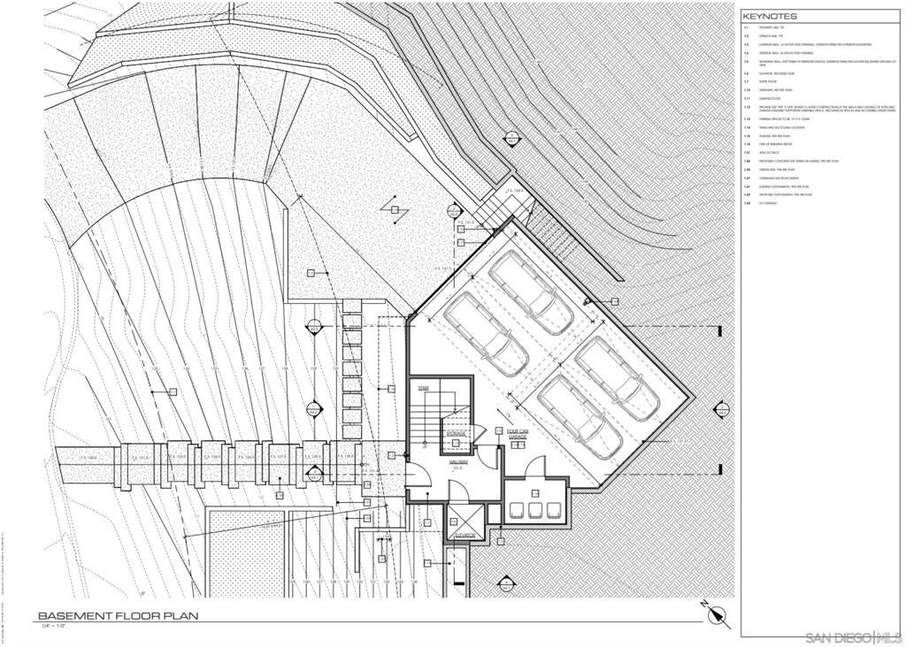
MOTIVATED SELLER. Seller is in escrow on a different property and has a tight window to close. Seller will look at all offers as long as his current up-leg property is in the picture. One of the Last Remaining Lots in Olivenhain – Canyon Views | Prime Location. Rare opportunity to build a custom estate on one of the final available lots in a private Olivenhain cul-de-sac, just 10 minutes from Cardiff Beach. This exceptional property offers stunning canyon views and over three years of completed work with the City of Encinitas. The proposed design features a 4,600 sq ft custom home with a 1,000 sq ft subterranean 4-car garage, 4 bedrooms (plus optional 5th), office, study, private elevator, oversized walk-in pantry, 250 sq ft primary closet, and a spacious backyard with a front-facing infinity edge pool. Progress highlights: Soils and ecological reports completed, grading and slope evaluations done, fire, water, and sewer services evaluated at the street Ready to enter structural and construction "doc" phase. With just one lot left in this coveted neighborhood, and the potential to break ground as soon as early 2026, this is a rare chance to create a signature home in one of North County’s most desirable communities.

Essential Information

  • MLS® #250040119SD
  • Price$1,599,000
  • Bathrooms0.00
  • Acres0.87
  • TypeLand
  • StatusActive

Community Information

  • AddressCalle Rancho Vista
  • Area92024 - Encinitas
  • SubdivisionEncinitas
  • CityEncinitas
  • CountySan Diego
  • Zip Code92024

Exterior

  • Lot DescriptionSteep Slope

Additional Information

  • Date ListedSeptember 27th, 2025
  • Days on Market67
  • ZoningRR2

Listing Details

  • AgentMatthew Tovey

Office

Berkshire Hathaway HomeServices California Properties

Please provide a valid email address.

Matthew Tovey, Berkshire Hathaway HomeServices California Properties.

Based on information from California Regional Multiple Listing Service, Inc. as of December 5th, 2025 at 12:15am PST. This information is for your personal, non-commercial use and may not be used for any purpose other than to identify prospective properties you may be interested in purchasing. Display of MLS data is usually deemed reliable but is NOT guaranteed accurate by the MLS. Buyers are responsible for verifying the accuracy of all information and should investigate the data themselves or retain appropriate professionals. Information from sources other than the Listing Agent may have been included in the MLS data. Unless otherwise specified in writing, Broker/Agent has not and will not verify any information obtained from other sources. The Broker/Agent providing the information contained herein may or may not have been the Listing and/or Selling Agent.