Connect

Find us on...

Dashboard

Login using...

Shawn Bengtson

Office Broker - DRE 01236964

  • Office 760-805-7199
Questions?

9410 Pike Rd, Santee – $1,599,000

  • 7 Beds
  • 6 Baths
  • 2,912 Sqft
  • .21 Acres
  • 7 Beds
  • 6 Baths
  • 2,912 Sqft
  • .21 Acres

9410 Pike Rd

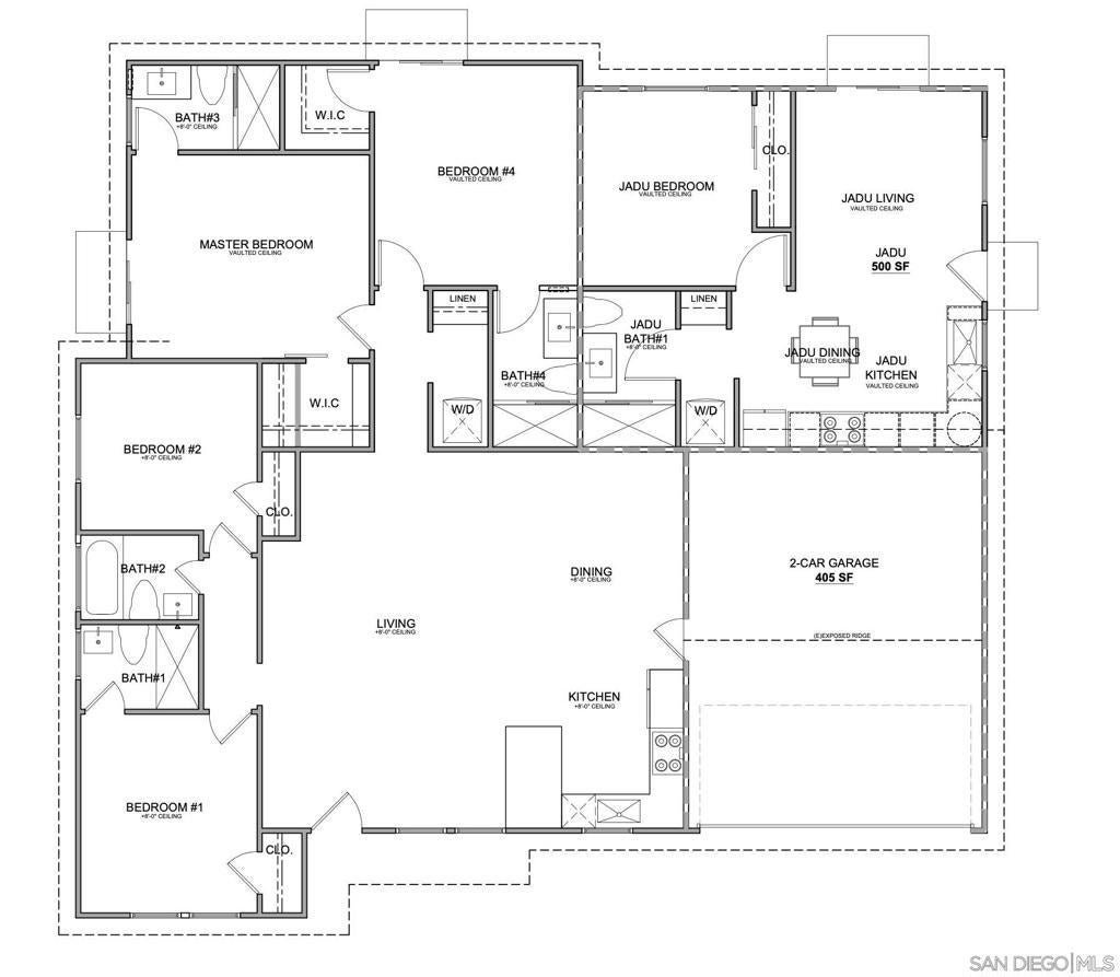
No requirement for owner occupancy as of Jan 1, 2026—excellent for investors. This fully rebuilt 3-unit property offers 7 total bedrooms, 6 total baths, and approx. 2,912 total sq. ft. across a main house, ADU, and JADU. A complete ground-up transformation blending extensive remodeling with new construction, the project is slated for March/April 2026 completion and delivers exceptional flexibility and income potential. What began as an 1960's style, original 950 sq. ft. home has been expanded by approx. 1,100 sq. ft., resulting in a redesigned 4-bed, 4-bath main residence totaling 1,522 sq. ft. The original structure is being taken down to the studs and rebuilt with contemporary finishes, while the new additions will add high ceilings, quality materials, and a much improved floor plan. Integrated into the expansion is a permitted 500 sq. ft. Junior ADU with 1 bed, 1 bath, its own laundry, vaulted ceilings, and private entrance. A separate brand-new 890 sq. ft. ADU offers 2 beds, 2 bath, vaulted ceilings, full laundry, and modern new-build construction. Each has their own private outdoor space. Every finish is new—roof, kitchen, baths, flooring, windows, trim, lighting, plumbing, electrical, appliances, and exterior materials. The remodeled two-car garage remains available for parking/storage. A rare multi-home opportunity—ideal as a family compound, a live-one-rent-two setup, or a strong investment with multiple revenue streams. Three beautiful living spaces, all new, on one property. Utilities: 3 separate electric meters, 2 separate gas meters, 1 shared water meter.

Essential Information

  • MLS® #250045347SD
  • Price$1,599,000
  • Bedrooms7
  • Bathrooms6.00
  • Full Baths6
  • Square Footage2,912
  • Acres0.21
  • Year Built2025
  • TypeResidential
  • Sub-TypeSingle Family Residence
  • StatusActive

Community Information

  • Address9410 Pike Rd
  • Area92071 - Santee
  • SubdivisionSantee
  • CitySantee
  • CountySan Diego
  • Zip Code92071

Amenities

  • Parking Spaces4
  • # of Garages2
  • PoolNone

Parking

Concrete, Garage, Garage Door Opener

Garages

Concrete, Garage, Garage Door Opener

Interior

  • AppliancesDishwasher, Disposal
  • HeatingForced Air, See Remarks
  • CoolingCentral Air, See Remarks
  • # of Stories1
  • StoriesOne

Interior Features

Eat-in Kitchen, See Remarks, Bedroom on Main Level, Main Level Primary, Walk-In Closet(s)

Exterior

  • ExteriorStucco
  • RoofComposition, See Remarks
  • ConstructionStucco

Additional Information

  • Date ListedFebruary 9th, 2026
  • Days on Market37
  • ZoningR-1:SINGLE

Listing Details

  • AgentKen May
  • OfficeCompass
Please provide a valid email address.

Ken May, Compass.

Based on information from California Regional Multiple Listing Service, Inc. as of March 18th, 2026 at 4:15pm PDT. This information is for your personal, non-commercial use and may not be used for any purpose other than to identify prospective properties you may be interested in purchasing. Display of MLS data is usually deemed reliable but is NOT guaranteed accurate by the MLS. Buyers are responsible for verifying the accuracy of all information and should investigate the data themselves or retain appropriate professionals. Information from sources other than the Listing Agent may have been included in the MLS data. Unless otherwise specified in writing, Broker/Agent has not and will not verify any information obtained from other sources. The Broker/Agent providing the information contained herein may or may not have been the Listing and/or Selling Agent.