Connect

Find us on...

Dashboard

Login using...

Shawn Bengtson

Office Broker - DRE 01236964

  • Office 760-805-7199
Questions?

4660 Coldwater Canyon Avenue # 4, Studio City – $2,600

  • 2 Beds
  • 2 Baths
  • 920 Sqft
  • .42 Acres
  • 2 Beds
  • 2 Baths
  • 920 Sqft
  • .42 Acres

4660 Coldwater Canyon Avenue # 4

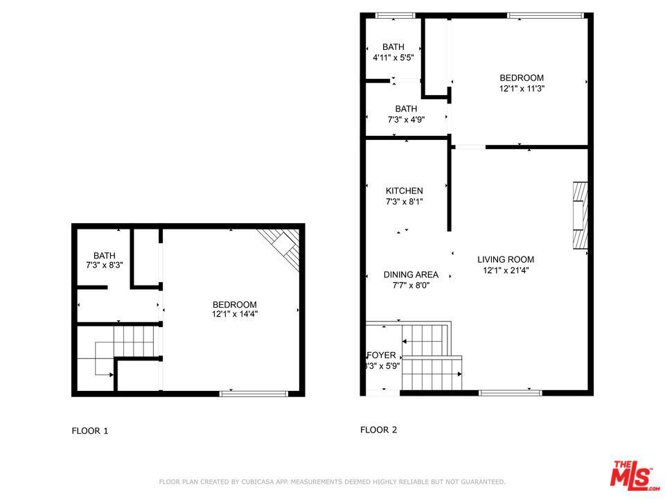
Studio City 2BR Condo Two-Level Layout, 2 Fireplaces, A/C, Pool, Storage & More! Bright, spacious, and full of potential, this 2-bedroom, 2-bath, 920 sq ft condo in the heart of Studio City offers a rare two-level layout offering fantastic privacy and flow. With lots of natural light, generous storage, and a smart floor plan, it s a perfect place to settle in. Freshly painted and cleaned, this home is move-in ready. Enjoy two fireplaces (living room & downstairs bedroom), central A/C, and an open-concept main level that feels light and airy. Dishwasher and refrigerator included. Spacious bedrooms with built-ins and ample storage Gated parking spot with private storage area, On-site laundry, Courtyard pool and BBQ area for relaxation and entertaining, Near shops, dining, and public transportation Quick freeway access: 101, 170, and 134

Essential Information

  • MLS® #25558705
  • Price$2,600
  • Bedrooms2
  • Bathrooms2.00
  • Full Baths2
  • Square Footage920
  • Acres0.42
  • Year Built1974
  • TypeResidential Lease
  • Sub-TypeTownhouse
  • StatusActive

Community Information

  • AreaSTUD - Studio City
  • CityStudio City
  • CountyLos Angeles
  • Zip Code91604

Address

4660 Coldwater Canyon Avenue # 4

Amenities

  • AmenitiesOutdoor Cooking Area, Pool
  • Parking Spaces1
  • ViewNone
  • Has PoolYes

Parking

Carport, Electric Gate, Storage

Garages

Carport, Electric Gate, Storage

Pool

Above Ground, Heated, Association

Interior

  • InteriorWood
  • Interior FeaturesCeiling Fan(s), Loft
  • HeatingCentral
  • CoolingCentral Air
  • FireplaceYes
  • FireplacesLiving Room
  • # of Stories2
  • StoriesMulti/Split

Appliances

Barbecue, Dishwasher, Microwave, Refrigerator

Additional Information

  • Date ListedJune 28th, 2025
  • Days on Market148
  • ZoningLAR3
  • HOA Fees507
  • HOA Fees Freq.Monthly

Listing Details

  • AgentAnna Sadowska
  • OfficeCrissanna Luxury Real Estate
Please provide a valid email address.

Anna Sadowska, Crissanna Luxury Real Estate.

Based on information from California Regional Multiple Listing Service, Inc. as of November 23rd, 2025 at 2:56pm PST. This information is for your personal, non-commercial use and may not be used for any purpose other than to identify prospective properties you may be interested in purchasing. Display of MLS data is usually deemed reliable but is NOT guaranteed accurate by the MLS. Buyers are responsible for verifying the accuracy of all information and should investigate the data themselves or retain appropriate professionals. Information from sources other than the Listing Agent may have been included in the MLS data. Unless otherwise specified in writing, Broker/Agent has not and will not verify any information obtained from other sources. The Broker/Agent providing the information contained herein may or may not have been the Listing and/or Selling Agent.