Connect

Find us on...

Dashboard

Login using...

Shawn Bengtson

Office Broker - DRE 01236964

  • Office 760-805-7199
Questions?

8512 Whitworth Drive, Los Angeles – $2,885,000

  • $2.9M Price
  • .14 Acres
  • 89 DOM
  • $2.9M Price
  • .14 Acres
  • 89 DOM

8512 Whitworth Drive

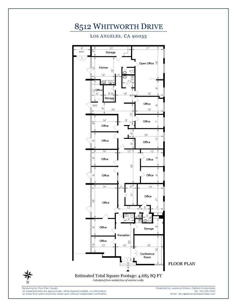
Discover an exceptional commercial space in a stunning, light-filled single-story building. This versatile property features 14 offices, including 3 executive offices with private entrances. One executive office is double-sized and includes an attached assistant office. The east side boasts 8 offices with floor-to-ceiling windows overlooking a private landscaped courtyard and access to the private entrances. The space includes a spacious 15-foot conference room and a 25x15 foot flex space, perfect for meetings and events. Every office is equipped with windows, and the building offers 6 storage/supply closets, a formal reception area, a central lobby, and a separate rear entry, ensuring maximum flexibility. Four half baths, two at each end of the building, complete the layout. With new paint, flooring, and exposing the 12-foot ceilings, this space will truly shine. The layout can be easily reconfigured to accommodate up to 4 private units with their own entrances and bathrooms. While there is no dedicated parking, ample street parking is available, and nearby covered parking may be available for rent. This property is unmatched at its price point, especially in this area. Located diagonally from the Marsel Retail Plaza at La Cienega & Whitworth and the proposed 1050 La Cienega Tower with 500+ retail & residential units, you can set up shop for a fraction of future costs. Exceptional Location, Great Price!

Essential Information

  • MLS® #25572169
  • Price$2,885,000
  • Bathrooms0.00
  • Acres0.14
  • Year Built1956
  • TypeCommercial Sale
  • StatusActive

Community Information

  • Address8512 Whitworth Drive
  • CityLos Angeles
  • CountyLos Angeles
  • Zip Code90035

Area

C19 - Beverly Center-Miracle Mile

Interior

  • # of Stories1

Exterior

  • ExteriorGlass
  • Lot DescriptionRectangular Lot
  • RoofFlat
  • ConstructionGlass

Additional Information

  • Date ListedJuly 30th, 2025
  • Days on Market89
  • ZoningLAC2

Listing Details

  • AgentLaurence Demers
  • OfficeDeMers & Associates
Please provide a valid email address.

Price Change History for 8512 Whitworth Drive, Los Angeles, (MLS® #25572169)

Date Details Change
Price Reduced from $3,490,000 to $2,885,000 $605,000 (17.34%)

Laurence Demers, DeMers & Associates.

Based on information from California Regional Multiple Listing Service, Inc. as of November 23rd, 2025 at 6:26am PST. This information is for your personal, non-commercial use and may not be used for any purpose other than to identify prospective properties you may be interested in purchasing. Display of MLS data is usually deemed reliable but is NOT guaranteed accurate by the MLS. Buyers are responsible for verifying the accuracy of all information and should investigate the data themselves or retain appropriate professionals. Information from sources other than the Listing Agent may have been included in the MLS data. Unless otherwise specified in writing, Broker/Agent has not and will not verify any information obtained from other sources. The Broker/Agent providing the information contained herein may or may not have been the Listing and/or Selling Agent.