Connect

Find us on...

Dashboard

Login using...

Shawn Bengtson

Office Broker - DRE 01236964

  • Office 760-805-7199
Questions?

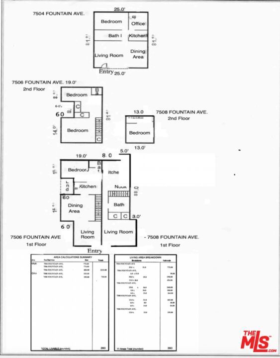
7504 Fountain Avenue, West Hollywood – $2,799,000

  • 6 Beds
  • 4 Baths
  • 3,945 Sqft
  • .16 Acres
  • 6 Beds
  • 4 Baths
  • 3,945 Sqft
  • .16 Acres

7504 Fountain Avenue

First-time on the market in 27 Years! A rare repositioning and development opportunity situated in the heart of West Hollywood. This existing triplex is comprised of a 3-bedroom, 2-bathroom unit, a 2-bedroom, 1-bathroom unit, a 1-bedroom, 1-bathroom unit and 1,000 s.f. storage, set on a 7,002 square foot lot. Delivered vacant at close of escrow, the property provides flexibility for an owner-user or investor offering the ability to renovate and lease the existing three units or pursue new development opportunities such adding 3 ADUs, a 35-unit affordable housing, or a 10-bed assisted living facility (Buyer to verify). Situated within the City of West Hollywood's Fountain Avenue Streetscape Project, the property stands to benefit from significant area enhancements designed to improve walkability, landscaping, and neighborhood character. A true value-add opportunity to acquire a vacant triplex or exceptional development site within one of Los Angeles' most dynamic communities.

Essential Information

  • MLS® #25583427
  • Price$2,799,000
  • Bedrooms6
  • Bathrooms4.00
  • Square Footage3,945
  • Acres0.16
  • Year Built1917
  • TypeResidential Income
  • StyleCottage
  • StatusActive

Community Information

  • Address7504 Fountain Avenue
  • AreaC10 - West Hollywood Vicinity
  • CityWest Hollywood
  • CountyLos Angeles
  • Zip Code90046

Amenities

  • ParkingDriveway, On Street
  • GaragesDriveway, On Street

Interior

  • HeatingCentral
  • # of Stories2
  • StoriesTwo

Additional Information

  • Date ListedNovember 6th, 2025
  • Days on Market17
  • ZoningWDR2*

Listing Details

  • AgentCorina B. Gonzales
  • OfficeGNZ Inc.
Please provide a valid email address.

Corina B. Gonzales, GNZ Inc..

Based on information from California Regional Multiple Listing Service, Inc. as of November 23rd, 2025 at 11:40am PST. This information is for your personal, non-commercial use and may not be used for any purpose other than to identify prospective properties you may be interested in purchasing. Display of MLS data is usually deemed reliable but is NOT guaranteed accurate by the MLS. Buyers are responsible for verifying the accuracy of all information and should investigate the data themselves or retain appropriate professionals. Information from sources other than the Listing Agent may have been included in the MLS data. Unless otherwise specified in writing, Broker/Agent has not and will not verify any information obtained from other sources. The Broker/Agent providing the information contained herein may or may not have been the Listing and/or Selling Agent.