Connect

Find us on...

Dashboard

Login using...

Shawn Bengtson

Office Broker - DRE 01236964

  • Office 760-805-7199
Questions?

404 Linnie Canal, Venice – $2,000,000

  • $2M Price
  • .07 Acres
  • 126 DOM
  • $2M Price
  • .07 Acres
  • 126 DOM

404 Linnie Canal

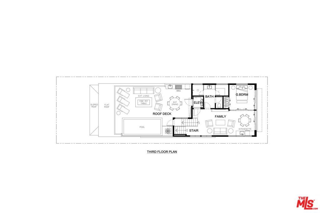
COASTAL COMMISSION APPROVAL GRANTED! 404 Linnie Canal is a special opportunity for someone looking to customize their own space on the world renowned Venice Beach Canals. Set in one of the premier areas within the Canals, the property has been issued full Coastal Commission approval and nearing RTI permits for approval for a 3,551 square foot home, plus garage and 732 square foot roof deck with a permitted pool/spa beautifully designed by noted Canal architect Austin Peters. Benefit from an expedited process: these plans/permits that will save you time and money while you focus on customizing the design to your lifestyle. New construction home sales on the Canals have soared, which allows you to design your dream home with the peace of mind that you will be sitting on equity once the project is completed. A true rare opportunity to live and become a part of the vibrant Venice Canal community where neighbors know each other and kids play outside in a peaceful beachside setting.

Essential Information

  • MLS® #25589535
  • Price$2,000,000
  • Bathrooms0.00
  • Acres0.07
  • TypeLand
  • StatusActive

Community Information

  • Address404 Linnie Canal
  • AreaC11 - Venice
  • CityVenice
  • CountyLos Angeles
  • Zip Code90291

Amenities

  • ViewCanal
  • WaterfrontCanal Front

Additional Information

  • Date ListedSeptember 8th, 2025
  • Days on Market126
  • ZoningLARW1

Listing Details

  • AgentAlex Quaid
  • OfficeThe Agency
Please provide a valid email address.

Price Change History for 404 Linnie Canal, Venice, (MLS® #25589535)

Date Details Change
Price Reduced from $2,050,000 to $2,000,000 $50,000 (2.44%)

Alex Quaid, The Agency.

Based on information from California Regional Multiple Listing Service, Inc. as of January 12th, 2026 at 6:50pm PST. This information is for your personal, non-commercial use and may not be used for any purpose other than to identify prospective properties you may be interested in purchasing. Display of MLS data is usually deemed reliable but is NOT guaranteed accurate by the MLS. Buyers are responsible for verifying the accuracy of all information and should investigate the data themselves or retain appropriate professionals. Information from sources other than the Listing Agent may have been included in the MLS data. Unless otherwise specified in writing, Broker/Agent has not and will not verify any information obtained from other sources. The Broker/Agent providing the information contained herein may or may not have been the Listing and/or Selling Agent.