Connect

Find us on...

Dashboard

Login using...

Shawn Bengtson

Office Broker - DRE 01236964

  • Office 760-805-7199
Questions?

3815 Chanson Drive, View Park – $2,438,000

  • 4 Beds
  • 5 Baths
  • 2,724 Sqft
  • .19 Acres
  • 4 Beds
  • 5 Baths
  • 2,724 Sqft
  • .19 Acres

3815 Chanson Drive

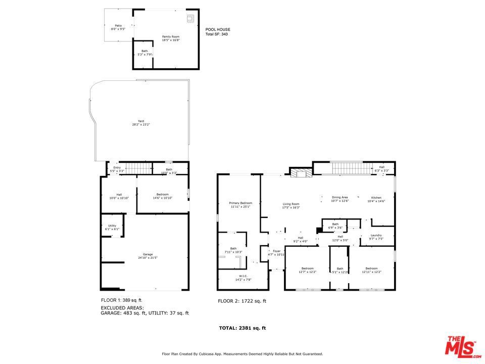
Unveiling an Unrivaled Opportunity for California Living in View Park. Redesigned with care and attention by Vein Design, and brought to life by CCS Construction, this one-of-a-kind compound blends luxury with comfort and ease.Behind its unassuming facade lies a bespoke expanse: a 4-bedroom, 4-bath main residence, an accommodating pool house, and lushly sprawling exterior grounds with beautiful and mature vegetation including a grass yard, an outdoor kitchen, numerous lounge and entertaining areas, and a sparkling pool that yes, really hosts the cutest family of ducks (and they come with the residence!). Stepping inside, natural light dances across wide-plank wood floors before an undulating plastered fireplace draws your attention to seamless sightlines that invite both serenity and style. Tailored millwork leads down the hallway toward two bedrooms with a shared Jack-and-Jill bath, each thoughtfully designed with built-in desks overlooking the street. A statement powder bath accommodates guests before the hallway culminates with a linen closet and a surprisingly spacious pantry and secluded laundry room space.An entertainer's dream, the kitchen is the heart of the home, boasting professional-grade stainless steel appliances, handcrafted cabinetry, and an ample quartzite peninsula ready for unforgettable meals and gatherings. On the lower level, an en suite bedroom with private access creates flexibility for guests, quiet office space, or an income opportunity.Your primary sanctuary boasts sun-dappled spaces and a designated flagstone patio for morning coffee or moonlit evenings. The owner's bath is bright, softly hued, and designed with ample storage, as is the adjacent walk-in closet, thoughtfully laid out for you to unpack into on your very first day.The exterior however sets this property apart - giving luxurious estate energy. The pool house delivers a kitchenette, a Malm wood-burning fireplace, and a full bath. Outdoors, life unfolds effortlessly, slide open the pool house doors to a sun-drenched deck, enjoy weekend BBQs at your outdoor kitchen and dining spaces, savor the fruits of your lemon and fig trees, watch as your family plays on the manicured grass, or dive into your retro-inspired pool. Outdoor terraces and built-in seating spaces are as welcoming as anything inside the home, completing a residence you can fully immerse yourself in. Curated, rich with unexpected details, and thoroughly executed with your lifestyle in mind, this expansive gem is ready to welcome you. Main House is 2381 sq ft, pool house is 343 sq ft per floor plan.

Essential Information

  • MLS® #25595525
  • Price$2,438,000
  • Bedrooms4
  • Bathrooms5.00
  • Full Baths1
  • Half Baths1
  • Square Footage2,724
  • Acres0.19
  • Year Built1949
  • TypeResidential
  • Sub-TypeSingle Family Residence
  • StyleTraditional
  • StatusActive

Community Information

  • Address3815 Chanson Drive
  • AreaPHHT - Park Hills Heights
  • CityView Park
  • CountyLos Angeles
  • Zip Code90043

Amenities

  • Parking Spaces2
  • ParkingDoor-Multi, Driveway, Garage
  • # of Garages2
  • GaragesDoor-Multi, Driveway, Garage
  • ViewPool
  • Has PoolYes
  • PoolIn Ground

Interior

  • InteriorWood
  • HeatingCentral
  • CoolingCentral Air
  • FireplaceYes
  • FireplacesGas, Living Room
  • # of Stories2
  • StoriesTwo

Interior Features

Separate/Formal Dining Room, Utility Room, Walk-In Closet(s)

Appliances

Dishwasher, Gas Cooktop, Disposal, Oven

Additional Information

  • Date ListedSeptember 25th, 2025
  • Days on Market67
  • ZoningLCR1*

Listing Details

  • AgentObie Nwabuzor
  • OfficePacific Playa Realty
Please provide a valid email address.

Obie Nwabuzor, Pacific Playa Realty.

Based on information from California Regional Multiple Listing Service, Inc. as of December 1st, 2025 at 7:30pm PST. This information is for your personal, non-commercial use and may not be used for any purpose other than to identify prospective properties you may be interested in purchasing. Display of MLS data is usually deemed reliable but is NOT guaranteed accurate by the MLS. Buyers are responsible for verifying the accuracy of all information and should investigate the data themselves or retain appropriate professionals. Information from sources other than the Listing Agent may have been included in the MLS data. Unless otherwise specified in writing, Broker/Agent has not and will not verify any information obtained from other sources. The Broker/Agent providing the information contained herein may or may not have been the Listing and/or Selling Agent.