Connect

Find us on...

Dashboard

Login using...

Shawn Bengtson

Office Broker - DRE 01236964

  • Office 760-805-7199
Questions?

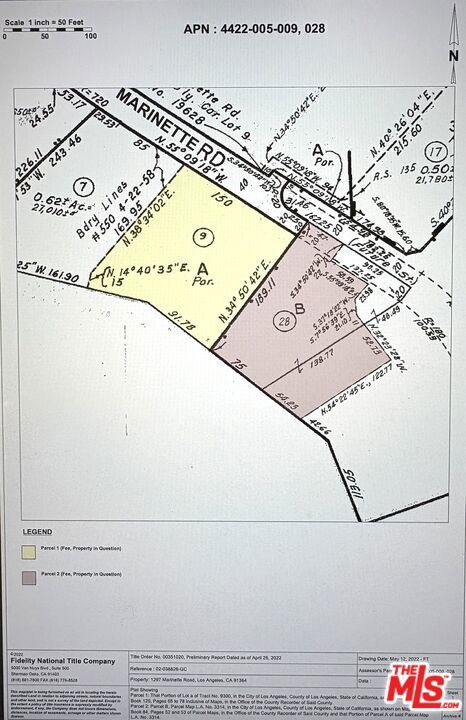
1297 Marinette Road, Pacific Palisades – $4,995,000

  • $5M Price
  • 1.17 Acres
  • 149 DOM
  • $5M Price
  • 1.17 Acres
  • 149 DOM

1297 Marinette Road

An exceptional opportunity awaits on one of the most premier and private lots near the Palisades Village. Tucked away at the end of a tranquil cul-de-sac, this expansive property offers the ultimate in privacy and potential. Comprising two lots (2 APNs) spanning over 1.1 acres, the site presents a rare opportunity to create a bespoke estate in one of Palisades most desirable neighborhoods. Whether you envision building a grand single-family residence, two distinct homes, or a multi-generational compound, this parcel offers unparalleled flexibility and scale. Set in a serene, private setting, the possibilities are endless. This is a unique opportunity to rebuild and reimagine a truly special property in the heart of the Palisades. Moments from top-tier schools, scenic hiking trails, and the shops and restaurants of the Palisades Village, yet offering the seclusion and space rarely found in such a prime location. Many of the homes on the street are still standing post fire. The previous home was 5,404 square feet (per appraisal).

Essential Information

  • MLS® #25608569
  • Price$4,995,000
  • Bathrooms0.00
  • Acres1.17
  • TypeLand
  • StatusActive

Community Information

  • Address1297 Marinette Road
  • AreaC15 - Pacific Palisades
  • CityPacific Palisades
  • CountyLos Angeles
  • Zip Code90272

Amenities

  • ViewMountain(s)

Additional Information

  • Date ListedOctober 21st, 2025
  • Days on Market149
  • ZoningLARE15

Listing Details

  • AgentJennifer Pomeroy
  • OfficeCompass
Please provide a valid email address.

Price Change History for 1297 Marinette Road, Pacific Palisades, (MLS® #25608569)

Date Details Change
Price Reduced from $5,800,000 to $4,995,000 $805,000 (13.88%)

Jennifer Pomeroy, Compass.

Based on information from California Regional Multiple Listing Service, Inc. as of March 19th, 2026 at 7:21am PDT. This information is for your personal, non-commercial use and may not be used for any purpose other than to identify prospective properties you may be interested in purchasing. Display of MLS data is usually deemed reliable but is NOT guaranteed accurate by the MLS. Buyers are responsible for verifying the accuracy of all information and should investigate the data themselves or retain appropriate professionals. Information from sources other than the Listing Agent may have been included in the MLS data. Unless otherwise specified in writing, Broker/Agent has not and will not verify any information obtained from other sources. The Broker/Agent providing the information contained herein may or may not have been the Listing and/or Selling Agent.