Connect

Find us on...

Dashboard

Login using...

Shawn Bengtson

Office Broker - DRE 01236964

  • Office 760-805-7199
Questions?

243 Taos Road, Altadena – $1,195,000

  • $1.2M Price
  • .36 Acres
  • 29 DOM
  • $1.2M Price
  • .36 Acres
  • 29 DOM

243 Taos Road

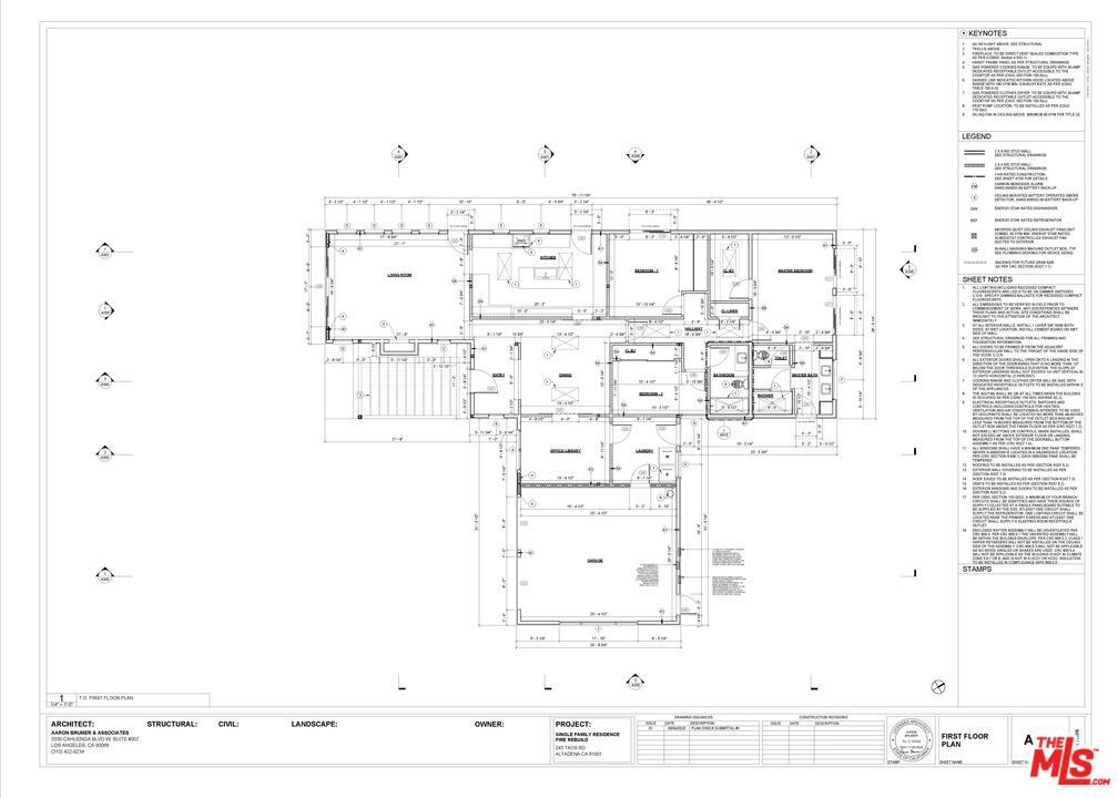
Start Building NOW on 1/3+ acre lot. This sale includes LA County approved building plans and RTI Permits for a 2,500SF luxury mid-century inspired modern home on a private road. Plan includes 3 Bed/2 Bath, Laundry Room, Office, Breakfast Nook, and fireplace. Several outdoor spaces all with commanding views overlooking Pasadena, downtown LA, and out to the Pacific Ocean towards Catalina Island. The current plans were created by the owner and Aaron Brumer Architects - these can be customized to your liking, a larger home is possible. The original structure was lost in the Jan. 2025 Eaton Fire. The house and it spectacular views was previously nominated for HGTV design of the year, appeared in TV advertisements, and served as a backdrop for many photo and video shoots. Photos available on request. The lot has been cleared, Phase 1 & 2 cleanups have been completed. The buyer should conduct due diligence regarding any additional future building requirements, including consulting with LADBS and relevant agencies for site clearance, hazardous material removal, and environmental remediation. All utilities (except Sewer) were previously accessible & buyer will want to verify restoration requirements. This is a "DRIVE-BY ONLY LISTING". Do not enter the property due to current safety protocols.

Essential Information

  • MLS® #25610211
  • Price$1,195,000
  • Bathrooms0.00
  • Acres0.36
  • TypeLand
  • StatusActive

Community Information

  • Address243 Taos Road
  • Area604 - Altadena
  • CityAltadena
  • CountyLos Angeles
  • Zip Code91001

Amenities

View

Catalina, Hills, Mountain(s), Ocean

Additional Information

  • Date ListedOctober 25th, 2025
  • Days on Market29
  • ZoningLCOR*

Listing Details

  • AgentDavid Lubell

Office

Christie's International Real Estate SoCal

Please provide a valid email address.

David Lubell, Christie's International Real Estate SoCal.

Based on information from California Regional Multiple Listing Service, Inc. as of November 27th, 2025 at 7:35pm PST. This information is for your personal, non-commercial use and may not be used for any purpose other than to identify prospective properties you may be interested in purchasing. Display of MLS data is usually deemed reliable but is NOT guaranteed accurate by the MLS. Buyers are responsible for verifying the accuracy of all information and should investigate the data themselves or retain appropriate professionals. Information from sources other than the Listing Agent may have been included in the MLS data. Unless otherwise specified in writing, Broker/Agent has not and will not verify any information obtained from other sources. The Broker/Agent providing the information contained herein may or may not have been the Listing and/or Selling Agent.