Connect

Find us on...

Dashboard

Login using...

Shawn Bengtson

Office Broker - DRE 01236964

  • Office 760-805-7199
Questions?

689 Bienveneda Avenue, Pacific Palisades – $750,000

  • $750k Price
  • .2 Acres
  • 102 DOM
  • $750k Price
  • .2 Acres
  • 102 DOM

689 Bienveneda Avenue

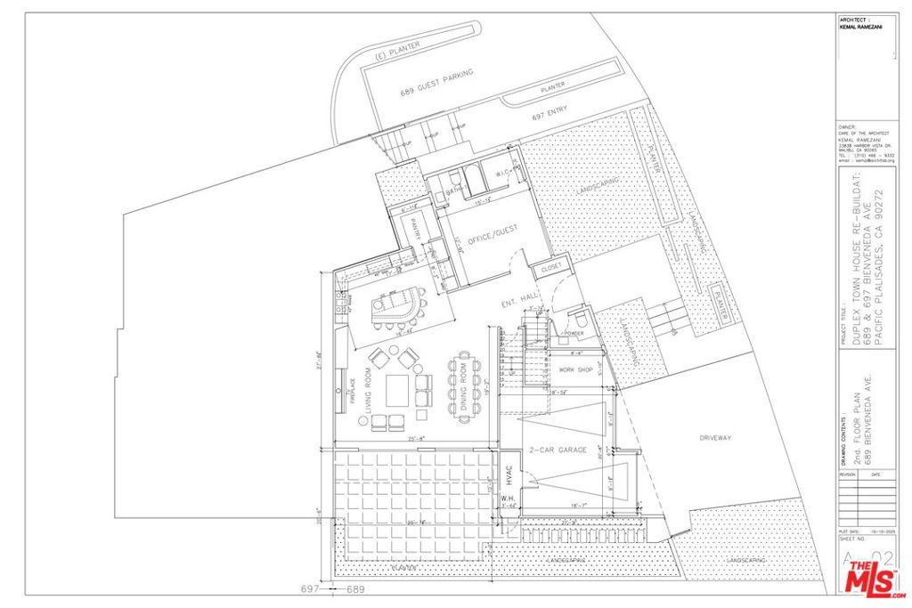
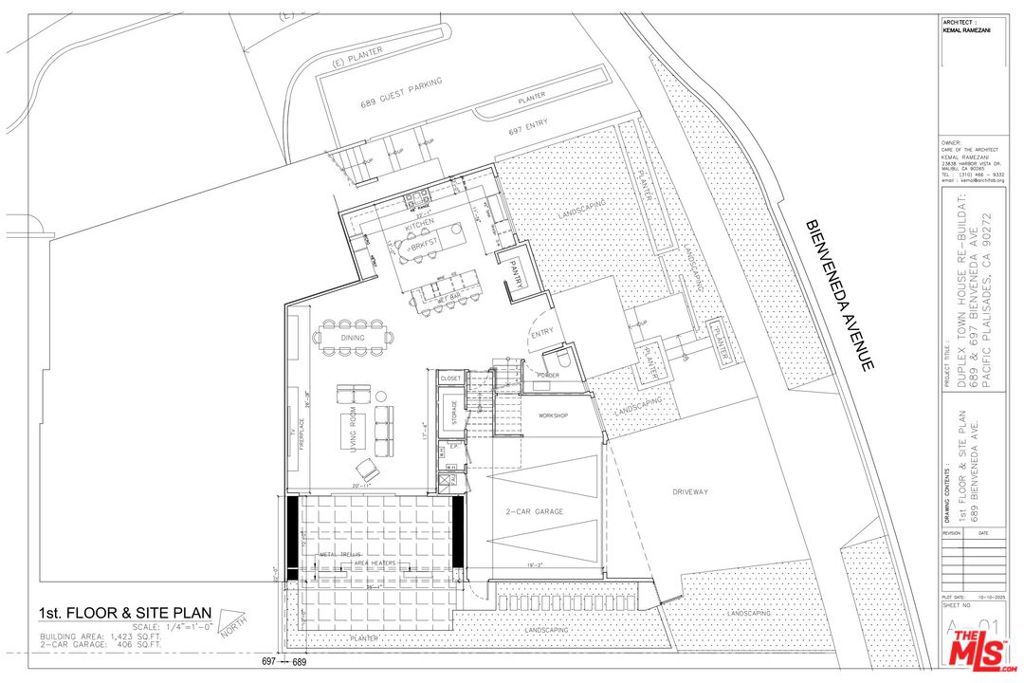
A rare opportunity to build a spacious, 3,445 SF, modern townhome in the heart of Pacific Palisades. The property comes with ready architectural plans designed by Architect Kemal Ramezani AIA, offering three design options for the buyer to choose from, and the seller will obtain final plan approval. An existing high-quality foundation, built on caissons, is already in place, offering substantial cost savings during construction. The soil test report and structural engineer's approval of the existing foundation system for rebuild will be provided to the buyer. There is no HOA; the unit is one of only two units, ensuring privacy and flexibility. The property offers a generous front and side yard, with a south-facing side yard featuring a trellis and area heaters, designed to serve as an inviting extension of the living space. Plan Options: Plan 1: Features a spacious open-concept first floor with a kitchen, wet bar, dining area, and living room.Plan 2: Includes an additional office or guest suite with an en-suite bath and walk-in closet on the first floor, while the kitchen and living areas are slightly smaller.Plan 3: Offers a comfortable living room, a smaller kitchen, and a separate family room. The 2nd floor layout is consistent across all three plans and includes three bedrooms, including a primary suite, plus a den area. All bedrooms feature en-suite bathrooms, walk-in closets, and private balconies. Located just minutes from the Palisades Village, top-rated schools, beaches, and scenic hiking trails, this property offers an exceptional opportunity to create a luxurious residence in one of Los Angeles' most sought-after coastal communities. Whether you're a developer or an end user, this project combines convenience, design flexibility, and outstanding long-term value.

Essential Information

  • MLS® #25611297
  • Price$750,000
  • Bathrooms0.00
  • Acres0.20
  • TypeLand
  • StatusActive

Community Information

  • Address689 Bienveneda Avenue
  • AreaC15 - Pacific Palisades
  • CityPacific Palisades
  • CountyLos Angeles
  • Zip Code90272

Amenities

  • ViewCity Lights

Additional Information

  • Date ListedOctober 27th, 2025
  • Days on Market102
  • ZoningLARD5

Listing Details

  • AgentMichelle Davaasambuu
  • OfficeCompass
Please provide a valid email address.

Michelle Davaasambuu, Compass.

Based on information from California Regional Multiple Listing Service, Inc. as of February 8th, 2026 at 9:11am PST. This information is for your personal, non-commercial use and may not be used for any purpose other than to identify prospective properties you may be interested in purchasing. Display of MLS data is usually deemed reliable but is NOT guaranteed accurate by the MLS. Buyers are responsible for verifying the accuracy of all information and should investigate the data themselves or retain appropriate professionals. Information from sources other than the Listing Agent may have been included in the MLS data. Unless otherwise specified in writing, Broker/Agent has not and will not verify any information obtained from other sources. The Broker/Agent providing the information contained herein may or may not have been the Listing and/or Selling Agent.