Connect

Find us on...

Dashboard

Login using...

Shawn Bengtson

Office Broker - DRE 01236964

  • Office 760-805-7199
Questions?

4266 Grand View Boulevard, Los Angeles – $2,985,000

  • 5 Beds
  • 5 Baths
  • 3,000 Sqft
  • .13 Acres
  • 5 Beds
  • 5 Baths
  • 3,000 Sqft
  • .13 Acres

4266 Grand View Boulevard

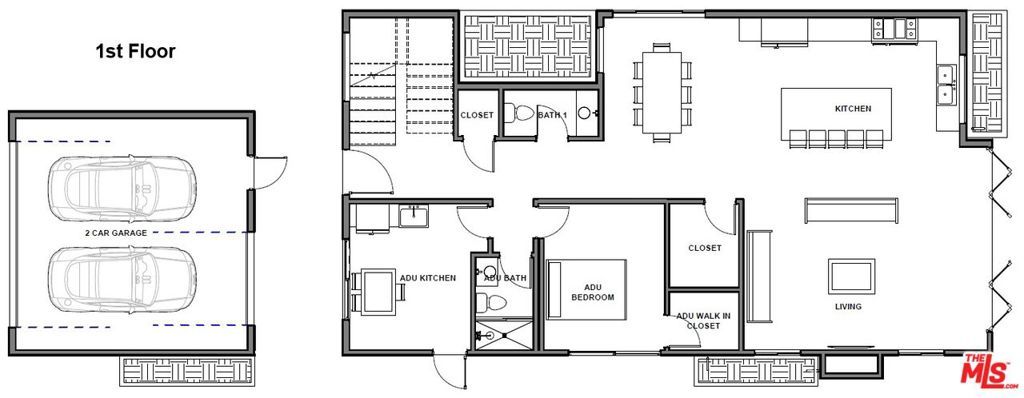
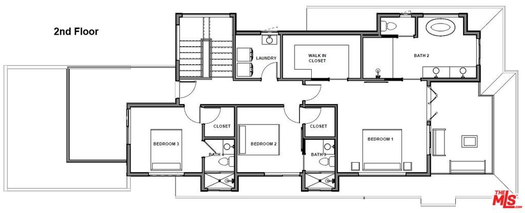
Stunning New Construction 4-Bedroom plus Office (5th Bedroom) Home, currently under construction in Mar Vista! Scheduled for completion December 2025. This luxurious, high-end residence blends contemporary design with the comfort and sophistication of modern living. Situated on a spacious lot, this home boasts an open-concept layout with expansive windows, allowing natural light to flood every corner of the space. The chef's kitchen features top-of-the-line appliances, sleek cabinetry, and a large island perfect for entertaining. The spacious living and dining areas flow seamlessly, leading to a private backyard oasis. The flexible design offers a first floor suite that can be closed and used as a separate apartment with its own kitchenette and private entrance, or opened to be used as a private office and private guest suite. With three bedrooms & 3 bathrooms upstairs including an incredible primary suite with a retreat-like atmosphere with a spa-inspired bathroom, custom walk-in closets, and private balcony. Each additional bedroom is generously sized with high-end finishes and ample closet space and their own en-suite bathrooms. The detached garage would make a great gym or art studio. With impeccable attention to detail, this Mar Vista gem offers the perfect blend of comfort, style and sophistication.

Essential Information

  • MLS® #25612835
  • Price$2,985,000
  • Bedrooms5
  • Bathrooms5.00
  • Full Baths4
  • Half Baths1
  • Square Footage3,000
  • Acres0.13
  • Year Built2025
  • TypeResidential
  • Sub-TypeSingle Family Residence
  • StyleModern
  • StatusActive

Community Information

  • Address4266 Grand View Boulevard
  • AreaC13 - Palms - Mar Vista
  • CityLos Angeles
  • CountyLos Angeles
  • Zip Code90066

Amenities

  • Parking Spaces2
  • ParkingDoor-Multi, Driveway, Garage
  • # of Garages2
  • GaragesDoor-Multi, Driveway, Garage
  • PoolNone

Interior

  • InteriorWood
  • Interior FeaturesWalk-In Closet(s)
  • HeatingCentral
  • CoolingCentral Air
  • FireplaceYes
  • FireplacesGas, Living Room
  • # of Stories2
  • StoriesTwo

Appliances

Dishwasher, Disposal, Microwave, Refrigerator, Dryer, Washer

Exterior

  • Lot DescriptionYard
  • WindowsDouble Pane Windows

School Information

  • DistrictLos Angeles Unified

Additional Information

  • Date ListedNovember 3rd, 2025
  • Days on Market20
  • ZoningLAR1

Listing Details

  • AgentTodd Miller
  • OfficeKeller Williams Los Angeles
Please provide a valid email address.

Todd Miller, Keller Williams Los Angeles.

Based on information from California Regional Multiple Listing Service, Inc. as of November 23rd, 2025 at 12:35am PST. This information is for your personal, non-commercial use and may not be used for any purpose other than to identify prospective properties you may be interested in purchasing. Display of MLS data is usually deemed reliable but is NOT guaranteed accurate by the MLS. Buyers are responsible for verifying the accuracy of all information and should investigate the data themselves or retain appropriate professionals. Information from sources other than the Listing Agent may have been included in the MLS data. Unless otherwise specified in writing, Broker/Agent has not and will not verify any information obtained from other sources. The Broker/Agent providing the information contained herein may or may not have been the Listing and/or Selling Agent.