Connect

Find us on...

Dashboard

Login using...

Shawn Bengtson

Office Broker - DRE 01236964

  • Office 760-805-7199
Questions?

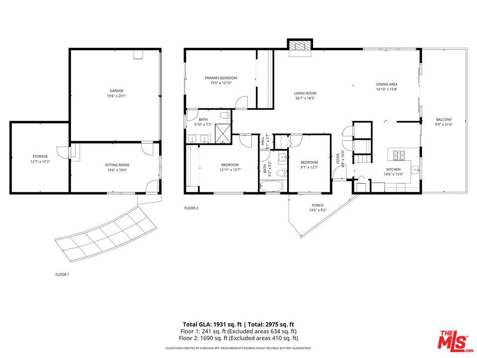
21434 Salamanca Avenue, Woodland Hills – $1,249,000

  • 3 Beds
  • 2 Baths
  • 1,928 Sqft
  • .13 Acres
  • 3 Beds
  • 2 Baths
  • 1,928 Sqft
  • .13 Acres

21434 Salamanca Avenue

Welcome to 21434 Salamanca, set above the street and surrounded by mature landscaping, this modern mid century updated home delivers light, privacy, and style in a highly desired Woodland Hills south of the boulevard location. The main living area feels bright and open with a classic painted brick fireplace and large sliders that create a smooth indoor outdoor flow.The front deck offers beautiful mountain views and is the perfect spot to unwind or entertain. The updated kitchen features a breakfast bar, custom cabinetry and quartz counters. Two well sized bedrooms and a full bathroom are located off the main living space. The primary suite includes an en suite bath, a generous closet, and access to a private backyard.There is also a spacious bonus room with its own entrance next to the garage. It makes an ideal home office, gym, or studio, and there are existing plans showing how it could be converted into an ADU for additional value.Located in one of Woodland Hills most sought after pockets with quick access to top rated schools, great dining, shopping, and outdoor recreation. This is an incredible opportunity to own a stylish home with flexible use options and room to grow.

Essential Information

  • MLS® #25614109
  • Price$1,249,000
  • Bedrooms3
  • Bathrooms2.00
  • Full Baths2
  • Square Footage1,928
  • Acres0.13
  • Year Built1962
  • TypeResidential
  • Sub-TypeSingle Family Residence
  • StyleMid-Century Modern
  • StatusActive Under Contract

Community Information

  • Address21434 Salamanca Avenue
  • AreaWHLL - Woodland Hills
  • CityWoodland Hills
  • CountyLos Angeles
  • Zip Code91364

Amenities

  • Parking Spaces2
  • ParkingGarage, Door-Multi
  • # of Garages2
  • GaragesGarage, Door-Multi
  • ViewCity Lights, Hills, Valley
  • PoolNone

Interior

  • InteriorLaminate, Wood
  • HeatingCentral
  • CoolingCentral Air
  • FireplaceYes
  • FireplacesDecorative
  • # of Stories2
  • StoriesTwo

Appliances

Refrigerator, Dryer, Washer, Dishwasher

Additional Information

  • Date ListedNovember 4th, 2025
  • Days on Market27
  • ZoningLAR1

Listing Details

  • AgentLisa Grayson
  • OfficeEquity Union
Please provide a valid email address.

Price Change History for 21434 Salamanca Avenue, Woodland Hills, (MLS® #25614109)

Date Details Change
Status Changed from Active to Active Under Contract

Lisa Grayson, Equity Union.

Based on information from California Regional Multiple Listing Service, Inc. as of December 1st, 2025 at 1:26am PST. This information is for your personal, non-commercial use and may not be used for any purpose other than to identify prospective properties you may be interested in purchasing. Display of MLS data is usually deemed reliable but is NOT guaranteed accurate by the MLS. Buyers are responsible for verifying the accuracy of all information and should investigate the data themselves or retain appropriate professionals. Information from sources other than the Listing Agent may have been included in the MLS data. Unless otherwise specified in writing, Broker/Agent has not and will not verify any information obtained from other sources. The Broker/Agent providing the information contained herein may or may not have been the Listing and/or Selling Agent.