Connect

Find us on...

Dashboard

Login using...

Shawn Bengtson

Office Broker - DRE 01236964

  • Office 760-805-7199
Questions?

1021 N Crescent Heights Boulevard # 205, West Hollywood – $599,000

  • 2 Beds
  • 2 Baths
  • 992 Sqft
  • .28 Acres
  • 2 Beds
  • 2 Baths
  • 992 Sqft
  • .28 Acres

1021 N Crescent Heights Boulevard # 205

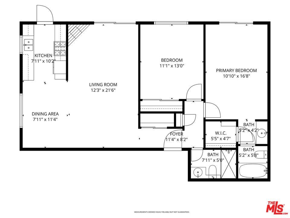
This 2BR/2BA condo is the best bargain in West Hollywood. Located on the second floor at the back of an intimate 21-unit building, this corner condo is bathed in natural light from west and south facing windows. Enjoy serene sunsets overlooking a rooftop view to the Hollywood Hills from this unit's big balconies that have sliding glass doors from the living room and the primary bedroom. This home is an amazing opportunity to channel your HGTV heroes! The galley kitchen, with its gas range/oven, could be a chef's delight with some loving renovations. The HOA allows installation of hardwood floors throughout to replace the carpeting. The two bathrooms are a blank canvas awaiting a creative owner to remodel with designer details. The primary bedroom has a walk-in closet and a spacious en-suite bathroom. Enjoy year-round climate-controlled comfort with central HVAC. In the building's securely gated garage, two side-by-side parking spaces and large storage closets are included in this sale. This pet-friendly building features succulent landscaping, a high-tech intercom system, community laundry rooms on each floor and a private pool area, all for a reasonable HOA fee that includes cable TV and internet. This coveted West Hollywood location is close to numerous restaurants, fitness studios, shopping and nightlife on Santa Monica Blvd. Don't delay; this home is the one you've been waiting for.

Essential Information

  • MLS® #25615575
  • Price$599,000
  • Bedrooms2
  • Bathrooms2.00
  • Full Baths2
  • Square Footage992
  • Acres0.28
  • Year Built1974
  • TypeResidential
  • Sub-TypeCondominium
  • StyleContemporary
  • StatusActive

Community Information

  • AreaC10 - West Hollywood Vicinity
  • CityWest Hollywood
  • CountyLos Angeles
  • Zip Code90046

Address

1021 N Crescent Heights Boulevard # 205

Amenities

  • AmenitiesPool
  • Parking Spaces2
  • ParkingSide By Side
  • # of Garages2
  • GaragesSide By Side
  • ViewCity Lights, Hills
  • Has PoolYes
  • PoolCommunity, Association

Interior

  • InteriorCarpet, Tile
  • Interior FeaturesWalk-In Closet(s)
  • AppliancesDishwasher, Refrigerator
  • HeatingCentral
  • CoolingCentral Air
  • FireplaceYes
  • FireplacesDecorative
  • StoriesOne

Additional Information

  • Date ListedNovember 6th, 2025
  • Days on Market25
  • ZoningWDR3A*
  • HOA Fees710
  • HOA Fees Freq.Monthly

Listing Details

  • AgentJason Woodruff

Office

Keller Williams Hollywood Hills

Please provide a valid email address.

Jason Woodruff, Keller Williams Hollywood Hills.

Based on information from California Regional Multiple Listing Service, Inc. as of December 1st, 2025 at 2:20pm PST. This information is for your personal, non-commercial use and may not be used for any purpose other than to identify prospective properties you may be interested in purchasing. Display of MLS data is usually deemed reliable but is NOT guaranteed accurate by the MLS. Buyers are responsible for verifying the accuracy of all information and should investigate the data themselves or retain appropriate professionals. Information from sources other than the Listing Agent may have been included in the MLS data. Unless otherwise specified in writing, Broker/Agent has not and will not verify any information obtained from other sources. The Broker/Agent providing the information contained herein may or may not have been the Listing and/or Selling Agent.