Connect

Find us on...

Dashboard

Login using...

Shawn Bengtson

Office Broker - DRE 01236964

  • Office 760-805-7199
Questions?

9730 Wilshire Boulevard # 202, Beverly Hills – $3,500

  • $3.5k Price
  • 133 DOM
  • $3.5k Price
  • 133 DOM

9730 Wilshire Boulevard # 202

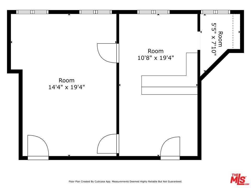
9730 Wilshire This is the Last Suite Available in this Building Video Available by Request - , 2 Private Entrances Full Gross Lease Medical/Office Move in Ready -Look and Lease Special 3 Months Free on a 5-year lease if you & sign a lease in 7 days. 2nd Floor- Suite 202- 700 Sq Ft $3500 per Month. Whether you're launching a new venture or expanding your current operations, this suite delivers functionality and comfort in a professional setting. Tranquil Courtyard View overlooking sweeping trees and plush landscaping. The space is enhanced by natural lighting from well-placed windows This suite offers a thoughtfully designed layout featuring three versatile rooms. New Paint, New AC Units, New Lighting Fixtures, New Window Treatments, New Flooring. This space can be reconfigured based on your needs and use.Room 1 As it has a reception area with a desk and a lobby and a storage room/ small office off this room. Room 2 As is it is an open floor plan with plumbing in place. See Floor Plan Restrooms- 4 on each conner of each floor Elevator and Chair LiftClean Building- Cleaning is done 5 days per week and the building is spotless.Located in an Iconic Beverly Hills Historical Building at the corner of Wilshire and Linden, this building has a Pharmacy inside which is a great convenience for your clients as well as your staff. If you need a prescription filled or just a drink, incidentals or ice cream bar they have what you need. Surrounded by iconic landmarks such as Rodeo Drive Walk of Style, Beverly Wilshire Hotel, and Beverly Gardens Park, it's a prime location in the heart of luxury. Ready for immediate move-in. Wilshire/ Linden Tranquil Courtyard Tranquil overlooking sweeping trees and plush landscaping. This is in the middle of this building great for a reprieve, meetings, lunch or a networking event. Guisado's Mexican Restaurant This is one of Beverly Hills most popular Mexican Restaurant's and only steps away from your suite in the back of the building adjacent to the valet. They have breakfast, lunch and dinner and many great menu items including refreshing drinks. About Parking Valet parking for tenants is handled through Hodes Parking rate are approximately $185 per month. There is short term, long term and metered parking available through Hodes parking a 3rd party company. Call for more details Teena Anderson 310 499 3765.Lease Terms 5 -10 year lease options.

Essential Information

  • MLS® #25620289
  • Price$3,500
  • Bathrooms0.00
  • Acres0.00
  • Year Built1942
  • TypeCommercial Lease
  • StatusActive

Community Information

  • Address9730 Wilshire Boulevard # 202
  • AreaC01 - Beverly Hills
  • CityBeverly Hills
  • CountyLos Angeles
  • Zip Code90212

Interior

  • # of Stories2

Exterior

  • ExteriorBrick
  • Lot DescriptionCorner Lot
  • ConstructionBrick

Additional Information

  • Date ListedNovember 18th, 2025
  • Days on Market133

Listing Details

  • AgentTeena Anderson

Office

Beverly Hills Brokers & Associates

Please provide a valid email address.

Teena Anderson, Beverly Hills Brokers & Associates.

Based on information from California Regional Multiple Listing Service, Inc. as of March 31st, 2026 at 11:21am PDT. This information is for your personal, non-commercial use and may not be used for any purpose other than to identify prospective properties you may be interested in purchasing. Display of MLS data is usually deemed reliable but is NOT guaranteed accurate by the MLS. Buyers are responsible for verifying the accuracy of all information and should investigate the data themselves or retain appropriate professionals. Information from sources other than the Listing Agent may have been included in the MLS data. Unless otherwise specified in writing, Broker/Agent has not and will not verify any information obtained from other sources. The Broker/Agent providing the information contained herein may or may not have been the Listing and/or Selling Agent.