Connect

Find us on...

Dashboard

Login using...

Shawn Bengtson

Office Broker - DRE 01236964

  • Office 760-805-7199
Questions?

3110 N Eva Terrace, Los Angeles – $149,000

  • $149k Price
  • .2 Acres
  • 123 DOM
  • $149k Price
  • .2 Acres
  • 123 DOM

3110 N Eva Terrace

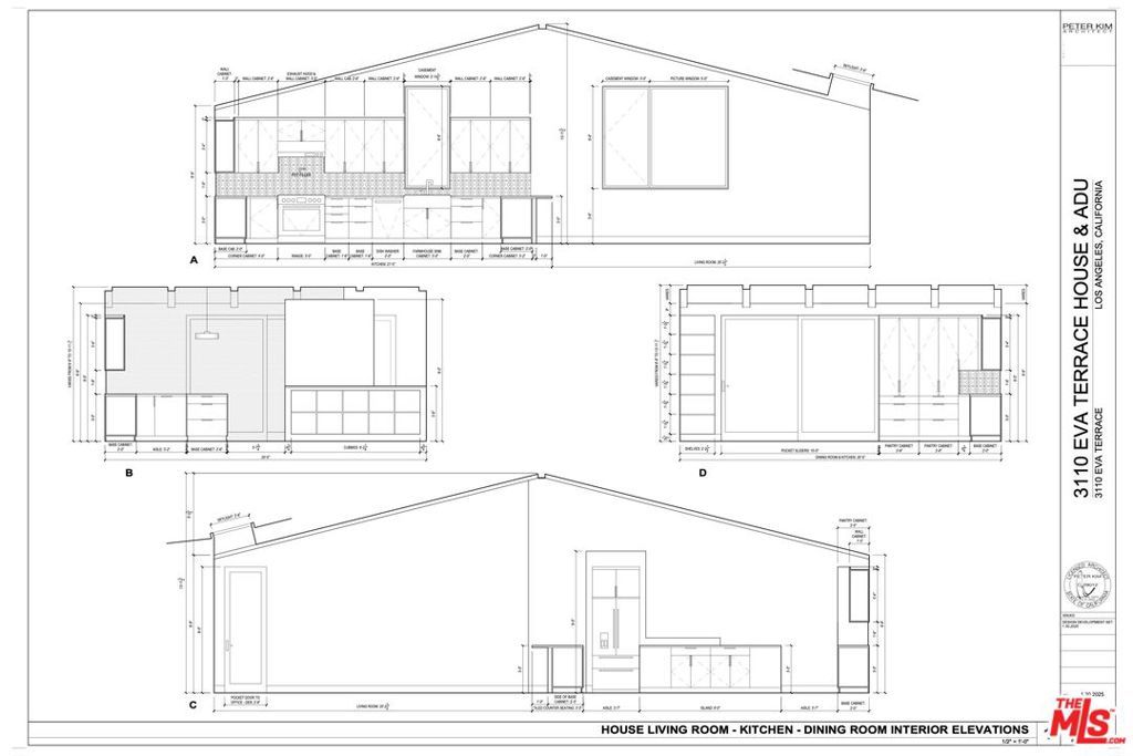
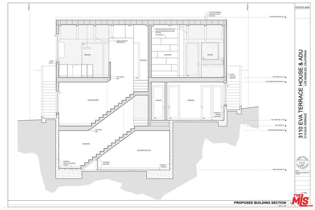
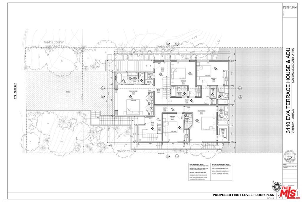
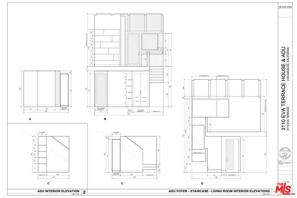
APN 5209-003-009-- Discover an incredible opportunity to build in the heart of Lincoln Heights! This upslope vacant lot is appx 8,773 SF, zoned R1and offers gorgeous city & DTLA views along with a rare sense of privacy perched at a quiet cul-de-sac. The seller has thoughtfully designed plans for a stunning 3BR+den/office, 3.5BA home spanning appx 2,267 SF, complete with a 2-car garage. Additionally, the plans include an attached ADU featuring 2BR/2.5BA appx 1,358 SF of living space with a rear patio-- perfect for rental income or multi-generational living. Plans are NOT in plan check and to be sold as-is. Centrally located in a prime location near shops, restaurants and just a short drive to DTLA. Don't miss this fantastic investment or development opportunity in one of LA's most vibrant neighborhoods! Neighboring lot with plans also for sale (MLS# 25496739).

Essential Information

  • MLS® #25621413
  • Price$149,000
  • Bathrooms0.00
  • Acres0.20
  • TypeLand
  • StatusActive

Community Information

  • Address3110 N Eva Terrace
  • Area677 - Lincoln Hts
  • CityLos Angeles
  • CountyLos Angeles
  • Zip Code90031

Amenities

  • ViewCity Lights, Hills

Exterior

  • Lot DescriptionSloped Up

Additional Information

  • Date ListedDecember 1st, 2025
  • Days on Market123
  • ZoningLAR1

Listing Details

  • AgentShawn S. Kormondy
  • OfficeKeller Williams Beverly Hills
Please provide a valid email address.

Price Change History for 3110 N Eva Terrace, Los Angeles, (MLS® #25621413)

Date Details Change
Price Reduced from $165,000 to $149,000 $16,000 (9.70%)

Shawn S. Kormondy, Keller Williams Beverly Hills.

Based on information from California Regional Multiple Listing Service, Inc. as of April 3rd, 2026 at 6:50pm PDT. This information is for your personal, non-commercial use and may not be used for any purpose other than to identify prospective properties you may be interested in purchasing. Display of MLS data is usually deemed reliable but is NOT guaranteed accurate by the MLS. Buyers are responsible for verifying the accuracy of all information and should investigate the data themselves or retain appropriate professionals. Information from sources other than the Listing Agent may have been included in the MLS data. Unless otherwise specified in writing, Broker/Agent has not and will not verify any information obtained from other sources. The Broker/Agent providing the information contained herein may or may not have been the Listing and/or Selling Agent.