Connect

Find us on...

Dashboard

Login using...

Shawn Bengtson

Office Broker - DRE 01236964

  • Office 760-805-7199
Questions?

656 Huntley Drive # 102, West Hollywood – $2,420,000

  • 3 Beds
  • 3 Baths
  • 1,862 Sqft
  • .13 Acres
  • 3 Beds
  • 3 Baths
  • 1,862 Sqft
  • .13 Acres

656 Huntley Drive # 102

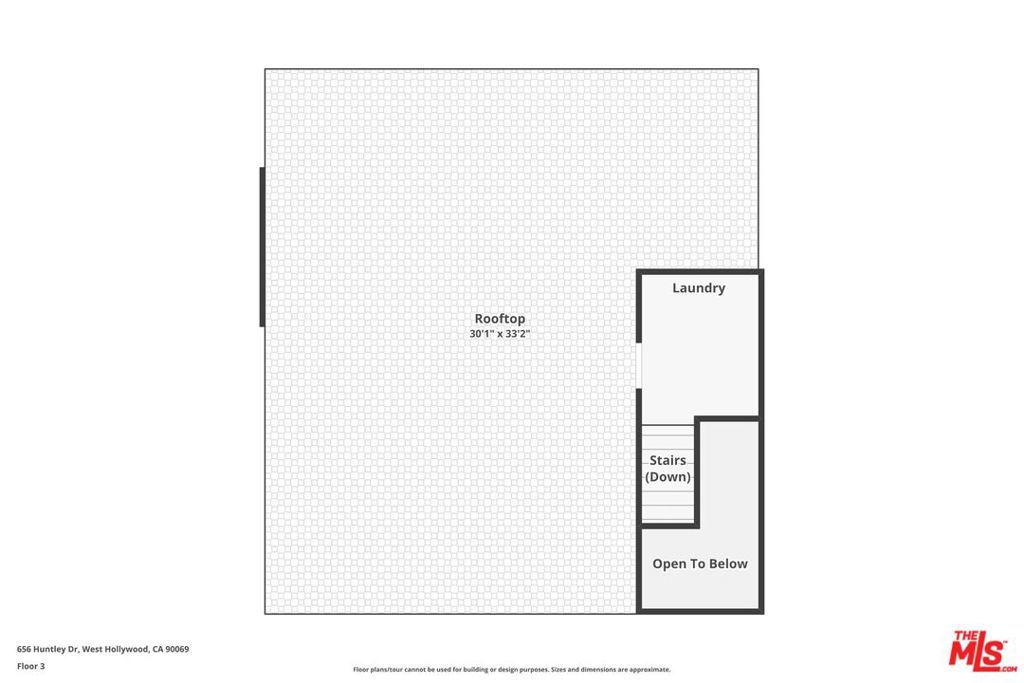
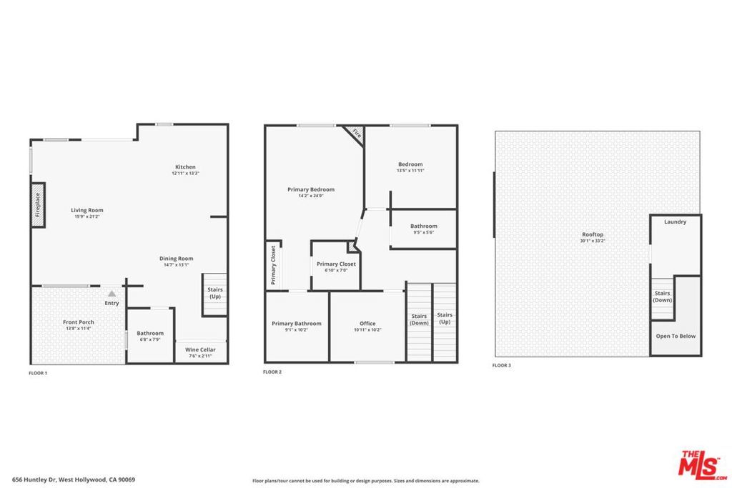
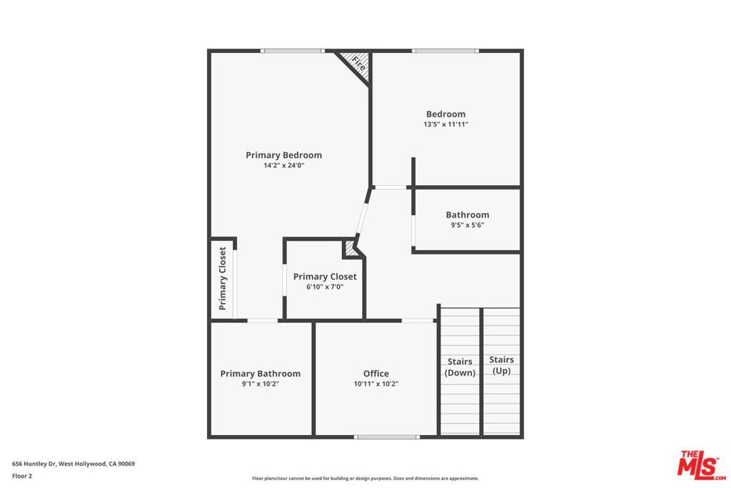
Introducing a NEWLY CONSTRUCTED contemporary/modern townhouse (2025), ideally positioned on one of West Hollywood's most sought-after streets. This exceptional residence embodies a refined blend of timeless architectural design, elevated finishes, and modern luxury living, offering approximately 1,862 sq ft of thoughtfully curated living space. This private, gated home features 3 spacious bedrooms and 2.5 impeccably designed bathrooms. A dramatic foyer opens to a sprawling, light-filled open-concept floor plan designed to maximize natural light and volume. Soaring ceilings and expansive picture windows define the main living areas, where formal living and dining spaces are enhanced by sophisticated architectural details, ideal for both intimate gatherings and grand-scale entertaining with a wine closet, fireplace. At the heart of the home lies a state-of-the-art chef's kitchen, showcasing custom cabinetry, a sleek waterfall-edge island, premium appliances, and designer fixtures that deliver both culinary excellence and striking visual appeal. The second level hosts three beautifully appointed bedrooms and two luxurious bathrooms, each finished with bespoke materials. The primary suite serves as a true sanctuary, featuring dual vanities, an oversized walk-in shower, and a custom dressing room/closet with high-end built-ins and a fireplace. The rooftop deck elevates outdoor living with city views, creating the perfect backdrop for al fresco dining, morning coffee, or evening relaxation. Additional highlights include designer lighting, two side-by-side parking spaces in a gated garage with an EV charger, large dedicated storage, an in-unit laundry area, and paid solar panels. This turnkey modern masterpiece offers sophistication, comfort, and privacy-just moments from the finest shopping, dining, and amenities West Hollywood has to offer. Monthly HOA dues cover water and gardening. A truly exceptional offering in one of the city's premier locations. AN ABSOLUTE MUST-SEE.

Essential Information

  • MLS® #25622481
  • Price$2,420,000
  • Bedrooms3
  • Bathrooms3.00
  • Full Baths2
  • Half Baths1
  • Square Footage1,862
  • Acres0.13
  • Year Built2025
  • TypeResidential
  • Sub-TypeCondominium
  • StyleModern
  • StatusActive

Community Information

  • Address656 Huntley Drive # 102
  • AreaC10 - West Hollywood Vicinity
  • CityWest Hollywood
  • CountyLos Angeles
  • Zip Code90069

Amenities

  • Parking Spaces2
  • ViewCity Lights
  • PoolNone

Parking

Door-Multi, Garage, Community Structure, Gated, Side By Side

Garages

Door-Multi, Garage, Community Structure, Gated, Side By Side

Interior

  • InteriorWood
  • HeatingCentral
  • CoolingCentral Air
  • FireplaceYes
  • FireplacesFamily Room
  • StoriesTwo

Interior Features

Breakfast Bar, Separate/Formal Dining Room, Walk-In Closet(s), Wine Cellar

Appliances

Dishwasher, Disposal, Gas Oven, Microwave, Refrigerator, Dryer, Washer, Range

Additional Information

  • Date ListedNovember 27th, 2025
  • Days on Market4
  • ZoningLCR4*
  • HOA Fees750
  • HOA Fees Freq.Monthly

Listing Details

  • AgentLily Laadan Vosough
  • OfficeColdwell Banker Realty
Please provide a valid email address.

Lily Laadan Vosough, Coldwell Banker Realty.

Based on information from California Regional Multiple Listing Service, Inc. as of December 1st, 2025 at 3:30pm PST. This information is for your personal, non-commercial use and may not be used for any purpose other than to identify prospective properties you may be interested in purchasing. Display of MLS data is usually deemed reliable but is NOT guaranteed accurate by the MLS. Buyers are responsible for verifying the accuracy of all information and should investigate the data themselves or retain appropriate professionals. Information from sources other than the Listing Agent may have been included in the MLS data. Unless otherwise specified in writing, Broker/Agent has not and will not verify any information obtained from other sources. The Broker/Agent providing the information contained herein may or may not have been the Listing and/or Selling Agent.