Connect

Find us on...

Dashboard

Login using...

Shawn Bengtson

Office Broker - DRE 01236964

  • Office 760-805-7199
Questions?

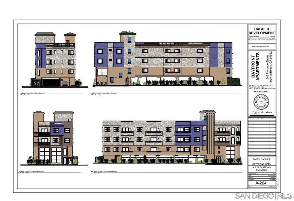
645 Florence St, Imperial Beach – $1,399,000

  • 2 Beds
  • 1 Bath
  • 859 Sqft
  • .17 Acres
  • 2 Beds
  • 1 Bath
  • 859 Sqft
  • .17 Acres

645 Florence St

Prime development opportunity! This rare coastal asset is a shovel-ready mixed-use development opportunity with fully approved building and grading plans for a 10-unit apartment building plus 1 ground-floor commercial space in the core of Imperial Beach. The approved design maximizes density and unit efficiency while capitalizing on potential future ocean and Downtown San Diego skyline views. The project is ideally positioned to attract long-term tenants and commercial users due to its proximity to the beach, major employment centers, retail corridors, and regional transit. The unit mix and modern design provide strong rent growth potential and favorable operating efficiencies. With entitlements secured, developers potentially benefit from a shortened construction timeline, reduced entitlement risk, and immediate vertical development potential. This asset offers multiple exit strategies, including long-term hold for stabilized cash flow, refinance upon lease-up, or sale as a newly constructed coastal multifamily investment in a supply-constrained market. This is a turnkey opportunity to develop a premium mixed-use project in one of Southern California's fastest growing coastal communities. Prime development opportunity! This rare coastal asset is a shovel-ready mixed-use development opportunity with fully approved building and grading plans for a 10-unit apartment building plus 1 ground-floor commercial space in the core of Imperial Beach. The approved design maximizes density and unit efficiency while capitalizing on potential future ocean and Downtown San Diego skyline views. The project is ideally positioned to attract long-term tenants and commercial users due to its proximity to the beach, major employment centers, retail corridors, and regional transit. The unit mix and modern design provide strong rent growth potential and favorable operating efficiencies. With entitlements secured, developers potentially benefit from a shortened construction timeline, reduced entitlement risk, and immediate vertical development potential. This asset offers multiple exit strategies, including long-term hold for stabilized cash flow, refinance upon lease-up, or sale as a newly constructed coastal multifamily investment in a supply-constrained market. This is a turnkey opportunity to develop a premium mixed-use project in one of Southern California's fastest growing coastal communities.

Essential Information

  • MLS® #260001554SD
  • Price$1,399,000
  • Bedrooms2
  • Bathrooms1.00
  • Full Baths1
  • Square Footage859
  • Acres0.17
  • Year Built1949
  • TypeResidential
  • Sub-TypeSingle Family Residence
  • StatusActive

Community Information

  • Address645 Florence St
  • Area91932 - Imperial Beach
  • SubdivisionImperial Beach
  • CityImperial Beach
  • CountySan Diego
  • Zip Code91932

Amenities

  • Parking Spaces2
  • ParkingDriveway, Other
  • GaragesDriveway, Other
  • PoolNone

Interior

  • Interior FeaturesSee Remarks
  • HeatingSee Remarks
  • CoolingSee Remarks
  • # of Stories1
  • StoriesOne

Exterior

  • RoofSee Remarks

Additional Information

  • Date ListedJanuary 21st, 2026
  • Days on Market74
  • ZoningR-4:MULTIP

Listing Details

  • AgentAshraf Salim
  • OfficeSDpremier
Please provide a valid email address.

Price Change History for 645 Florence St, Imperial Beach, (MLS® #260001554SD)

Date Details Change
Price Reduced from $1,699,000 to $1,399,000 $300,000 (17.66%)
Price Reduced from $1,800,000 to $1,699,000 $101,000 (5.61%)

Ashraf Salim, SDpremier.

Based on information from California Regional Multiple Listing Service, Inc. as of April 5th, 2026 at 7:51pm PDT. This information is for your personal, non-commercial use and may not be used for any purpose other than to identify prospective properties you may be interested in purchasing. Display of MLS data is usually deemed reliable but is NOT guaranteed accurate by the MLS. Buyers are responsible for verifying the accuracy of all information and should investigate the data themselves or retain appropriate professionals. Information from sources other than the Listing Agent may have been included in the MLS data. Unless otherwise specified in writing, Broker/Agent has not and will not verify any information obtained from other sources. The Broker/Agent providing the information contained herein may or may not have been the Listing and/or Selling Agent.