Connect

Find us on...

Dashboard

Login using...

Shawn Bengtson

Office Broker - DRE 01236964

  • Office 760-805-7199
Questions?

N/A, San Diego – $1,199,900

  • $1.2M Price
  • .33 Acres
  • $1.2M Price
  • .33 Acres

(Undisclosed Address)

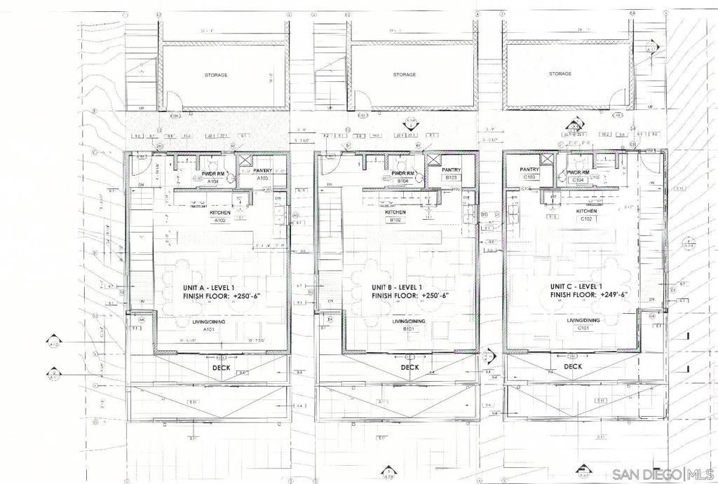
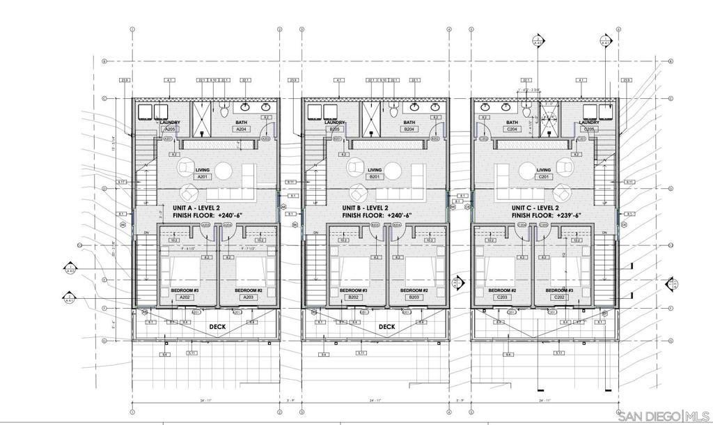
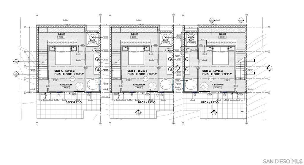
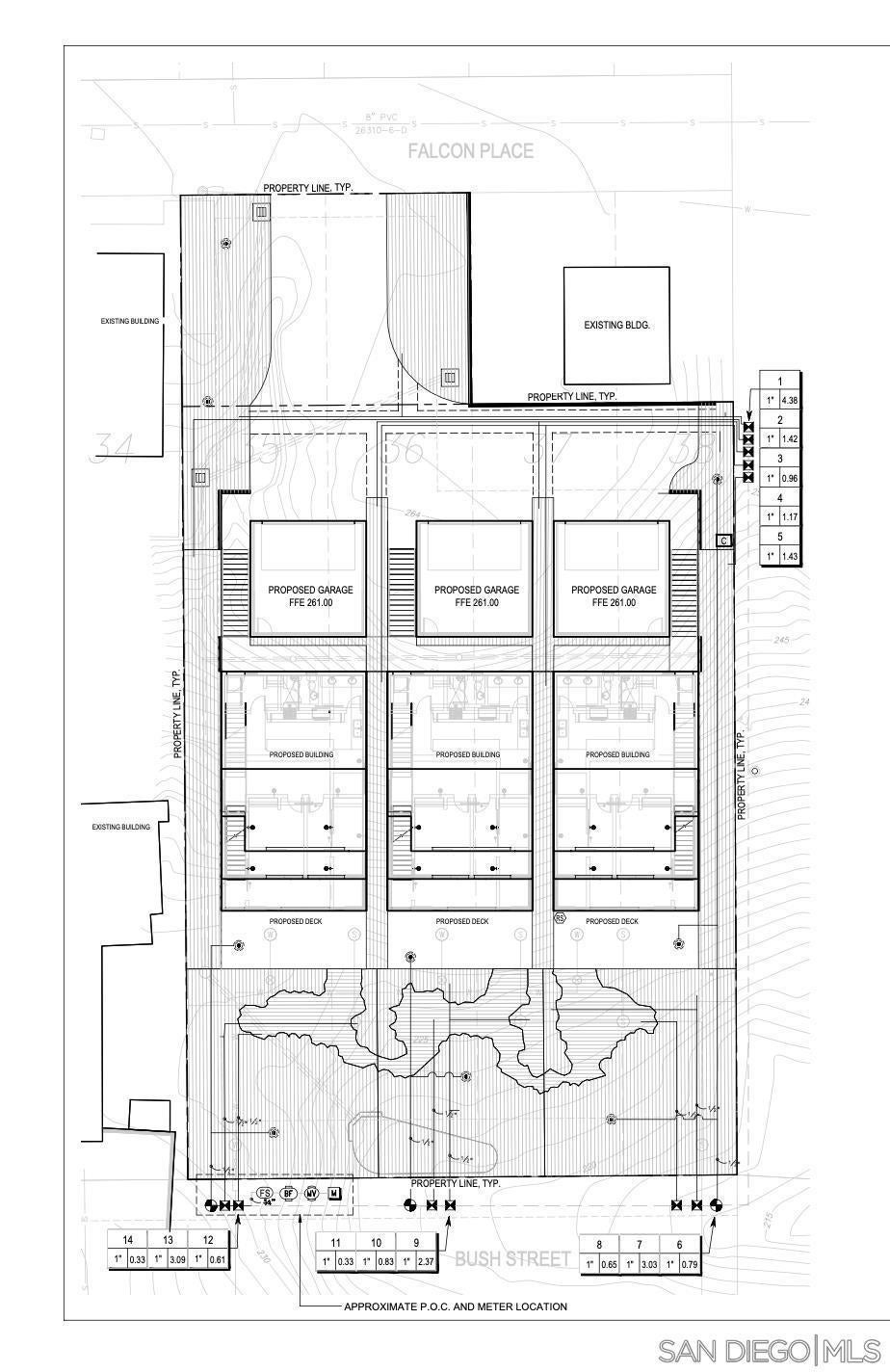
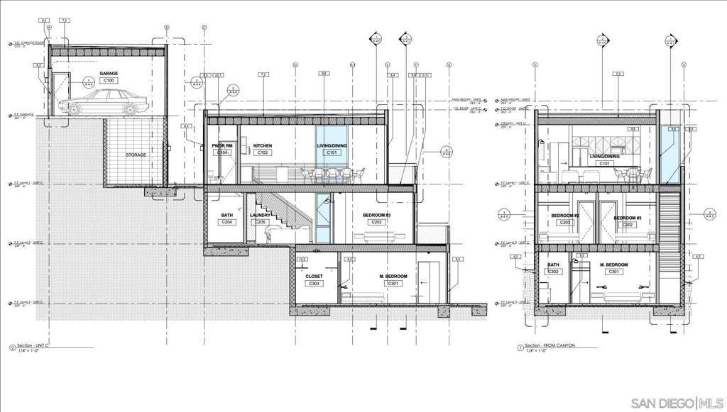
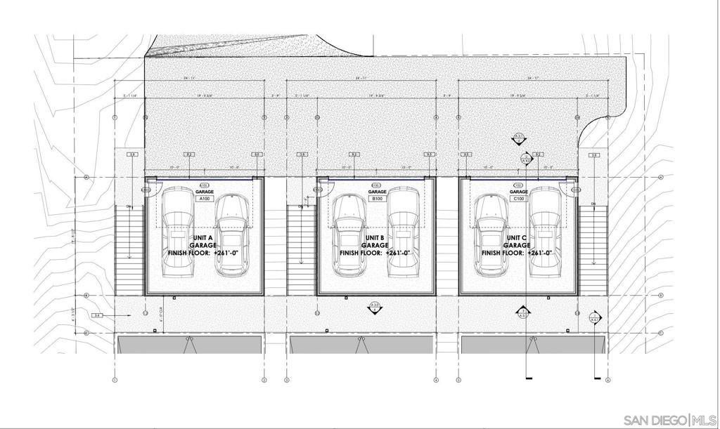
Mission Hills, San Diego, a fantastic development opportunity, especially given its location and potential for stunning views. Here are some key points and considerations for potential buyers or developers: Location and Neighborhood: Mission Hills is known for its historic charm, scenic views, and vibrant community. Its proximity to Downtown San Diego and other urban areas makes it a desirable location. Development Potential: The property offers the opportunity to build 3-6 three-story townhomes, and potentially more, depending on the revised plans. The fact that the lot can accommodate multiple units is a significant advantage for developers looking to maximize their investment. Architectural Plans: While the original architectural plans by Safdie Rabines Architects have expired, the fact that the architects are open to revisiting them provides flexibility for potential buyers. Developing new plans that take advantage of the views and the unique characteristics of the neighborhood could be an exciting prospect. Zoning and Regulations: The zoning designation of MCCPD-MR3000 suggests that the property is zoned for multi-residential development, which aligns with the proposed townhome project. Market and Demand: Understanding the demand for housing in Mission Hills and the broader San Diego area is crucial for assessing the feasibility and potential profitability of project. Overall, this Mission Hills property presents an exciting opportunity for developers to create a unique desirable residential development that capitalizes on the neighborhoods charm! Mission Hills, San Diego, a fantastic development opportunity, especially given its location and potential for stunning views. Here are some key points and considerations for potential buyers or developers: Location and Neighborhood: Mission Hills is known for its historic charm, scenic views, and vibrant community. Its proximity to Downtown San Diego and other urban areas makes it a desirable location for residents. Development Potential: The property offers the opportunity to build 3-6 three-story townhomes, and potentially more, depending on the revised plans. The fact that the lot can accommodate multiple units is a significant advantage for developers looking to maximize their investment. Architectural Plans: While the original architectural plans by Safdie Rabines Architects have expired, the architects are open to revisiting them providing flexibility for potential buyers. Developing new plans that take advantage of the views and the unique characteristics of the neighborhood could be an exciting prospect. Zoning and Regulations: It's important for developers to understand the zoning regulations and any restrictions that may apply to the property. The zoning designation of MCCPD-MR3000 suggests that the property is zoned for multi-residential development, which aligns with the proposed townhome project. Market and Demand: Understanding the demand for housing in Mission Hills and the broader San Diego area is crucial for assessing the feasibility and potential profitability of the project. Researching market trends, demographics, and buyer preferences can help inform the development strategy. Infrastructure and Utilities: Developers should consider the availability and accessibility of infrastructure and utilities such as water, sewer, electricity, and road access. Ensuring that these essential services are in place or can be easily connected to the property is essential for successful development. Environmental and Geotechnical Factors: Given the sloping nature of the double-sized lot, developers should conduct thorough assessments of environmental and geotechnical factors to identify any potential challenges or risks associated with the site. Community Engagement: Engaging with the local community and addressing their concerns and priorities can help facilitate the development process and foster positive relationships with neighbors and stakeholders. Overall...

Essential Information

  • MLS® #260001606SD
  • Price$1,199,900
  • Bathrooms0.00
  • Acres0.33
  • TypeLand
  • StatusComing Soon

Community Information

  • AddressN/A
  • Area92103 - Mission Hills
  • SubdivisionMission Hills
  • CitySan Diego
  • CountySan Diego
  • Zip Code92103

Amenities

  • UtilitiesSee Remarks
  • ViewBay

Exterior

  • Lot DescriptionSteep Slope

Additional Information

  • Date ListedJanuary 21st, 2026
  • ZoningR-2 Minor

Listing Details

  • AgentJavin Hope
  • OfficeThe Agency
Please provide a valid email address.

Javin Hope, The Agency.

Based on information from California Regional Multiple Listing Service, Inc. as of January 25th, 2026 at 3:41pm PST. This information is for your personal, non-commercial use and may not be used for any purpose other than to identify prospective properties you may be interested in purchasing. Display of MLS data is usually deemed reliable but is NOT guaranteed accurate by the MLS. Buyers are responsible for verifying the accuracy of all information and should investigate the data themselves or retain appropriate professionals. Information from sources other than the Listing Agent may have been included in the MLS data. Unless otherwise specified in writing, Broker/Agent has not and will not verify any information obtained from other sources. The Broker/Agent providing the information contained herein may or may not have been the Listing and/or Selling Agent.