Connect

Find us on...

Dashboard

Login using...

Shawn Bengtson

Office Broker - DRE 01236964

  • Office 760-805-7199
Questions?

12486 Miranda Way, San Diego – $4,995

  • 4 Beds
  • 3 Baths
  • 1,990 Sqft
  • 29 DOM
  • 4 Beds
  • 3 Baths
  • 1,990 Sqft
  • 29 DOM

12486 Miranda Way

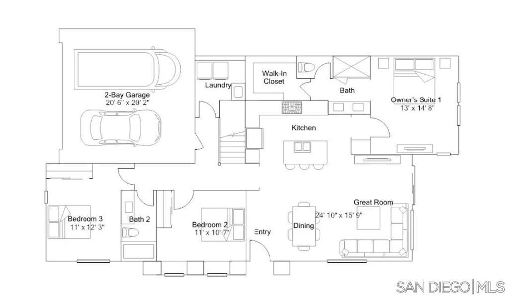
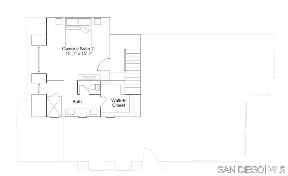
Available for immediate move-in, don't miss your chance to be the first to live in this brand new, thoughtfully designed duet home in the highly desirable Lilac at Junipers 55+ Community (built in 2026)! Tucked away in this gated new development, you’ll find that this 4 Bedroom, 3 Bath, 1,990 sq. ft. home combines elegance with comfort & efficiency, and features an open floor plan with quartz countertops, Thermofoil cabinets, gas stove, high ceilings, luxury vinyl plank flooring, carpeted bedrooms, recessed LED lighting, LowE dual pane, high windows, window coverings, owned Solar to save on electric bills, a backup battery for added peace of mind, a whole house fan, tankless water heater, separate laundry room, and all new appliances, including a brand new washer and dryer. The Great Room, dining room and kitchen effortlessly flow into one another, while the sliding glass doors lead to the outdoor space which will be landscaped before you move-in. See Supplement Retreat to one of the two primary bedrooms with ensuite bathrooms that boast a sizeable shower and a large walk-in closet. The first primary suite is on the first level, and the second level is occupied by the second owner’s suite, offering flexibility and privacy to meet your family’s needs. Two secondary bedrooms provide additional space for household members and overnight guests. Conveniently located near freeway access and shopping, with everything you need all around you, Junipers offers the best of active adult living. Take advantage of the resort-style amenities at the recreation center and enjoy activities available for a diverse background of interests which include a swimming pool, spa, fitness room, pickleball, bocce ball, walking trails, and so much more! Tenant to pay for electric (anything not covered by Solar, billed annually), gas, water, trash, and any other elected utilities such as cable and internet. No pets and No smoking. One year lease.

Essential Information

  • MLS® #260004699SD
  • Price$4,995
  • Bedrooms4
  • Bathrooms3.00
  • Full Baths3
  • Square Footage1,990
  • Acres0.00
  • Year Built2026
  • TypeResidential Lease
  • Sub-TypeSingle Family Residence
  • StatusActive

Community Information

  • Address12486 Miranda Way
  • Area92129 - Rancho Penasquitos
  • SubdivisionRancho Penasquitos
  • CitySan Diego
  • CountySan Diego
  • Zip Code92129

Amenities

  • Parking Spaces3
  • ParkingAttached Carport, Uncovered
  • # of Garages2
  • GaragesAttached Carport, Uncovered
  • ViewNone
  • Has PoolYes
  • PoolCommunity

Interior

  • InteriorCarpet, Tile
  • HeatingForced Air, Natural Gas
  • CoolingCentral Air
  • # of Stories2
  • StoriesTwo

Interior Features

Bedroom on Main Level, Main Level Primary

Appliances

Dishwasher, Disposal, Microwave, Refrigerator, Tankless Water Heater, Gas Water Heater

Exterior

  • RoofConcrete

Additional Information

  • Date ListedFebruary 27th, 2026
  • Days on Market29

Listing Details

  • AgentMelissa Pascual
  • OfficeKeller Williams Realty
Please provide a valid email address.

Melissa Pascual, Keller Williams Realty.

Based on information from California Regional Multiple Listing Service, Inc. as of March 28th, 2026 at 11:55am PDT. This information is for your personal, non-commercial use and may not be used for any purpose other than to identify prospective properties you may be interested in purchasing. Display of MLS data is usually deemed reliable but is NOT guaranteed accurate by the MLS. Buyers are responsible for verifying the accuracy of all information and should investigate the data themselves or retain appropriate professionals. Information from sources other than the Listing Agent may have been included in the MLS data. Unless otherwise specified in writing, Broker/Agent has not and will not verify any information obtained from other sources. The Broker/Agent providing the information contained herein may or may not have been the Listing and/or Selling Agent.