Connect

Find us on...

Dashboard

Login using...

Shawn Bengtson

Office Broker - DRE 01236964

  • Office 760-805-7199
Questions?

55705 Free Gold Drive, Yucca Valley – $59,997

  • $60k Price
  • .54 Acres
  • 3 DOM
  • $60k Price
  • .54 Acres
  • 3 DOM

55705 Free Gold Drive

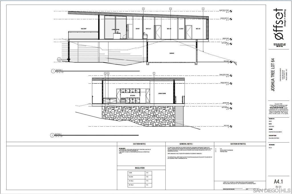
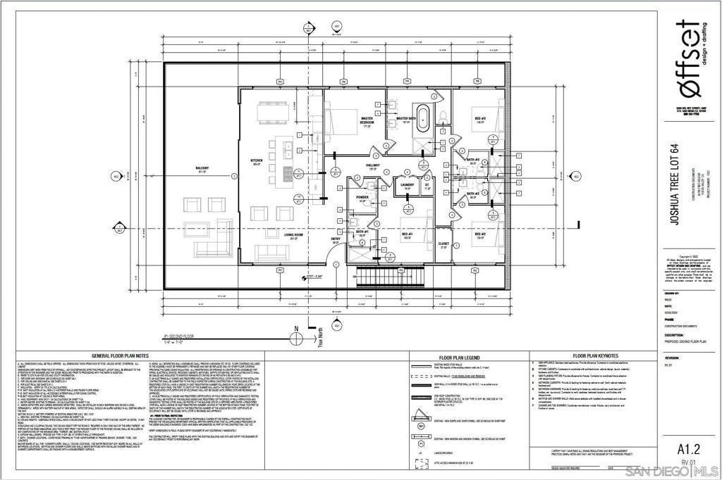
Rare and beautiful parcel located on a paved road above town. This elevated site offers great views, privacy, and no through traffic, situated in the desirable Juniper Terrace neighborhood known for its peaceful setting. Property includes custom modern home plans ready for submission, providing a streamlined path to development. The proposed contemporary residence is thoughtfully designed to maximize the surrounding desert landscape and indoor-outdoor living. City water, electricity, and fire hydrant available at the street. Property has already been assigned an official street address. Conveniently located near Joshua Tree National Park, dining, and local amenities, while enjoying cooler temperatures up to 15 degrees lower than the Palm Springs area. Ideal for a primary residence, second home, or investment opportunity. Buyer to investigate zoning, permits, short-term rental regulations, and all development requirements with the County of San Bernardino. Buyer to investigate zoning, permits, and all development requirements with the County of San Bernardino.

Essential Information

  • MLS® #260006991SD
  • Price$59,997
  • Bathrooms0.00
  • Acres0.54
  • TypeLand
  • StatusActive

Community Information

  • Address55705 Free Gold Drive
  • CityYucca Valley
  • CountySan Bernardino
  • Zip Code92284

Amenities

  • ViewPanoramic

Additional Information

  • Date ListedMarch 25th, 2026
  • Days on Market3

Listing Details

  • AgentLee Gilroy
  • OfficeBalboa Real Estate Inc
Please provide a valid email address.

Lee Gilroy, Balboa Real Estate Inc.

Based on information from California Regional Multiple Listing Service, Inc. as of March 28th, 2026 at 9:15pm PDT. This information is for your personal, non-commercial use and may not be used for any purpose other than to identify prospective properties you may be interested in purchasing. Display of MLS data is usually deemed reliable but is NOT guaranteed accurate by the MLS. Buyers are responsible for verifying the accuracy of all information and should investigate the data themselves or retain appropriate professionals. Information from sources other than the Listing Agent may have been included in the MLS data. Unless otherwise specified in writing, Broker/Agent has not and will not verify any information obtained from other sources. The Broker/Agent providing the information contained herein may or may not have been the Listing and/or Selling Agent.