Connect

Find us on...

Dashboard

Login using...

Shawn Bengtson

Office Broker - DRE 01236964

  • Office 760-805-7199
Questions?

3609 Esplanade, Marina Del Rey – $3,995,000

  • 4 Beds
  • 4 Baths
  • 4,215 Sqft
  • .09 Acres
  • 4 Beds
  • 4 Baths
  • 4,215 Sqft
  • .09 Acres

3609 Esplanade

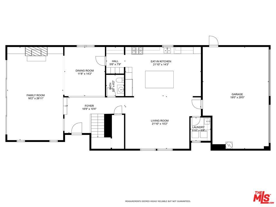
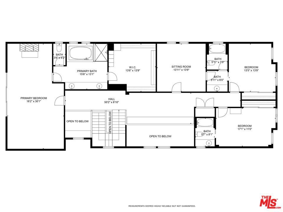
Welcome to 3609 Esplanade, a Venice Canal front, single family home on two levels, offering 4 bedrooms, 3.5 baths + den + office space and 3 car garage parking. Beautifully designed layout with high ceilings throughout, creating a bright and airy open floor plan. A raised entry way overlooks the canal, living and dining rooms. The living room opens to a landscaped patio framed by energy efficient Fleetwood sliding doors. The fireplace is flanked by two built in bookcases. The dining room can accommodate a large table and chairs. Leading to the kitchen is a butlers pantry separated by a swinging door. A chefs dream kitchen, has quartz countertops, a full suite of GE Monogram appliances, custom wooden cabinetry, and a massive quartz island with seating. The kitchen opens to a large flexible space (Den, entertainment or dining) with 2 story ceilings, exposing the loft office space on the second floor. A powder room and coat closet are in the entry way hall. Adjacent to the garage is a laundry room completing this first level. All four bedrooms and three bathrooms are located on the second floor providing privacy. The canal front primary suite with its Juliette balcony and sliding glass door highlight stunning canal views. There is a large seating area with a fireplace. The primary en-suite, spa like, marble bathroom, with a jetted soaking tub, walk in shower, dual sinks and two large skylights plus an enormous walk in closet. The Jack and Jill bedrooms share an en-suite bathroom with a bath/shower combination. The fourth bedroom is also en-suite. It is bright with ample closet space. There is a hall linen closet. The house has been meticulously maintained by its original owners. Installed is a brand new dual zone high efficiency HVAC units. Among other features are maple hardwood floors throughout and a central vacuum system. All rooms are wired for security, internet, cable and satellite.The living room and primary bedroom have remote controlled electronic shades.

Essential Information

  • MLS® #26639335
  • Price$3,995,000
  • Bedrooms4
  • Bathrooms4.00
  • Full Baths3
  • Half Baths1
  • Square Footage4,215
  • Acres0.09
  • Year Built2002
  • TypeResidential
  • Sub-TypeSingle Family Residence
  • StyleContemporary
  • StatusActive

Community Information

  • Address3609 Esplanade
  • AreaC11 - Venice
  • CityMarina Del Rey
  • CountyLos Angeles
  • Zip Code90292

Amenities

  • Parking Spaces5
  • # of Garages3
  • ViewCanal, Water
  • WaterfrontCanal Front
  • PoolNone

Parking

Door-Multi, Direct Access, Garage, Private

Garages

Door-Multi, Direct Access, Garage, Private

Interior

  • InteriorWood
  • HeatingCentral
  • CoolingCentral Air
  • FireplaceYes
  • FireplacesLiving Room
  • # of Stories2
  • StoriesTwo

Interior Features

Breakfast Bar, Separate/Formal Dining Room, Loft

Appliances

Built-In, Dishwasher, Gas Cooktop, Disposal, Oven, Refrigerator, Washer

Additional Information

  • Date ListedJanuary 22nd, 2026
  • Days on Market12
  • ZoningLARW2

Listing Details

  • AgentJennifer Portnoy
  • OfficeCompass
Please provide a valid email address.

Jennifer Portnoy, Compass.

Based on information from California Regional Multiple Listing Service, Inc. as of February 3rd, 2026 at 7:45am PST. This information is for your personal, non-commercial use and may not be used for any purpose other than to identify prospective properties you may be interested in purchasing. Display of MLS data is usually deemed reliable but is NOT guaranteed accurate by the MLS. Buyers are responsible for verifying the accuracy of all information and should investigate the data themselves or retain appropriate professionals. Information from sources other than the Listing Agent may have been included in the MLS data. Unless otherwise specified in writing, Broker/Agent has not and will not verify any information obtained from other sources. The Broker/Agent providing the information contained herein may or may not have been the Listing and/or Selling Agent.