Connect

Find us on...

Dashboard

Login using...

Shawn Bengtson

Office Broker - DRE 01236964

  • Office 760-805-7199
Questions?

N/A, San Diego – $1,499,000

  • 3 Beds
  • 1 Bath
  • 1,368 Sqft
  • .15 Acres
  • 3 Beds
  • 1 Bath
  • 1,368 Sqft
  • .15 Acres

(Undisclosed Address)

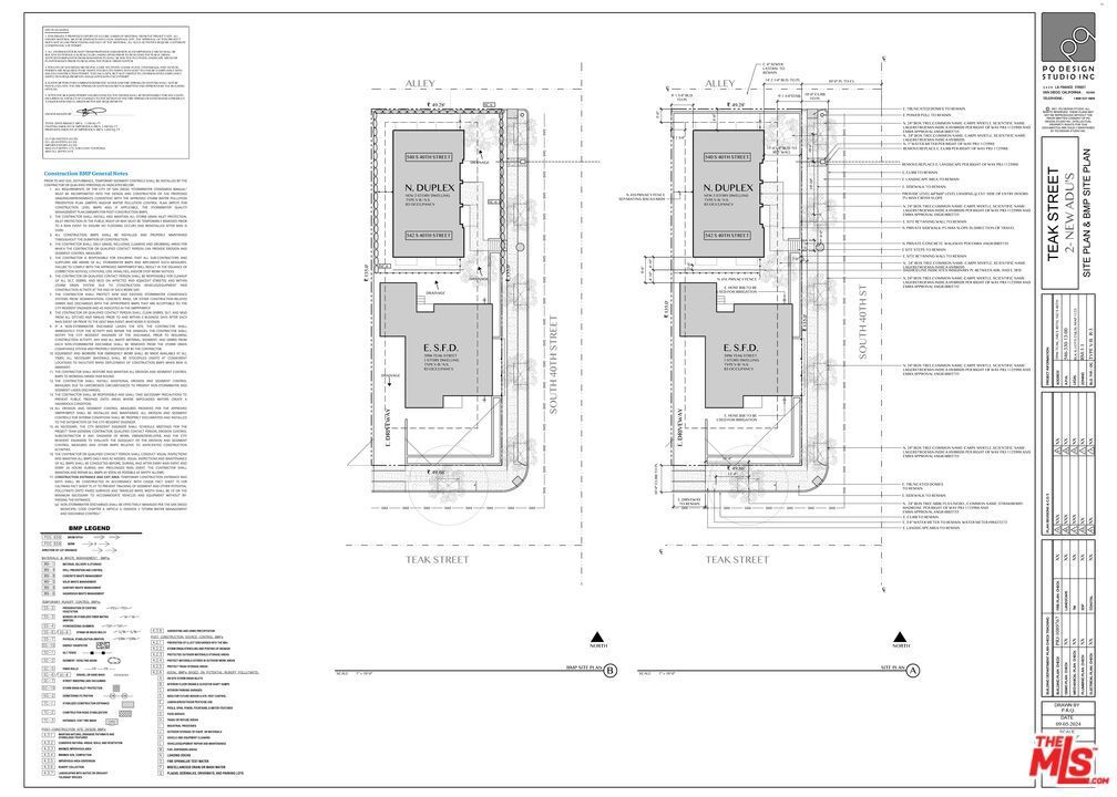
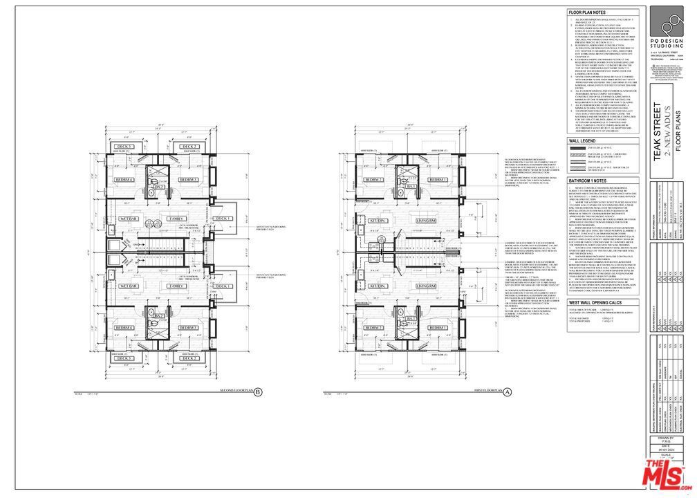
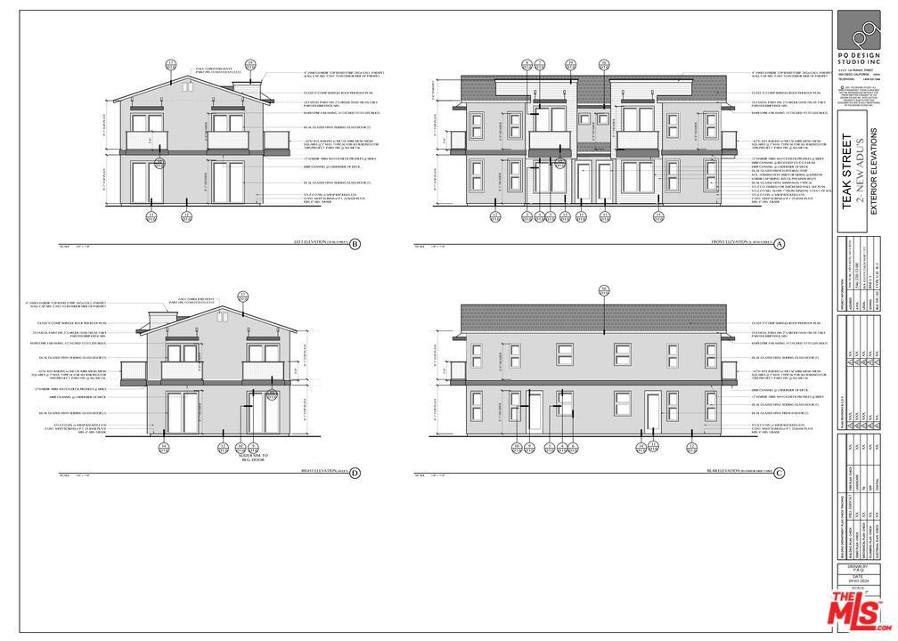
Great Opportunity to do a Ground Lease with an Existing Single Family Home with an existing Jr. ADU and an Additional Four Units Approved to build in an Opportunity Zone. $250K in Tax Credits are available. The lot has 100 feet of frontage along Mt. Hope Park with 12 Mile Suburban Views to Mt. Helix during the day and evening. Property is also conveniently located about one mile east of Downtown San Diego. Property is located in a Transit Priority Zone and Opportunity Zone awarding 40% Renewable Energy Tax Credits with the Addition of Solar and Batteries. Permits are ready and done for Four Additional Legal Units to be Built on the Property as ADU's and a Duplex. There is potential of up to a total of 10 units that could be built on the property. Property is located in a Qualified Opportunity Zone. Which means that Investors who have sold stocks, business and real estate can trade into the property and fund the Construction Tax Free within six months of their Original Purchase and Construction can be completed within 30 months. Lessor is a Broker, no Listing Broker.

Essential Information

  • MLS® #26640029
  • Price$1,499,000
  • Bedrooms3
  • Bathrooms1.00
  • Full Baths1
  • Square Footage1,368
  • Acres0.15
  • Year Built1949
  • TypeResidential
  • Sub-TypeSingle Family Residence
  • StatusActive

Community Information

  • AddressN/A
  • Area92113 - Logan Heights
  • CitySan Diego
  • CountySan Diego
  • Zip Code92113

Amenities

  • AmenitiesPaddle Tennis, Tennis Court(s)
  • Parking Spaces3
  • # of Garages1
  • Has PoolYes
  • PoolFenced

Parking

On Street, Driveway Down Slope From Street, Off Site, Public

Garages

On Street, Driveway Down Slope From Street, Off Site, Public

View

City Lights, Mountain(s), Panoramic, Park/Greenbelt, Pasture, Trees/Woods

Interior

  • Interior FeaturesSeparate/Formal Dining Room
  • HeatingCentral
  • CoolingElectric
  • FireplacesNone
  • # of Stories2
  • StoriesTwo

Appliances

Dishwasher, Gas Oven, Gas Range, Microwave, Oven

Additional Information

  • Date ListedJanuary 19th, 2026
  • Days on Market65
  • ZoningRM-1-1

Listing Details

  • OfficeRising Tide Real Estate Inc.
Please provide a valid email address.

Rising Tide Real Estate Inc..

Based on information from California Regional Multiple Listing Service, Inc. as of March 25th, 2026 at 5:15pm PDT. This information is for your personal, non-commercial use and may not be used for any purpose other than to identify prospective properties you may be interested in purchasing. Display of MLS data is usually deemed reliable but is NOT guaranteed accurate by the MLS. Buyers are responsible for verifying the accuracy of all information and should investigate the data themselves or retain appropriate professionals. Information from sources other than the Listing Agent may have been included in the MLS data. Unless otherwise specified in writing, Broker/Agent has not and will not verify any information obtained from other sources. The Broker/Agent providing the information contained herein may or may not have been the Listing and/or Selling Agent.