Connect

Find us on...

Dashboard

Login using...

Shawn Bengtson

Office Broker - DRE 01236964

  • Office 760-805-7199
Questions?

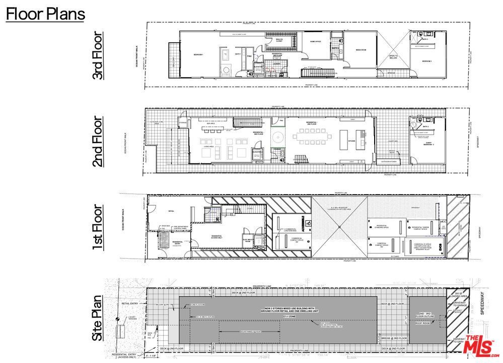
811 Ocean Front Walk, Venice – $3,995,000

  • 4 Beds
  • 6 Baths
  • 5,184 Sqft
  • .1 Acres
  • 4 Beds
  • 6 Baths
  • 5,184 Sqft
  • .1 Acres

811 Ocean Front Walk

Exceptional fully entitled oceanfront ground-up opportunity to develop a three-story mixed-use coastal property featuring luxury residential living above ground-floor commercial. This represents the only new construction opportunity on Ocean Front Walk in years, offering rare city-approved plans and a meaningful entitlement advantage in one of Los Angeles' most supply-constrained beachfront corridors. The approved design includes approximately 450 square feet of ground-floor commercial space, ideal for boutique retail, gallery, or office use with unmatched boardwalk exposure and foot traffic. Above, plans call for an expansive 4,700 square foot single-family residence, thoughtfully designed with multiple private patios and sweeping panoramic ocean views. Architectural plans and finish packages are complete and ready for immediate execution, allowing construction to commence without delay. Designed by Reed Architectural Group, an award-winning Venice-based firm, the project seamlessly blends contemporary coastal architecture with functional live-work flexibility. Ideally located just steps from Abbot Kinney Boulevard, Main Street, and Rose Avenue, this offering presents a rare opportunity for an owner-user, investor, or developer to create a truly iconic oceanfront property in the heart of Venice.

Essential Information

  • MLS® #26645437
  • Price$3,995,000
  • Bedrooms4
  • Bathrooms6.00
  • Square Footage5,184
  • Acres0.10
  • Year Built2026
  • TypeResidential Income
  • StatusActive

Community Information

  • Address811 Ocean Front Walk
  • AreaC11 - Venice
  • CityVenice
  • CountyLos Angeles
  • Zip Code90291

Amenities

  • Parking Spaces6

Parking

Attached Carport, Controlled Entrance, Covered, Carport, Direct Access, Driveway, Garage, Garage Door Opener, Guest, Gated, Private

Garages

Attached Carport, Controlled Entrance, Covered, Carport, Direct Access, Driveway, Garage, Garage Door Opener, Guest, Gated, Private

Interior

  • HeatingCentral, Forced Air, Zoned
  • CoolingCentral Air
  • # of Stories3
  • StoriesThree Or More, Multi/Split

Appliances

Dishwasher, Disposal, Refrigerator, Vented Exhaust Fan, Washer

Additional Information

  • Date ListedJanuary 29th, 2026
  • Days on Market56
  • ZoningLAC1

Listing Details

  • AgentR. Austin Brasch
  • OfficeCompass
Please provide a valid email address.

R. Austin Brasch, Compass.

Based on information from California Regional Multiple Listing Service, Inc. as of March 26th, 2026 at 10:56am PDT. This information is for your personal, non-commercial use and may not be used for any purpose other than to identify prospective properties you may be interested in purchasing. Display of MLS data is usually deemed reliable but is NOT guaranteed accurate by the MLS. Buyers are responsible for verifying the accuracy of all information and should investigate the data themselves or retain appropriate professionals. Information from sources other than the Listing Agent may have been included in the MLS data. Unless otherwise specified in writing, Broker/Agent has not and will not verify any information obtained from other sources. The Broker/Agent providing the information contained herein may or may not have been the Listing and/or Selling Agent.