Connect

Find us on...

Dashboard

Login using...

Shawn Bengtson

Office Broker - DRE 01236964

  • Office 760-805-7199
Questions?

1220 Chestnut St, Alameda – $1,388,000

  • 6 Beds
  • 5 Baths
  • .08 Acres
  • 113 DOM
  • 6 Beds
  • 5 Baths
  • .08 Acres
  • 113 DOM

1220 Chestnut St

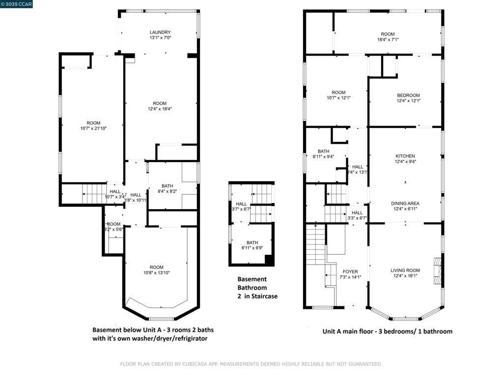
Unit A pictured only. Charming Alameda Triplex, a well-maintained and upgraded rental property in the heart of central Alameda. Offering 3115 sq.ft. of living space on a 3,500 sq.ft. lot, this versatile property includes three separately metered units. Unit A (vacant): A spacious 3-bedroom, 1-bath main-level flat with living space below adding 3 more rooms and 2 full bathrooms, ideal for extended living, guest quarters, office, or storage. Rented Unit B and C each has 1 Bedroom with 1 bath and a bonus attic room. Combined current rent for Units B & C is $2,950/month, with upside potential in leasing large Unit A. Below Unit A are 3 rooms and 2 full bathrooms and connected to Unit A with internal stairs, also separate backyard entries. Upgrades include a concrete foundation, modern plumbing, and updated electrical, dual-pane windows. Each unit has separate gas and electric meters, plus dedicated house meters for owner’s common-area use. Building has a driveway to a detached garage which is used for owner storage and houses coin-operated laundry for tenant use. Easy street parking for tenants. Ultra-convenient location just steps from Chestnut-Encinal Market, and the beloved Blue Dot Café. Minutes to downtown Park Street, Alameda Landing, parks, transit, ferry.

Essential Information

  • MLS® #41107987
  • Price$1,388,000
  • Bedrooms6
  • Bathrooms5.00
  • Acres0.08
  • Year Built1918
  • TypeResidential Income
  • Sub-TypeTriplex
  • StatusActive

Community Information

  • Address1220 Chestnut St
  • SubdivisionALAMEDA
  • CityAlameda
  • CountyAlameda
  • Zip Code94501

Amenities

  • Parking Spaces1
  • ParkingGarage
  • GaragesGarage

Interior

  • InteriorCarpet, Laminate, Tile, Wood
  • HeatingWall Furnace

Appliances

Gas Water Heater, Dryer, Washer

Exterior

  • ExteriorWood Siding
  • Lot DescriptionBack Yard, Front Yard
  • RoofShingle
  • ConstructionWood Siding

Additional Information

  • Date ListedAugust 18th, 2025
  • Days on Market113

Listing Details

  • AgentRon Hariri
  • OfficeCompass
Please provide a valid email address.

Ron Hariri, Compass.

Based on information from California Regional Multiple Listing Service, Inc. as of December 9th, 2025 at 7:30pm PST. This information is for your personal, non-commercial use and may not be used for any purpose other than to identify prospective properties you may be interested in purchasing. Display of MLS data is usually deemed reliable but is NOT guaranteed accurate by the MLS. Buyers are responsible for verifying the accuracy of all information and should investigate the data themselves or retain appropriate professionals. Information from sources other than the Listing Agent may have been included in the MLS data. Unless otherwise specified in writing, Broker/Agent has not and will not verify any information obtained from other sources. The Broker/Agent providing the information contained herein may or may not have been the Listing and/or Selling Agent.