Connect

Find us on...

Dashboard

Login using...

Shawn Bengtson

Office Broker - DRE 01236964

  • Office 760-805-7199
Questions?

3464 Champion St, Oakland – $999,999

  • $1000k Price
  • .14 Acres
  • 115 DOM
  • $1000k Price
  • .14 Acres
  • 115 DOM

3464 Champion St

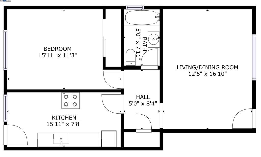
Qualified investors are extended the opportunity to acquire 3464 Champion Street, located in Oakland, CA. This well-maintained apartment community was built in 1956 and includes 4 one bedroom / one bathroom units and 2 two bedroom one bathroom units with 1 non-conforming studio/storage unit. Recent Capital improvements include completion of the seismic retrofit for the soft story. Each unit is individually metered for gas and electric.

Essential Information

  • MLS® #41108637
  • Price$999,999
  • Bathrooms0.00
  • Acres0.14
  • Year Built1956
  • TypeResidential Income
  • StatusActive

Community Information

  • Address3464 Champion St
  • SubdivisionALAMEDA COUNTY
  • CityOakland
  • CountyAlameda
  • Zip Code94602

Amenities

  • Parking Spaces4

Interior

  • HeatingWall Furnace
  • CoolingNone

Appliances

Gas Water Heater, Dryer, Washer

Exterior

  • ExteriorStucco
  • Lot DescriptionCorner Lot
  • ConstructionStucco

Additional Information

  • Date ListedAugust 19th, 2025
  • Days on Market115

Listing Details

  • AgentStephen Pagones
  • OfficeOak Tree Property Group
Please provide a valid email address.

Price Change History for 3464 Champion St, Oakland, (MLS® #41108637)

Date Details Change
Status Changed from Pending to Active
Status Changed from Active to Pending

Stephen Pagones, Oak Tree Property Group.

Based on information from California Regional Multiple Listing Service, Inc. as of February 2nd, 2026 at 7:15pm PST. This information is for your personal, non-commercial use and may not be used for any purpose other than to identify prospective properties you may be interested in purchasing. Display of MLS data is usually deemed reliable but is NOT guaranteed accurate by the MLS. Buyers are responsible for verifying the accuracy of all information and should investigate the data themselves or retain appropriate professionals. Information from sources other than the Listing Agent may have been included in the MLS data. Unless otherwise specified in writing, Broker/Agent has not and will not verify any information obtained from other sources. The Broker/Agent providing the information contained herein may or may not have been the Listing and/or Selling Agent.