Connect

Find us on...

Dashboard

Login using...

Shawn Bengtson

Office Broker - DRE 01236964

  • Office 760-805-7199
Questions?

3436 Hillcrest Avenue, Antioch – $10,048

  • $10k Price
  • .35 Acres
  • 25 DOM
  • $10k Price
  • .35 Acres
  • 25 DOM

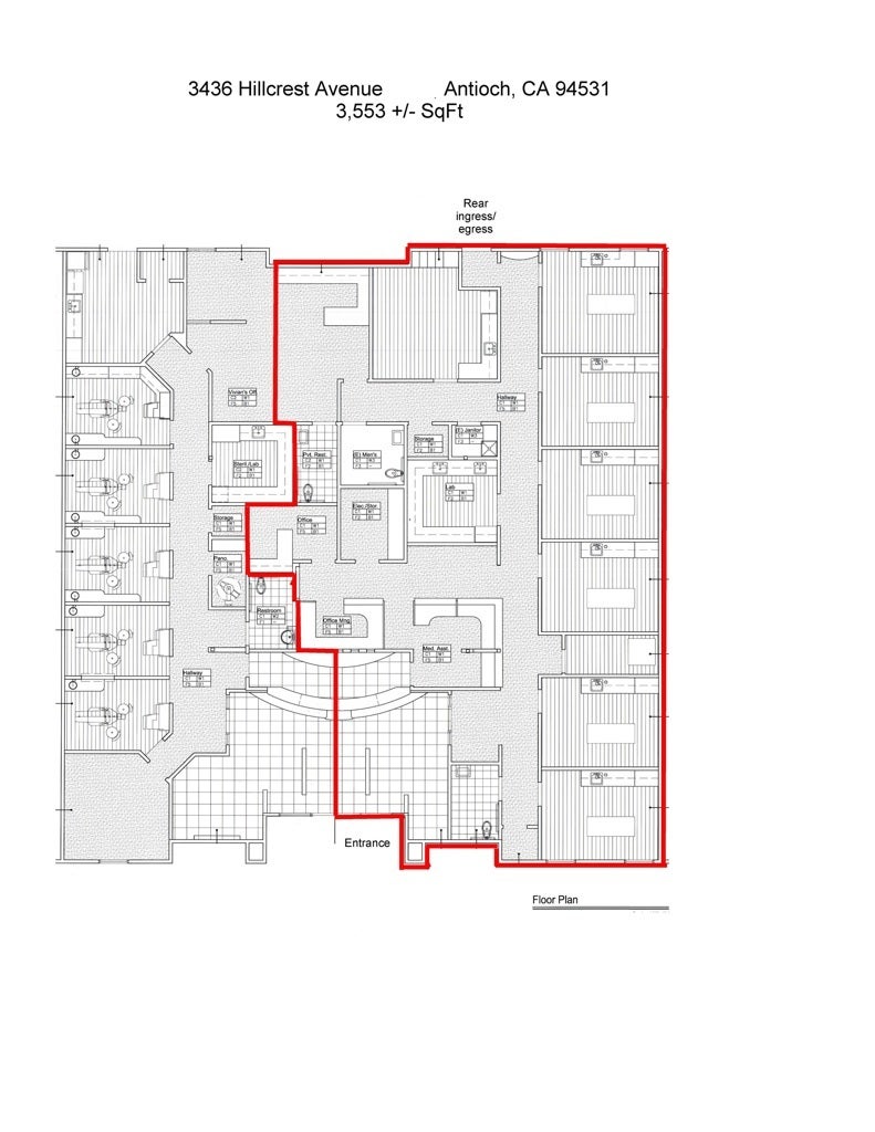
3436 Hillcrest Avenue

Exceptional opportunity for medical professionals to occupy a spacious 3,606 SF turn-key medical suite. This well-configured office in the heart of Antioch. Positioned in a high-visibility medical/office complex with excellent access to major arterials. The space is ideal for Aesthetic Medicine, Plastic Surgery, ENT, Dermatology, Surgery Center, and more. The 3,406 SF suite is turn-key and conducive to clinics & healthcare services. With (6) oversized exam/procedure rooms plus two (2) private offices, Reception/waiting area designed for patient flow and comfort, Staff support spaces including employee lounge, storage, and staff lockers, (3) restrooms, Lab, Front and Rear Access, ADA compliant, Plenty of natural light and modern finishes, Ample parking for patients and staff. All in a well-maintained professional complex with medical tenants (including John Muir, and Delta Association of Realtors), and Easy access to Highway 4, public transit, and surrounding business amenities.

Essential Information

  • MLS® #41119793
  • Price$10,048
  • Bathrooms0.00
  • Acres0.35
  • Year Built2006
  • TypeCommercial Lease
  • StatusActive

Community Information

  • Address3436 Hillcrest Avenue
  • CityAntioch
  • CountyContra Costa
  • Zip Code94531-1111

Amenities

  • Parking Spaces8

Exterior

  • ExteriorStucco
  • ConstructionStucco

Additional Information

  • Date ListedJanuary 1st, 2026
  • Days on Market25

Listing Details

  • AgentKelly Klingler
  • OfficeWells & Bennett REALTORS
Please provide a valid email address.

Price Change History for 3436 Hillcrest Avenue, Antioch, (MLS® #41119793)

Date Details Change
Price Reduced from $10,640 to $10,048 $592 (5.56%)
Price Increased from $10,000 to $10,640 $640 (6.40%)
Price Reduced from $11,725 to $10,000 $1,725 (14.71%)

Kelly Klingler, Wells & Bennett REALTORS.

Based on information from California Regional Multiple Listing Service, Inc. as of January 26th, 2026 at 8:30pm PST. This information is for your personal, non-commercial use and may not be used for any purpose other than to identify prospective properties you may be interested in purchasing. Display of MLS data is usually deemed reliable but is NOT guaranteed accurate by the MLS. Buyers are responsible for verifying the accuracy of all information and should investigate the data themselves or retain appropriate professionals. Information from sources other than the Listing Agent may have been included in the MLS data. Unless otherwise specified in writing, Broker/Agent has not and will not verify any information obtained from other sources. The Broker/Agent providing the information contained herein may or may not have been the Listing and/or Selling Agent.