Connect

Find us on...

Dashboard

Login using...

Shawn Bengtson

Office Broker - DRE 01236964

  • Office 760-805-7199
Questions?

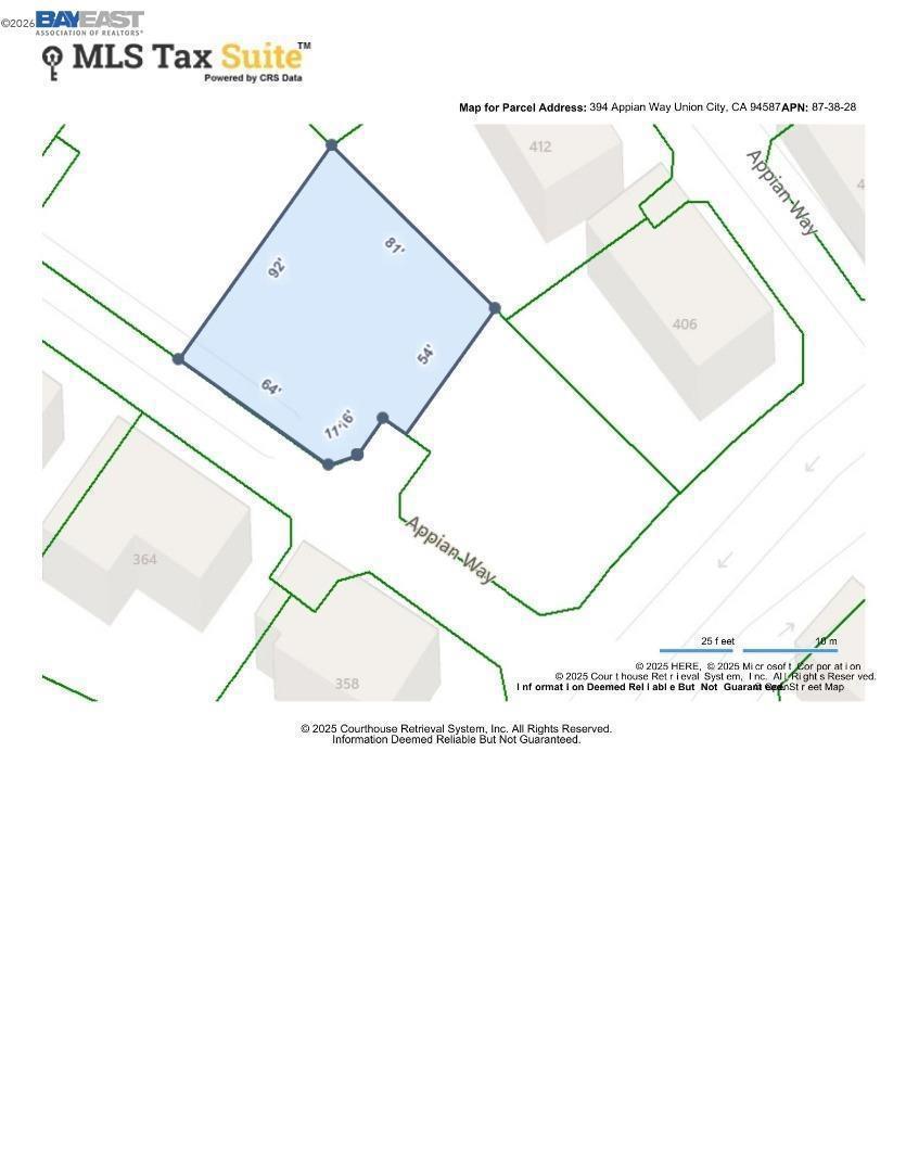
394 394 Appian Way, Union City – $549,000

  • $549k Price
  • .15 Acres
  • 2 DOM
  • $549k Price
  • .15 Acres
  • 2 DOM

394 394 Appian Way

Build Your Dream Home – Rare Residential Lot Opportunity. Exceptional opportunity to purchase a 6,250 sq ft residential lot at 394 Appian Way in Union City. Vacant buildable parcels in established Bay Area neighborhoods are increasingly rare. This property offers the potential to design and build approximately a 2,800–4,000 sq ft custom residence (buyer to verify with city planning and zoning). Ideal opportunity for a builder, developer, investor, or owner-builder looking to create a new custom home in a desirable East Bay location. Imagine a thoughtfully designed residence featuring open-concept living spaces, modern architecture, and indoor-outdoor California living tailored to your lifestyle. Conveniently located near parks, shopping, schools, and major commuter routes serving Silicon Valley and the greater East Bay.

Essential Information

  • MLS® #41126535
  • Price$549,000
  • Bathrooms0.00
  • Acres0.15
  • TypeLand
  • StatusActive

Community Information

  • Address394 394 Appian Way
  • SubdivisionSEVEN HILLS
  • CityUnion City
  • CountyAlameda
  • Zip Code94587

Additional Information

  • Date ListedMarch 9th, 2026
  • Days on Market2
  • ZoningR-1

Listing Details

  • AgentNashaba Rahman
  • OfficeNaushaba Rahman, Broker
Please provide a valid email address.

Nashaba Rahman, Naushaba Rahman, Broker.

Based on information from California Regional Multiple Listing Service, Inc. as of March 11th, 2026 at 4:57pm PDT. This information is for your personal, non-commercial use and may not be used for any purpose other than to identify prospective properties you may be interested in purchasing. Display of MLS data is usually deemed reliable but is NOT guaranteed accurate by the MLS. Buyers are responsible for verifying the accuracy of all information and should investigate the data themselves or retain appropriate professionals. Information from sources other than the Listing Agent may have been included in the MLS data. Unless otherwise specified in writing, Broker/Agent has not and will not verify any information obtained from other sources. The Broker/Agent providing the information contained herein may or may not have been the Listing and/or Selling Agent.