Connect

Find us on...

Dashboard

Login using...

Shawn Bengtson

Office Broker - DRE 01236964

  • Office 760-805-7199
Questions?

1408 Henry St, Berkeley – $968,000

  • 2 Beds
  • 2 Baths
  • 1,509 Sqft
  • .18 Acres
  • 2 Beds
  • 2 Baths
  • 1,509 Sqft
  • .18 Acres

1408 Henry St

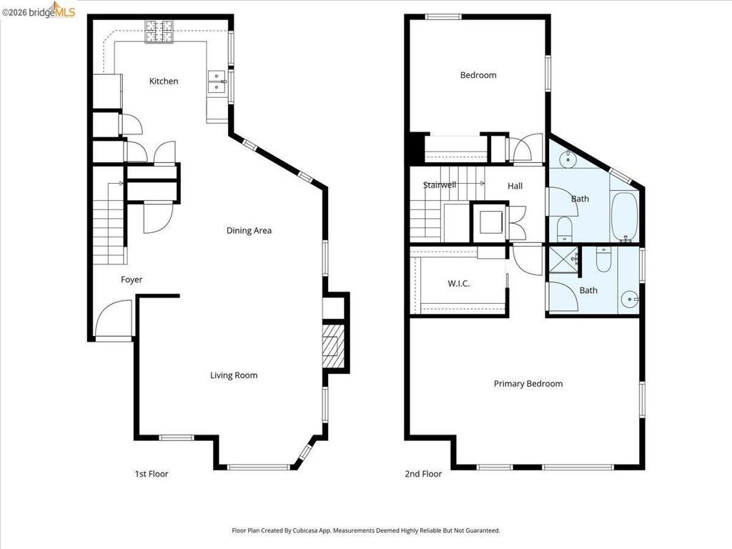
Prime North Berkeley Brown Shingle Townhome-- Walk to UCB, BART, and Gourmet Ghetto. Located in a highly desirable North Berkeley neighborhood, this elegant townhouse-style residence offers an exceptional blend of tranquility and convenience. Ideally situated across from Safeway and just blocks from the North Berkeley BART station, the renowned Gourmet Ghetto, the shops and restaurants along Shattuck Avenue, and the campus of University of California, Berkeley. This charming two-story home showcases Berkeley’s classic Brown Shingle architectural style and is part of an intimate four-unit community with private entrances. Spanning approximately 1,509 sq ft, the home features 2 bedrooms and 2 bathrooms. The main level offers an open-concept living and kitchen area with large windows overlooking peaceful redwood trees. Upstairs are two spacious bedrooms, each with a walk-in closet, along with two bathrooms and a convenient in-unit washer and dryer. Additional highlights include beautiful hardwood floors throughout, abundant natural light, a dedicated garage parking space, and extra storage. A rare opportunity to enjoy comfortable living in one of Berkeley’s most sought-after locations

Essential Information

  • MLS® #41127513
  • Price$968,000
  • Bedrooms2
  • Bathrooms2.00
  • Full Baths2
  • Square Footage1,509
  • Acres0.18
  • Year Built1982
  • TypeResidential
  • Sub-TypeTownhouse
  • StatusActive

Community Information

  • Address1408 Henry St
  • SubdivisionNORTH BERKELEY
  • CityBerkeley
  • CountyAlameda
  • Zip Code94709

Amenities

  • Parking Spaces1
  • # of Garages1
  • PoolNone

Amenities

Maintenance Grounds, Other, Trash

Parking

Underground, Garage, Off Street

Garages

Underground, Garage, Off Street

Interior

  • HeatingWall Furnace
  • CoolingNone
  • FireplaceYes
  • FireplacesLiving Room
  • StoriesTwo

Interior

Laminate, See Remarks, Tile, Vinyl

Appliances

Gas Water Heater, Dryer, Washer

Exterior

  • ExteriorSee Remarks
  • ConstructionSee Remarks

Additional Information

  • Date ListedMarch 23rd, 2026
  • Days on Market7
  • HOA Fees500
  • HOA Fees Freq.Monthly

Listing Details

  • AgentXiuju Sun
  • OfficeCompass
Please provide a valid email address.

Xiuju Sun, Compass.

Based on information from California Regional Multiple Listing Service, Inc. as of March 30th, 2026 at 10:50am PDT. This information is for your personal, non-commercial use and may not be used for any purpose other than to identify prospective properties you may be interested in purchasing. Display of MLS data is usually deemed reliable but is NOT guaranteed accurate by the MLS. Buyers are responsible for verifying the accuracy of all information and should investigate the data themselves or retain appropriate professionals. Information from sources other than the Listing Agent may have been included in the MLS data. Unless otherwise specified in writing, Broker/Agent has not and will not verify any information obtained from other sources. The Broker/Agent providing the information contained herein may or may not have been the Listing and/or Selling Agent.