Connect

Find us on...

Dashboard

Login using...

Shawn Bengtson

Office Broker - DRE 01236964

  • Office 760-805-7199
Questions?

2144 Curtis St, Berkeley – $1,495,000

  • 4 Beds
  • 4 Baths
  • .09 Acres
  • 10 DOM
  • 4 Beds
  • 4 Baths
  • .09 Acres
  • 10 DOM

2144 Curtis St

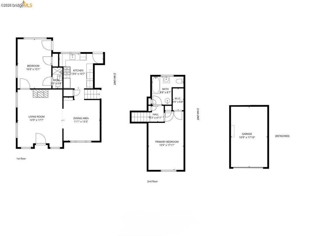
Charming fully vacant Central Berkeley Mediterranean duplex featuring arches, built-ins, tons of natural light, substantial renovations, and preserved Craftsman details throughout. Townhome-style units on either side of the garages each feature two bedrooms and two bathrooms with a split-level design so they live like single-family homes. The corner unit (2148) showcases gleaming original wood floors, a stylish fireplace, and an excellent floor plan. The living room flows seamlessly into a formal dining area and a fully renovated kitchen. The primary bedroom/bathroom suite sits atop a split-level staircase, with a second bedroom and bathroom below. The northern unit (2144) offers a similarly appealing layout with a fully renovated kitchen and numerous other upgrades throughout (list available). This unit also includes a large lower-level family room (not included in sq ft), along with interior access to an attached garage. The yard has been completely transformed into a tranquil garden oasis—ideal for entertaining or relaxing. Full seismic retrofit by Bay Area Retrofit. An incredible location situated in sought-after Poets Corner in Central Berkeley, the property is just 900 feet from Strawberry Creek Park and offers easy access to North Berkeley BART. 94 Walkscore. BESO score 1.

Essential Information

  • MLS® #41128005
  • Price$1,495,000
  • Bedrooms4
  • Bathrooms4.00
  • Acres0.09
  • Year Built1925
  • TypeResidential Income
  • Sub-TypeDuplex
  • StatusActive

Community Information

  • Address2144 Curtis St
  • SubdivisionPOETS CORNER
  • CityBerkeley
  • CountyAlameda
  • Zip Code94702

Amenities

  • Parking Spaces2
  • ParkingGarage, Garage Door Opener
  • GaragesGarage, Garage Door Opener

Interior

  • InteriorCarpet, Laminate, Tile, Wood
  • HeatingForced Air, Floor Furnace

Appliances

Gas Water Heater, Dryer, Washer

Exterior

  • Lot DescriptionGarden, Street Level, Yard

Additional Information

  • Date ListedMarch 20th, 2026
  • Days on Market10

Listing Details

  • AgentCameron Parkinson
  • OfficeDistrict Homes
Please provide a valid email address.

Cameron Parkinson, District Homes.

Based on information from California Regional Multiple Listing Service, Inc. as of March 30th, 2026 at 12:30pm PDT. This information is for your personal, non-commercial use and may not be used for any purpose other than to identify prospective properties you may be interested in purchasing. Display of MLS data is usually deemed reliable but is NOT guaranteed accurate by the MLS. Buyers are responsible for verifying the accuracy of all information and should investigate the data themselves or retain appropriate professionals. Information from sources other than the Listing Agent may have been included in the MLS data. Unless otherwise specified in writing, Broker/Agent has not and will not verify any information obtained from other sources. The Broker/Agent providing the information contained herein may or may not have been the Listing and/or Selling Agent.