Connect

Find us on...

Dashboard

Login using...

Shawn Bengtson

Office Broker - DRE 01236964

  • Office 760-805-7199
Questions?

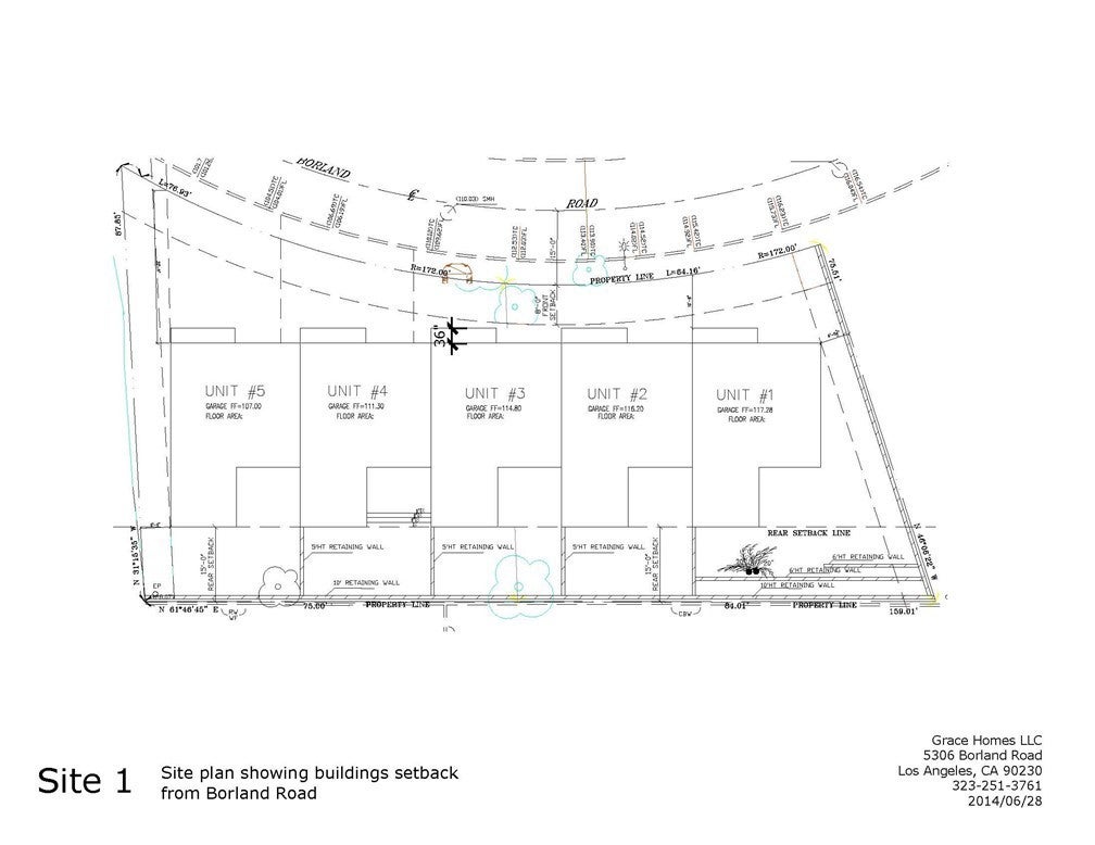
5306 Borland Road, Los Angeles – $349,000

  • $349k Price
  • .24 Acres
  • 174 DOM
  • $349k Price
  • .24 Acres
  • 174 DOM

5306 Borland Road

Prime development opportunity in the heart of El Sereno, just minutes from Downtown Los Angeles, Cal State LA, and the San Gabriel Valley. This combined 10,432 SF site (APNs: 5221-006-026 and 5221-006-027) previously secured City-approved Vesting Tentative Tract Map entitlements for a 5-unit townhome-style condominium project—featuring 2 units of 4-bedroom, 4-bath + loft and 3 units of 3-bedroom, 3-bath + loft, each with an attached 2-car garage. Although the entitlement has since expired, it may be renewed, offering developers a valuable head start in a high-demand residential market. Ideally located within walking distance to Cal State LA and offering convenient access to major freeways, schools, parks, and public transportation, this infill site sits at the gateway between Northeast Los Angeles and the San Gabriel Valley, presenting an excellent opportunity to deliver much-needed housing in a thriving, well-connected

Essential Information

  • MLS® #AR25143824
  • Price$349,000
  • Bathrooms0.00
  • Acres0.24
  • TypeLand
  • StatusActive

Community Information

  • Address5306 Borland Road
  • Area621 - El Sereno
  • CityLos Angeles
  • CountyLos Angeles
  • Zip Code90032

Amenities

  • ViewNeighborhood

Exterior

  • Lot DescriptionSloped Up

Additional Information

  • Date ListedJune 30th, 2025
  • Days on Market174
  • ZoningLARD2

Listing Details

  • AgentChuhui Huang
  • OfficeRe/Max Premier Prop Arcadia
Please provide a valid email address.

Price Change History for 5306 Borland Road, Los Angeles, (MLS® #AR25143824)

Date Details Change
Price Reduced from $399,000 to $349,000 $50,000 (12.53%)

Chuhui Huang, Re/Max Premier Prop Arcadia.

Based on information from California Regional Multiple Listing Service, Inc. as of December 21st, 2025 at 10:45am PST. This information is for your personal, non-commercial use and may not be used for any purpose other than to identify prospective properties you may be interested in purchasing. Display of MLS data is usually deemed reliable but is NOT guaranteed accurate by the MLS. Buyers are responsible for verifying the accuracy of all information and should investigate the data themselves or retain appropriate professionals. Information from sources other than the Listing Agent may have been included in the MLS data. Unless otherwise specified in writing, Broker/Agent has not and will not verify any information obtained from other sources. The Broker/Agent providing the information contained herein may or may not have been the Listing and/or Selling Agent.