Connect

Find us on...

Dashboard

Login using...

Shawn Bengtson

Office Broker - DRE 01236964

  • Office 760-805-7199
Questions?

517 E Washington Boulevard, Pasadena – $3,800,000

  • 7 Beds
  • 4 Baths
  • .48 Acres
  • 144 DOM
  • 7 Beds
  • 4 Baths
  • .48 Acres
  • 144 DOM

517 E Washington Boulevard

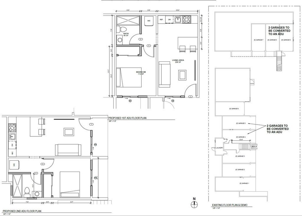
SELLER MAY CARRY - Pride-of-Ownership 10-unit (4 Houses & 2 Triplexes) on a large 21k SF R3 Zoned Lot, Excellent Unit Mix, Gated, Garage Parking, Drawings for 2 ADUs are included. MONTANO VILLAS, a 10-unit garden style apartment investment opportunity located in the City of Pasadena, CA. This exceptional property comprises 4 bungalows/houses and 2 triplexes and is situated on a large ±20,911sf R3 lot. This value-add investment opportunity provides savvy investors with high-quality assets in a strong Pasadena submarket with significant rental upside potential and future expansion opportunities. The ownership had completed many significant capital improvements: Some of the major improvements are recently replaced roofs, new Central A/C and heating in each unit, new double pane windows throughout. An initial drawing for 2 ADU units would be included in the sale. MONTANO VILLAS is a pride-of-ownership attractive two-story garden style gated community that was built in 1949. It has a total of 8,340 SF building size and is situated on a ±20,911 SF R3 lot size. It offers excellent curb appeal with manicured landscaping. The property has 4 patio homes with a semi-private porch and side yard. The 4 patio homes are all 2 bedrooms+1bathroom units complete with laundry hookups. Each patio home has a tiled shower + bathtub. The remaining 6 units consist of four (4) 2bedroom+1bathroom, and two (2) 1bedroom+1bathroom units. Each unit has central A/C and heating (installed in 2009), double pane windows, original hardwood flooring, stove, and refrigerator. Each of the 4 patio homes have a dishwasher. Each unit has an individual water heater and separately metered for electricity and gas. The property has two shared laundry rooms (machines are seller owned) and a large storage room. Parking is provided by a combination of 9 parking garages (with storage spaces) and several open space parking. Most tenants in this community are long time tenants that are on month to month and are due for rent increases. An additional significant rental upside can be realized when units turn in the future. The property is several blocks north of Old Town Pasadena. It is located east of Los Robles Ave and west of El Molino Ave. It is near the Rose Bowl area (Rose Bowl Stadium, Rose Bowl Aquatics Center, Kidspace Children Museum, and Brookside Golf Course), and just located across from a local Washington Park.

Essential Information

  • MLS® #AR25146336
  • Price$3,800,000
  • Bedrooms7
  • Bathrooms4.00
  • Acres0.48
  • Year Built1949
  • TypeResidential Income
  • Sub-TypeApartment
  • StyleMid-Century Modern
  • StatusActive

Community Information

  • Address517 E Washington Boulevard
  • Area645 - Pasadena (NW)
  • CityPasadena
  • CountyLos Angeles
  • Zip Code91104

Amenities

  • Parking Spaces10
  • ParkingAssigned, Carport
  • GaragesAssigned, Carport
  • ViewMountain(s)
  • PoolNone

Utilities

Cable Connected, Electricity Connected, Natural Gas Connected, Phone Available, Sewer Connected, Water Connected

Interior

  • InteriorCarpet, Wood
  • HeatingCentral, Wall Furnace
  • FireplacesNone
  • # of Stories2
  • StoriesTwo

Appliances

Dishwasher, Freezer, Disposal, Gas Range, Refrigerator, Range Hood, Dryer, Washer

Cooling

Central Air, Wall/Window Unit(s)

Exterior

  • WindowsDouble Pane Windows
  • RoofAsbestos Shingle

Lot Description

Lawn, Landscaped, Near Public Transit, Rectangular Lot, Sprinkler System, Street Level

Additional Information

  • Date ListedJune 30th, 2025
  • Days on Market144
  • ZoningPSR3

Listing Details

  • AgentHandoko Chen
  • OfficeGrowth Investment Group Pasade
Please provide a valid email address.

Handoko Chen, Growth Investment Group Pasade.

Based on information from California Regional Multiple Listing Service, Inc. as of November 21st, 2025 at 5:30am PST. This information is for your personal, non-commercial use and may not be used for any purpose other than to identify prospective properties you may be interested in purchasing. Display of MLS data is usually deemed reliable but is NOT guaranteed accurate by the MLS. Buyers are responsible for verifying the accuracy of all information and should investigate the data themselves or retain appropriate professionals. Information from sources other than the Listing Agent may have been included in the MLS data. Unless otherwise specified in writing, Broker/Agent has not and will not verify any information obtained from other sources. The Broker/Agent providing the information contained herein may or may not have been the Listing and/or Selling Agent.